

作品包括:
Word版说明书1份,共36页,约18000字
PPT答辩一份
CAD版本图纸,共3张

摘要
随着我国现代化的建设和农业机械化的发展,拖拉机在我国农业和工业生产中有着非常重要的作用,这就对拖拉机的质量和生产装配提出了要求,如何保证装配又快又好的进行,是考虑解决的首要问题。而装配过程中的下线过程也是生产中的重要一环,对下线设备进行改进设计,对于拖拉机生产装配效率的提高具有非常重要的作用。
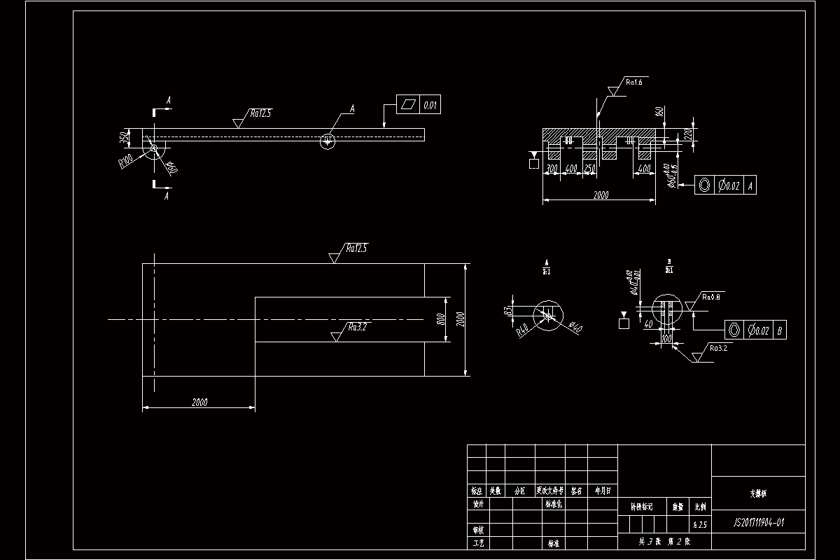
本研究提供了一种针对中小型拖拉机装配生产线的液压式下线设备,本设备基于传统液压式下线设备和我国现有液压登车桥的优点进行设计,解决传统液压式下线设备液压缸的刚度不够容易产生变形的问题。先根据选择的拖拉机型号和生产线的规格,预设出支撑台的初尺寸,利用CAD对所设计的产品进行绘图、选择材料和计算重量,用cad软件画出各组成零部件的工程图,并对其进行标注。计算出液压系统的主要参数,并根据参数选择出驱动电机、连接件和液压元件。最后对连接件进行强度校核,使其满足使用性能要求。
所设计的产品具有启动迅速、换向方便、结构简单、支撑平稳,工作可靠、结构强度高、生产效率高等优点,具有很大的经济作用和良好的发展前景。
温馨提示:
1、题目前面的备注【字母数字编号】为本站整理分类的编号,与课题内容无关,请选题时忽视;
2、若题目上备注三维,则表示文件里包含三维源文件,由于三维组成零件数量较多,为保证预览截图的简洁性,本站将三维文件夹进行了打包。三维及CAD预览截图,均为本站电脑打开软件进行截图的,保证能够打开,下载原件超高清,下载后解压即可;
3、本站所有资源如无特殊说明,都需要本地电脑安装Office2007。图纸软件为AutoCAD,PROE,UG,SolidWorks,CATIA等;
4、本站所有图文资料仅供用户学习参考,不作为任何商用或其他用途;
5、本站不保证下载资源的准确性、安全性和完整性, 不包修改,不支持退换,同时也不承担用户因使用这些下载资源对自己和他人造成任何形式的伤害或损失;
6、 下载文件中如有侵权或不适当内容,请与我们联系,我们立即纠正。