

作品包括:
Word版说明书1份,共48页,约15000字
CAD版本图纸,共10张

摘要
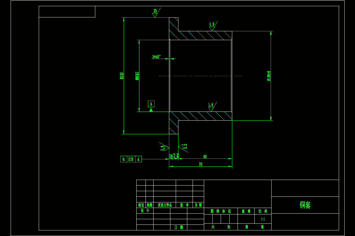
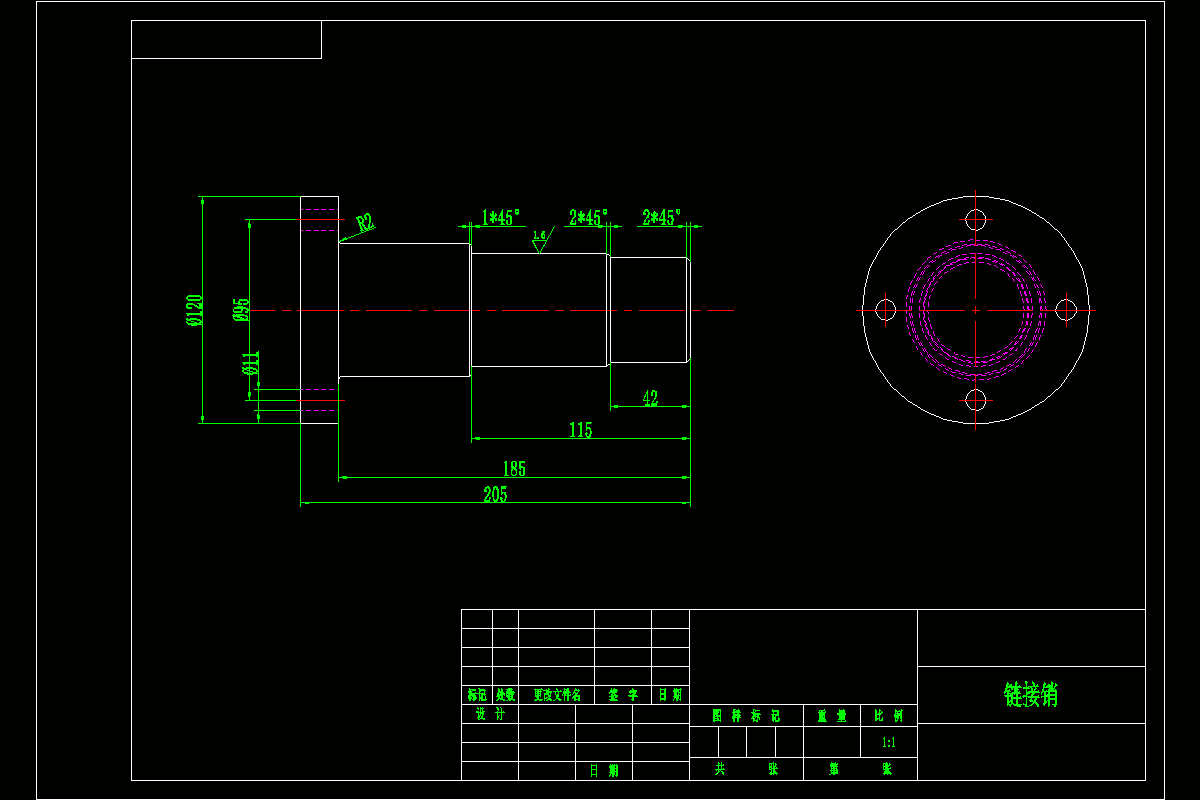
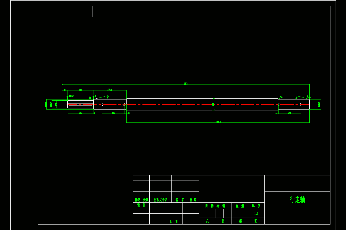
钢卷运输车是广泛用于轧钢生产线上的一种重要的轧钢辅助设备,其设计特点和工作性能的好坏直接影响到整个轧钢生产线的生产效率。它是将卷取机上的钢卷运输到打捆机的重要运输设备,给轧钢生产带来了极大的方便。本设计主要是对钢卷运输车的行走传动机构和升降机构进行设计和改造。本次设计研究的主要内容包括总体方案设计的选择、行走机构、升降机构的设计、主要零部件的设计与校核等。在本设计中钢卷运输车的行走机构的驱动方式的选择了电机驱动,由于传动比较大,故小车的传动机构选择了二级齿轮蜗轮蜗杆减速器。该减速器有两个输出端通过联轴器联接驱动车轮轴使车轮转动。钢卷运输车的升降动作由液压缸驱动完成。现如今随着我国钢铁行业的迅速发展,轧钢生产相关的设备也向着高效、简单、节能化发展。钢卷运输车在轧钢实现自动化生产方面起到了很大的作用,所以对于钢卷运输车的设计,既要其安全可靠,也要易于检修和维护,适合不同的生产要求同时也要最大程度的降低成本。国外该技术已比较发达,我国在引进国外技术的同时也要根据实际需要不断的创新。促进我国轧钢生产实现更加快速的发展。
温馨提示:
1、题目前面的备注【字母数字编号】为本站整理分类的编号,与课题内容无关,请选题时忽视;
2、若题目上备注三维,则表示文件里包含三维源文件,由于三维组成零件数量较多,为保证预览截图的简洁性,本站将三维文件夹进行了打包。三维及CAD预览截图,均为本站电脑打开软件进行截图的,保证能够打开,下载原件超高清,下载后解压即可;
3、本站所有资源如无特殊说明,都需要本地电脑安装Office2007。图纸软件为AutoCAD,PROE,UG,SolidWorks,CATIA等;
4、本站所有图文资料仅供用户学习参考,不作为任何商用或其他用途;
5、本站不保证下载资源的准确性、安全性和完整性, 不包修改,不支持退换,同时也不承担用户因使用这些下载资源对自己和他人造成任何形式的伤害或损失;
6、 下载文件中如有侵权或不适当内容,请与我们联系,我们立即纠正。