

作品包括:
Word版设计说明书1份,共38页,约12000字
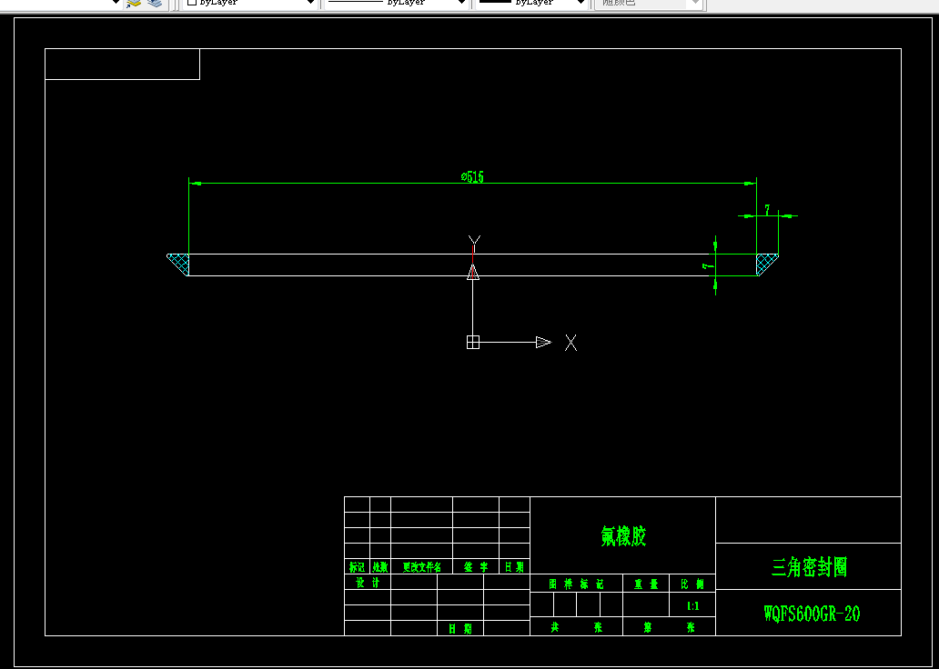
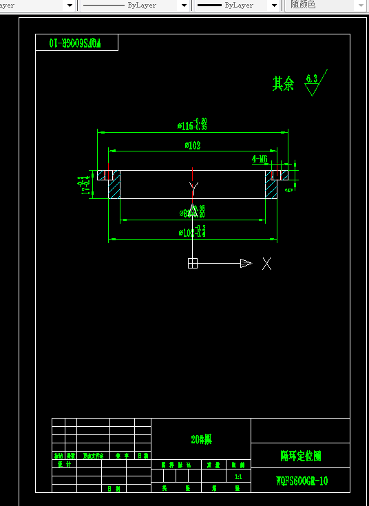
CAD版本图纸,共23张
![1750928923709049.png 2)AX]%LF0J@QTRO1H@%GY2U.png](/uploadfiles/20250626/1750928923709049.png)
摘 要
阀门是流体输送系统中的控制部件。主要的功能为截断、调节、防止逆流、安全、分流等。阀门的种类有很多,且有多种分类方法,其中球阀是由旋塞阀演变而来。球阀在GB/T21465-2008《阀门术语》中定义为:启闭件(球体)由阀杆带动,并绕阀杆的轴线做旋转运动的阀门。球阀主要由阀体丶阀座丶阀杆丶接管丶手柄及其他驱动装置组成。球阀的主要功能是切断或接通管道中的流体通道。所以球阀通常属于截阻阀。球阀的工作原理相当简单,通过阀门的驱动装置对阀杆施加力传递给球体,使其旋转90°,球体的瞳孔会和阀体通道中心线重合或者垂直从而达到阀门的启闭。
不同的是旋塞体是球体,有圆形通孔或通道通过其轴线。当球旋转90度时,在进、出口处应全部呈现球面,从而截断流动。完全平等的阀体内腔为介质提供了阻力很流道。球阀最适宜直接做开闭使用,但也能作节流和控制流量之用。球阀的主要特点是本身结构紧凑,易于操作和维修,适用于水、溶剂、酸和天然气等一般工作介质,而且还适用于工作条件恶劣的介质,如氧气、过氧化氢、甲烷、乙烯、树脂等。球阀阀体可以是整体的,也可以是组合式的。
此次设计的阀门是涡轮转动的固定球阀。固定球阀由球阀和涡轮传动装置两个部分组成。球阀和涡轮转动装置需要键来连接,并且涡轮传动装置应用比较常用。但是涡轮传动成本较高,而且内部结构复杂,要求加工精度高。
关键词:阀门 球阀 控制部件 截断流体 全焊接
目 录
摘 要 1
引 言 2
第一章 绪论 3
1.1课题背景 3
1.2阀门设计的意义 3
第二章 球阀零件的简单分析 6
2.1球阀的功用和用途 6
2.2球阀的工作原理 6
2.3球阀的主要特点 6
2.4球阀的结构分类 7
2.5设计需要达到的技术要求 8
2.5.1阀体 8
2.5.2球体 8
2.5.3阀杆 9
第三章 球阀的结构材料及主要参数 11
3.1球阀的结构及材料 11
3.2球阀的部分参数等级 11
第四章 球阀焊接工艺评定 13
4.1 焊前准备 13
4.2焊接的工艺要求 13
4.3焊接工艺参数 14
4.3.1 电弧电压 14
4.3.2 焊接电流 15
4.3.3 焊丝速度 15
第五章 机加工刀具的选择 17
5.1加工精度要求高的刀具选择 17
5.2加工精度要求低的道具选择 17
第六章 球阀主要部件的计算 19
6.1阀体壁厚的确定 19
6.2阀座总作用力及密封比压的选择 20
6.3阀座弹簧中腔泻压能力的计算 21
6.4阀杆力矩的计算 21
第七章 球阀装配工艺 25
7.1装配准备工作 25
7.2装配程序 25
7.3支撑板装配 25
7.4球阀手轮及限位板装配 26
第八章 球阀的维护、保养、安装和使用等注意事项 28
8.1维护、保养、安装和使用注意事项 28
8.2球阀的操作 28
第九章 阀门使用过程中可能发生的故障及消除方法 30
9.1阀门发生的故障 30
9.2阀门发生故障的原因 30
9.3阀门发生故障的消除方法 30
第十章 阀门试压 31
10.1强体试压 31
10.2气密试验 31
结 论 32
致 谢 34
参考文献 36
温馨提示:
1、题目前面的备注【字母数字编号】为本站整理分类的编号,与课题内容无关,请选题时忽视;
2、若题目上备注三维,则表示文件里包含三维源文件,由于三维组成零件数量较多,为保证预览截图的简洁性,本站将三维文件夹进行了打包。三维及CAD预览截图,均为本站电脑打开软件进行截图的,保证能够打开,下载原件超高清,下载后解压即可;
3、本站所有资源如无特殊说明,都需要本地电脑安装Office2007。图纸软件为AutoCAD,PROE,UG,SolidWorks,CATIA等;
4、本站所有图文资料仅供用户学习参考,不作为任何商用或其他用途;
5、本站不保证下载资源的准确性、安全性和完整性, 不包修改,不支持退换,同时也不承担用户因使用这些下载资源对自己和他人造成任何形式的伤害或损失;
6、 下载文件中如有侵权或不适当内容,请与我们联系,我们立即纠正。