

作品包括:
Word版设计说明书1份
开题报告一份
外文翻译一份
文献综述一份
PPT答辩一份
CAD版本图纸,共3张
摘要
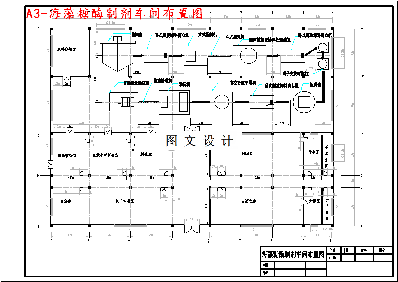
本设计主要是年产10t海藻糖酶制剂生产车间的工艺设计。设计范围包括厂址选择,制定产品方案,各产品工艺流程的确定,工艺论证,根据物料衡算进行设备选型,对水、电、汽等生产车间必备的生产要素的配给和优化,企业组织及劳动力组成,全厂辅助设施及公用系统,工艺流程图、生产车间平面布置图和工厂主要设备剖面图各一张,经济核算及效益分析。
温馨提示:
1、题目前面的备注【字母数字编号】为本站整理分类的编号,与课题内容无关,请选题时忽视;
2、若题目上备注三维,则表示文件里包含三维源文件,由于三维组成零件数量较多,为保证预览截图的简洁性,本站将三维文件夹进行了打包。三维及CAD预览截图,均为本站电脑打开软件进行截图的,保证能够打开,下载原件超高清,下载后解压即可;
3、本站所有资源如无特殊说明,都需要本地电脑安装Office2007。图纸软件为AutoCAD,PROE,UG,SolidWorks,CATIA等;
4、本站所有图文资料仅供用户学习参考,不作为任何商用或其他用途;
5、本站不保证下载资源的准确性、安全性和完整性, 不包修改,不支持退换,同时也不承担用户因使用这些下载资源对自己和他人造成任何形式的伤害或损失;
6、 下载文件中如有侵权或不适当内容,请与我们联系,我们立即纠正。