W136-齿轮泵前泵盖钻孔夹具设计
KS347-泵体零件加工工艺及车2-Φ20孔夹具设计
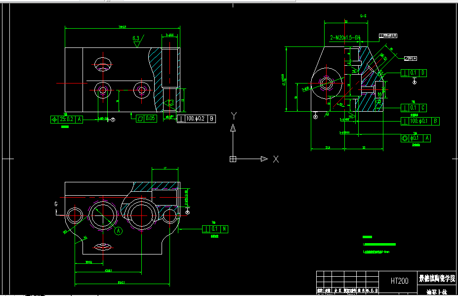
L012-齿轮泵泵体机械工艺规程及钻2-φ20孔夹具设计
T361-柴油机油泵体机械加工工艺规程及夹具设计
KS346-泵体壳加工工艺及镗主孔夹具设计
I035-泵体盖钻6-φ7孔钻削专机设计
I034-泵体盖钻6-φ2孔钻削专机设计
L027-泵体盖的工艺规程及M12-6H螺纹孔中的Ф10孔工艺装备设计
X009-泵体盖的机械加工工艺规程及铣平面夹具设计
KS345-泵体的工艺规程及铣大端φ112面的夹具设计
KS344-泵体零件加工工艺及铣底面夹具设计
KS343-泵体零件加工工艺及镗2-φ30H7孔夹具设计
KS342-泵体加工工艺及铣φ20孔端面夹具设计
KS341-泵体加工工艺及钻4-M6螺纹孔夹具设计
KS340-泵体零件加工工艺及钻2-φ11孔夹具设计
KS339-泵体加工工艺及钻2-φ11孔夹具设计
KS338-泵体加工工艺及铣2×G38管螺纹预孔孔口端平面夹具设计
KS337-泵体加工工艺及铣2×G38管螺纹预孔孔口端平面夹具设计
KS336-泵体加工工艺及钻2-φ14孔夹具设计
KS335-泵体零件加工工艺及钻2xG38螺纹孔夹具设计