欢迎来到龙图网在线图文分享平台-CAD图纸,设计说明书,工业设计3D模型,三维软件下载! 客服QQ:2363701252
------全部------
工艺夹具
机械机电
模具设计
数控编程
土木工程
采矿通风
机床减速器
其他类
3D模型
热搜:
工艺夹具
模具设计
数控编程
土木工程
3D模型
网站首页
工艺夹具
机械机电
模具设计
数控编程
土木工程
采矿通风
机床减速器
其他类
3D模型
帮助中心
工艺夹具
更多>>
XY333-壳体数控加工气动夹具设计【含SW三维图】
Z3039-油底壳零件侧面钻孔铣平面专用夹具设计
K2188-液压泵盖加工工艺和钻φ25孔夹具设计【含SW三维图】
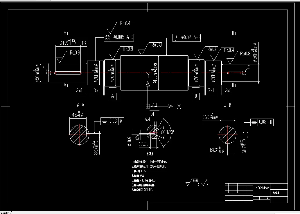
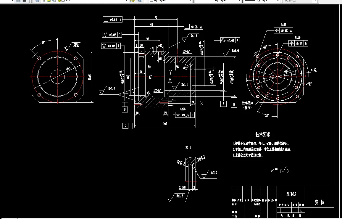
K2186-微电机壳零件机械加工工艺及镗φ102孔夹具设计
Z3018-齿轮箱体端盖加工工艺及夹具设计【含Creo三维】
KS413B-倒档拨叉加工工艺及钻φ8.7孔夹具设计【含三维图】
Z2883-飞轮壳底面零件加工工艺与夹具设计
Z2868-导轨座加工工艺及夹具设计【含Proe三维图】
N9071-燃气热水器电磁阀和流量计产品及主要零件加工工艺改进设计
N9070-双面镗削组合机床夹具设计
Z2533-输油泵壳体加工工艺及工装设计
N9068-柱塞式输油泵外壳加工工序15工艺分析及夹具设计
机械机电
更多>>
XY728-OX-1.6/2.5型天然气压缩机设计
XY727-基于PLC的铺丝机总体及其控制系统设计【含SW三维图】
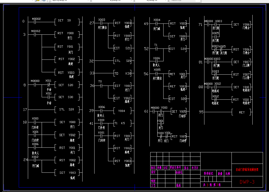
XY726-基于PLC控制的八层住宅电梯系统的设计
XY725-液压剪切机设计
XY724-DTⅡ10080型电厂输煤带式输送机设计
XY723-小尺寸盘形零件激光打标机结构设计【含SW三维图】
XY722-基于PLC控制的汽车铰链自动压装机虚拟样机设计【含SW三维图】
XY721-轻简型自动水果套袋机的设计
XY716-基于PLC控制的蓄热式燃气加热炉系统设计
XY715-一种山地丘陵用小型伐木机结构与液压控制系统设计【含SW三维图】
XY714-1000吨米塔式起重机变幅机构及变幅小车设计
XY713-基于S7-1200 PLC控制的工业搬运机械手的设计
模具设计
更多>>
XY719-4G-140型多功能收割机设计
XY718-汽车冲压件安装支架落料模具设计
XY717-顶盖片冲压模具设计
XY309-中性笔扣冲压工艺开发及其模具设计【含三维图】
XY203-饭盒模具设计【含SW三维图】
XY48-手机充电器外壳模具设计【含UG三维图】
Z2963-方向盘注塑模具设计
Z2938-风扇叶注塑模具设计【含UG三维图】
Z2894-Z形件弯曲模设计【含UG三维】
Z2886-岔口三通管架注射模具设计【含UG三维】
Z2555-塑料网孔垃圾桶注塑模具设计【含UG三维图】
Z2554-家用电蚊拍把手注塑模具设计【含UG三维图】
数控编程
更多>>
Z2995-凸轮数控加工工艺设计【含UG三维图】
Z2994-舱门接头数控加工工艺设计【含UG三维图】
N9182-基于UG的六面体零件的多轴五轴加工工艺及与VERICUT仿真数控编程
N9181-基于UG的轴流式叶轮多轴数控编程与Vericut加工仿真【含UG三维图】
Z2494-基于UG环境下的数控零件铣削工艺分析与仿真加工【含UG三维图】
Z2313-基于UG的缸底数控加工设计【含UG三维图】
Z2768-箱座的数控加工工艺设计
N8092-启动电机座工艺设计与制造【含UG三维图】
N8053-RE900输出轴加工工艺设计与编程
N8051-带轮轴工艺设计与编程
N8032-心型凸台件的数控加工工艺及编程设计【含UG三维图】
N8031-YJS3箱座零件的加工工艺编制和工装设计
土木工程
更多>>
Z2900-某中学教学楼设计-6000平
Z2898-盐城市某中学宿舍楼设计
N7210-都市御景小区多层住宅楼设计
N6617-南京江宁万达广场幕墙安装施工组织设计
Z2147-五层5832平米天津某大学钢结构教学楼设计
Z2109-无锡滨湖区某会议中心3号楼结构设计
Z1968-长230m单洞双线铁路隧道抗震设计
Z1889-重庆新建二级公路设计
Z1888-60x30米单层工业厂房结构设计
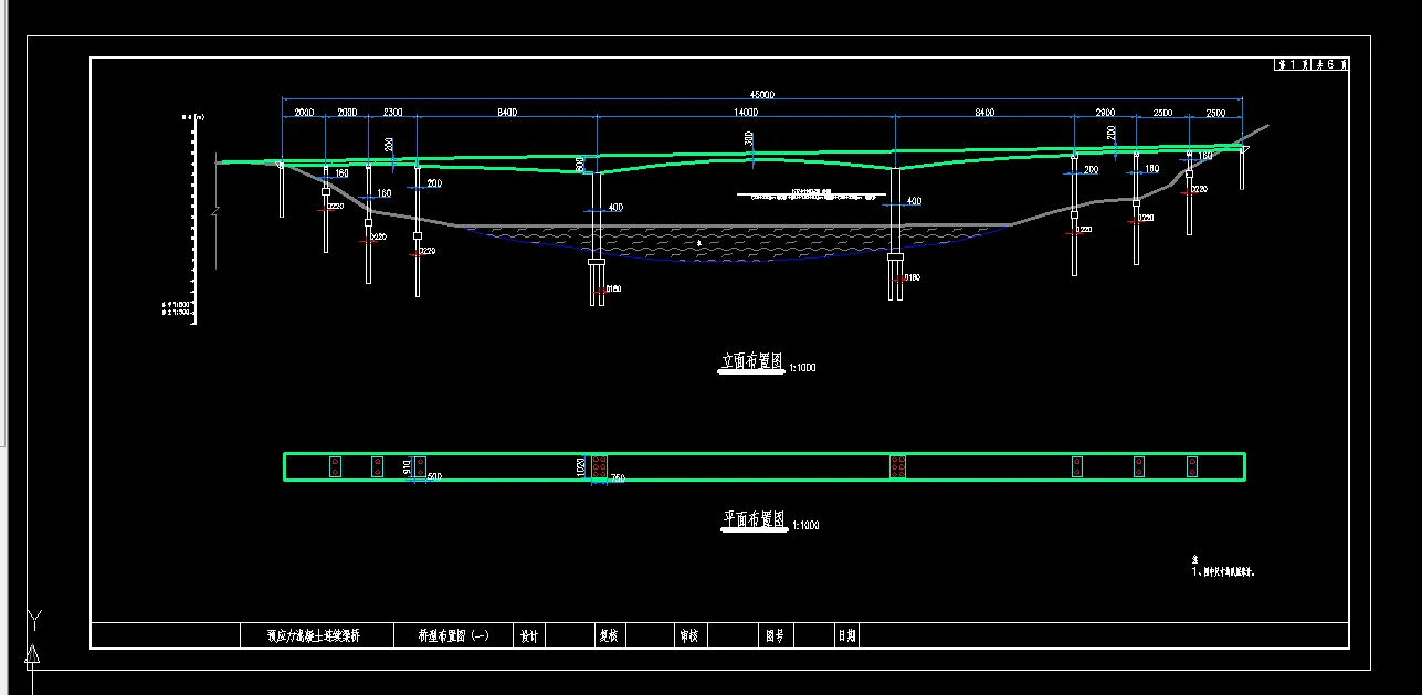
Z1882-3跨(50-100-50)预应力混凝土箱型连续梁桥设计
Z1881-某某中学教学楼土木工程专业教学楼设计
Z1853-某跨江连续梁桥设计
采矿通风
更多>>
N6602-大淑村矿1.2Mta新井设计
Z1876-老公营子煤矿0.9Mta新井设计
Z1864-某矿业河东煤矿120万吨矿井设计
Z1813-2.40Mta矿区型炼焦煤选煤厂初步设计
Z1812-2.00Mta矿井型炼焦煤选煤厂初步设计
Z1042-年产量10万吨金矿矿山开采设计
Q900-林东煤矿矿井开拓及通风设计
M4802-薛湖3.0Mta矿井型选煤厂设计
M4128-4.50Mta乌金矿井型选煤厂初步设计
M4127-3.00Mta矿井型炼焦煤选煤厂初步设计
M4126-5.00Mta矿区型动力煤选煤厂初步设计
M4125-辽宁建平120万吨年磷铁矿选矿厂初步设计
机床减速器
更多>>
N9162-镗床上加工托脚工件φ34H9的孔的组合镗床设计
Z2514-带式运输机传动装置设计同轴式二级圆柱齿轮减速器 F=2200 V=2 D=250
Z2513-一级蜗轮蜗杆减速器设计F=2500 V=1.0 D=350【含SW三维图】
Z2512-二级斜齿轮减速器的设计 F=3000 V=0.8 D=410
Z2511-二级展开式圆柱斜齿轮减速器设计(F=2400 V=1.2 D=300)
Z2510-二级减速器轴系设计方案设计【含SW三维图】
Z2484-用于圆盘给料机的单级斜齿圆柱齿轮减速器设计
N8349-变速器壳体机床钻孔夹具及机床钻孔多轴箱设计
N8347-减速器箱体9个孔钻组合机床设计
N8317-R185柴油机箱体前端面螺纹孔底孔钻孔组合机床设计
N8275-小分动箱体铣面专用机床及夹具设计【含SW三维图】
N8267-阀体攻4-M6螺纹孔专机及多轴箱设计
其他类
更多>>
XY731-年产100万立方米混凝土搅拌站生产工艺线设计
XY730-年产20万吨低定量瓦楞原纸车间工艺初步设计
XY729-年产10000吨果蔬汁饮料工厂设计
XY720-年产6万吨顺酐法制1,4-丁二醇项目精制工段工艺设计
XY705-基于滚珠丝杠的小型物料搬运装置传动结构设计
XY704-年产6000吨合成氨合成工段工艺及设备设计
XY647-年产600吨硝磺草酮原药装置工程设计
XY506-500kv变电站电气一次系统设计
XY364-年产5000吨二苯甲酮生产工艺设计
XY360-某给水厂的电气系统设计
XY151-110kv变电站电气一次供电设计
Z2943-岳阳市南湖花园基坑工程设计
3D模型
更多>>
N9300-封装半导体tray盘编带打包设备
N9299-玻璃转盘式六面光学检测AOI设备
N9298-半导体划片切割开槽清洗桶
N9297-晶圆环裂片定位支撑平台
N9296-晶圆EMC开槽设备主机
N9295-晶圆寻边器校准器
N9294-陶瓷基板外观检测打标设备
N9293-ITO外观AOI检测设备
A1001-封装半导体六面外观AOI检测机
N7123-物流输送提升机的结构设计CAD图纸
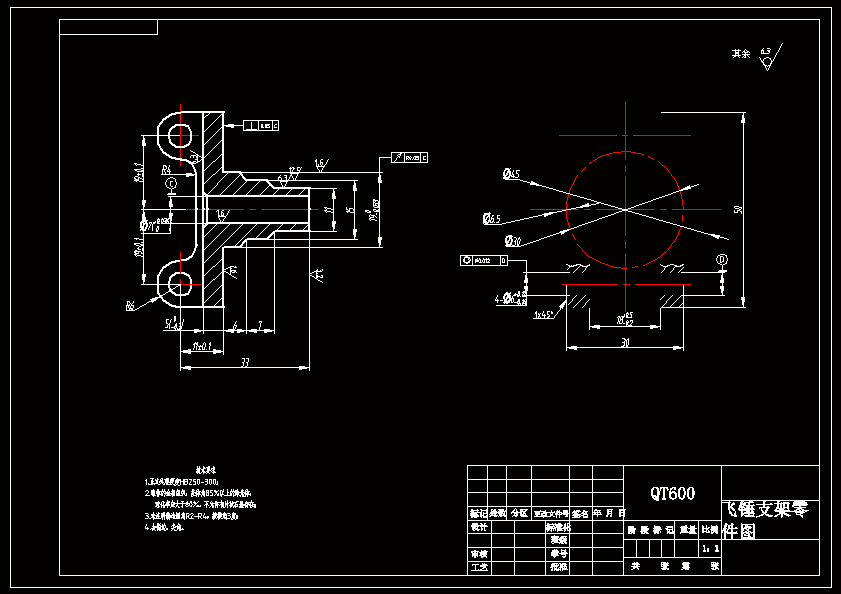
N7106-操纵杆支架零件铣台阶面夹具CAD图纸
N7103-湿式离合器测试试验台设计图
在
线
客
服