

作品包括:
Word设计说明书1份,共43页,约9400字
CAD版本图纸,共5张

摘 要
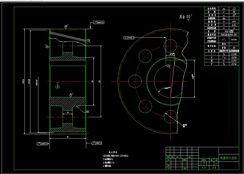
该论文完成二级斜齿轮减速器装置的设计,主要包括以下内容:介绍主要装置的性能、规格、型号及技术数据;说明了设计原理并进行了方案选择,绘出了相关图形和表格;对各种方案进行了分析和比较并介绍了所用方案的特点;应用原始数据以及相关公式对各种方案进行了计算,并根据计算结果确定应选用元器件或零部件;进行结构设计和方案校核;对实验中所得到的资料进行归纳、分析和判断,提出自己的结论和见解。
关键词 传动比 电动机 齿轮 减速器
目 录
1 绪论 1
2技术任务书 1
2.1设计任务书 1
2.2主要技术指标和重要技术参数: 2
3设计计算说明书 2
3.1设计方案 2
3.2电动机选择,传动系统运动和动力参数计算 3
3.2.1确定电动机类型 3
3.2.2传动装置总传动比的确定及各级传动比的分配 4
3.2.3运动参数和动力参数计算 4
3.3渐开线斜齿圆柱齿轮设计 5
3.3.1高速级斜齿圆柱齿轮设计计算表 5
3.4轴的设计计算 17
3.4.1Ⅰ轴的结构设计 17
3.4.2Ⅱ轴的结构设计 21
3.4.3Ⅲ轴的结构设计 22
3.4.4校核Ⅱ轴的强度 25
3.5 轴承的选择和校核 29
3.5.1Ⅱ轴轴承的选择 29
3.5.2 校核Ⅱ轴轴承是否满足工作要求 29
3.6 键联接的选择和校核 31
3.6.1Ⅱ轴大齿轮键的选择 31
3.6.2Ⅱ轴大齿轮键的校核 31
3.7减速器的润滑、密封和润滑牌号的选择 32
3.7.1传动零件的润滑 32
3.8 箱体主要设计尺寸 33
4 使用说明书(SM) 35
4.1 主要参数 35
4.1.1二级斜齿轮减速器的结构 35
4.1.2 驱动机构 36
5 标准化审核报告(BS) 36
5.1 产品图样的审查 36
5.2 产品技术文件的审查 36
5.3 标注件的使用情况 36
5.4 审查结论 37
结论 37
参考文献 38
致 谢 39
温馨提示:
1、题目前面的备注【字母数字编号】为本站整理分类的编号,与课题内容无关,请选题时忽视;
2、若题目上备注三维,则表示文件里包含三维源文件,由于三维组成零件数量较多,为保证预览截图的简洁性,本站将三维文件夹进行了打包。三维及CAD预览截图,均为本站电脑打开软件进行截图的,保证能够打开,下载原件超高清,下载后解压即可;
3、本站所有资源如无特殊说明,都需要本地电脑安装Office2007。图纸软件为AutoCAD,PROE,UG,SolidWorks,CATIA等;
4、本站所有图文资料仅供用户学习参考,不作为任何商用或其他用途;
5、本站不保证下载资源的准确性、安全性和完整性, 不包修改,不支持退换,同时也不承担用户因使用这些下载资源对自己和他人造成任何形式的伤害或损失;
6、 下载文件中如有侵权或不适当内容,请与我们联系,我们立即纠正。