

作品包括:
说明书一份,共31页,约10000字
CAD版本图纸,共6张
摘 要
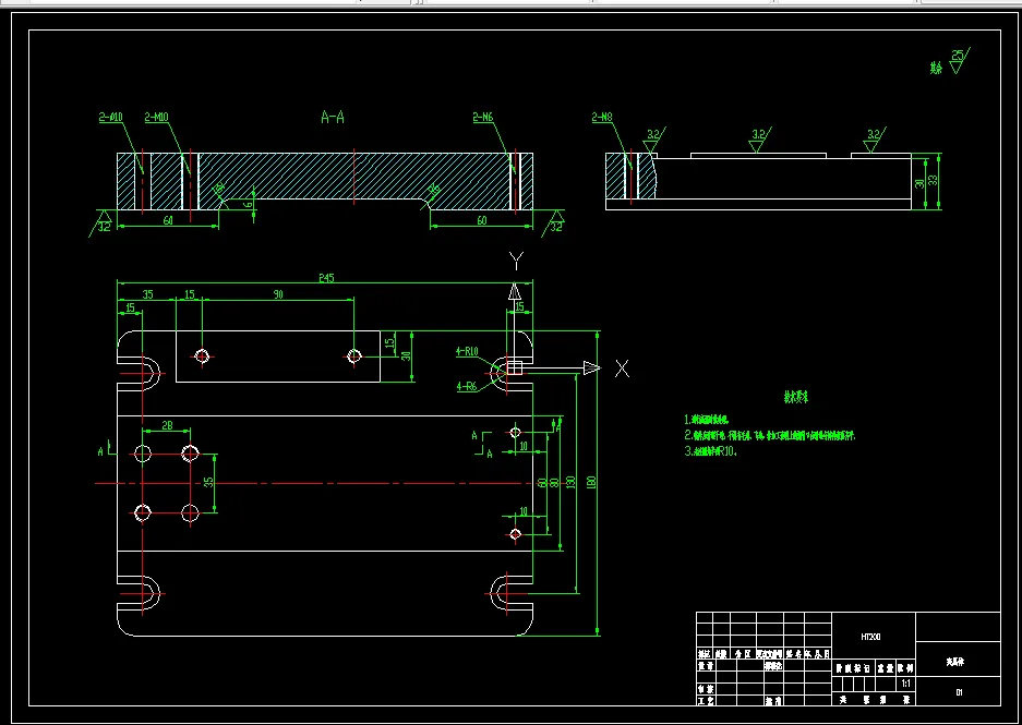
本课题选择的加工零件为轮辋。轮辋零件的制作过程是设计其加工工艺规程和专用夹具。在进行设计过程中,利用CAD软件来辅助绘制轮辋零件图、毛坯图好夹具图等。经过查阅知道,轮辋零件的材料和毛坯制造形式。在进行加工工艺规程中,要想做到保证合理性。那么需要对零件进行分析。确定零件的各个加工表面的先后顺序。要做到满足先面后孔的加工顺序。确定加工工艺规程,制作加工工艺规程卡。然后对加工工序的设计。加工工序中,选择加工设备和加工装备。经过查阅和分析得出方案。然后计算工序切削用量和计算工时。制作一条合理的加工工序卡片。专用夹具设计过程中,首先确定夹具定位和夹紧方案。然后对夹具结构上的设计进行分析和计算。来了解夹具设计误差满足条件。特别是夹具中的夹具体。要做到夹具体满足配置机床。最后完成整体的夹具装配。
关键词:轮辋;工艺;工序;夹具
目录
1 绪论 1
2 轮辋零件的分析 2
2.1 轮辋的作用 2
2.2 轮辋的工艺分析 2
3 轮辋零件的加工工艺规程设计 4
3.1 毛坯的制造形式确定 4
3.2 轮辋基面的选择 4
3.3 轮辋加工表面的确定 5
3.4 拟定加工工艺路线 5
3.5 机床的选择 7
3.6 刀具的选择 10
3.7 量具的选择 10
3.8 机械加工余量、工序尺寸及毛坯尺寸的确定 11
3.9 确定切削用量及基本工时 12
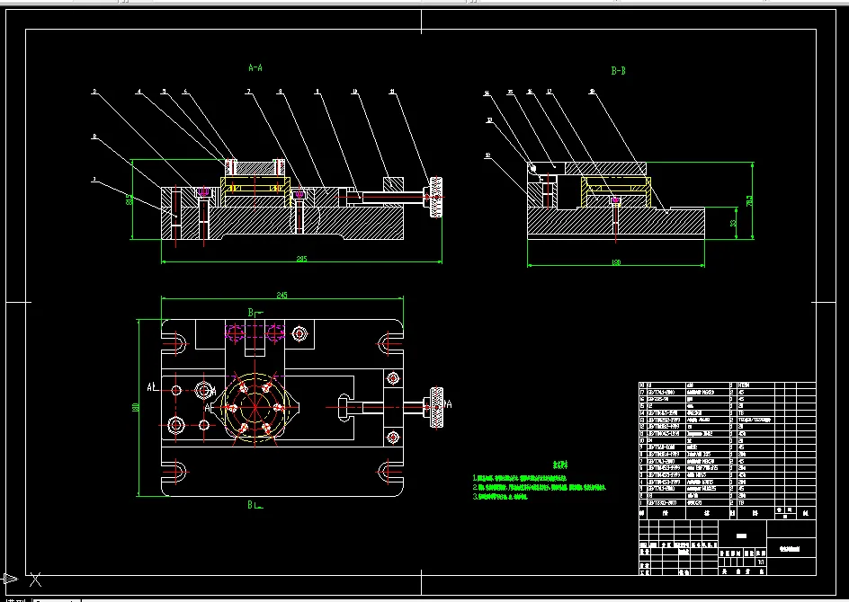
4 轮钻夹具设计 19
4.1 夹紧定位装置设计 19
4.2 夹具总体方案的确定 19
4.3 夹具主要零件的分析 20
4.3.1 夹具体的设计 20
4.3.2 支座的设计 20
4.3.3 钻模板的设计 21
4.4 夹具整体装配图安装 23
4.4.1 夹具零件的准备 23
4.4.2 夹具整体装配安装分析 24
4.4.3 夹具整体装配注意事项 24
4.4.4 夹具整体装配分析 24
结 论 28
致 谢 29
参考文献 30
温馨提示:
1、题目前面的备注【字母数字编号】为本站整理分类的编号,与课题内容无关,请选题时忽视;
2、若题目上备注三维,则表示文件里包含三维源文件,由于三维组成零件数量较多,为保证预览截图的简洁性,本站将三维文件夹进行了打包。三维及CAD预览截图,均为本站电脑打开软件进行截图的,保证能够打开,下载原件超高清,下载后解压即可;
3、本站所有资源如无特殊说明,都需要本地电脑安装Office2007。图纸软件为AutoCAD,PROE,UG,SolidWorks,CATIA等;
4、本站所有图文资料仅供用户学习参考,不作为任何商用或其他用途;
5、本站不保证下载资源的准确性、安全性和完整性, 不包修改,不支持退换,同时也不承担用户因使用这些下载资源对自己和他人造成任何形式的伤害或损失;
6、 下载文件中如有侵权或不适当内容,请与我们联系,我们立即纠正。