

作品包括:
说明书一份,共36页,约11000字
CAD版本图纸,共4张
摘 要
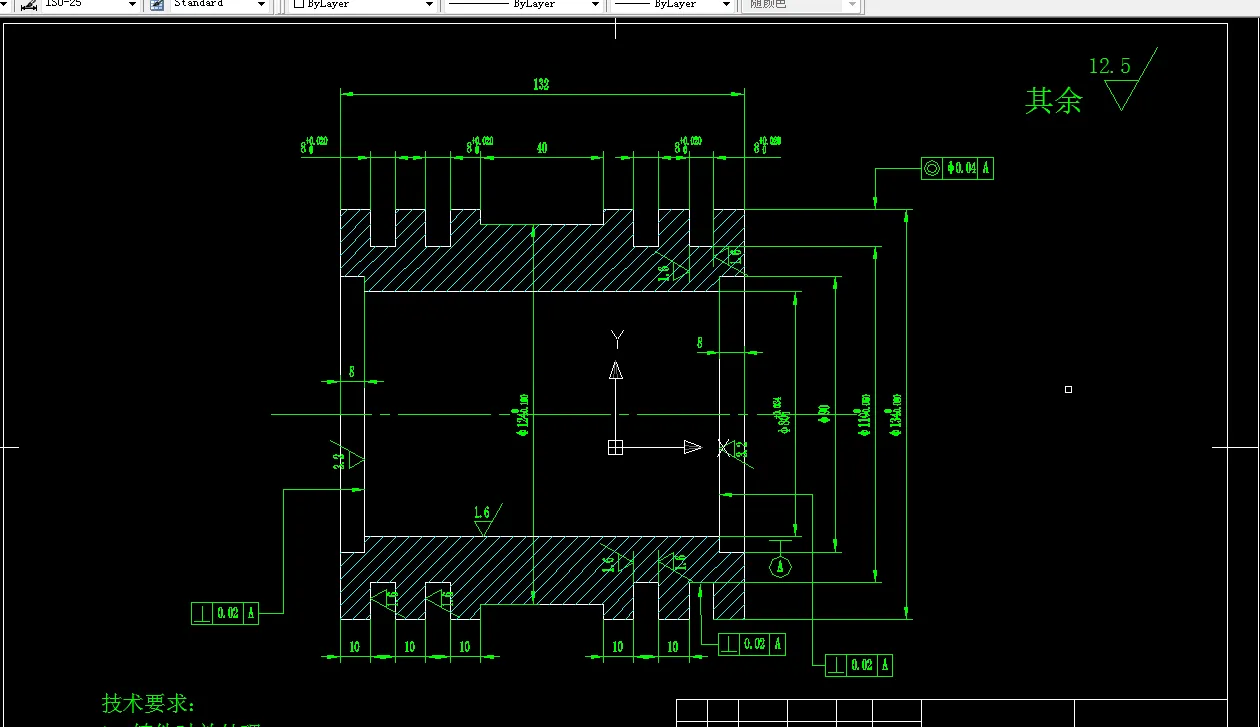
本文是对支撑套筒零件加工应用及加工的工艺性分析,本课题主要是在支撑套筒零件加工过程的基础上进行的专用夹具设计。主要加工部位是平面和孔。在一般情况下,确保比保证精密加工孔很容易。因此,设计遵循的原则是先加工面后加工孔。孔加工平面分明显的阶段性保证粗加工和加工精度加工孔。通过底面作一个良好的基础过程的基础。主要的流程安排是支持在定位孔过程第一个,然后进行平面和孔定位技术支持上加工孔。在随后的步骤中,除了被定位在平面和孔的加工工艺及其他孔过程。整个过程是一个组合的选择工具。专用夹具夹具的选择,有自锁机构,因此,对于大批量,设计夹具会产生更高的生产力,提高生产效率,满足设计要求。
关键词:支撑套筒,加工工艺,加工方法,工艺文件,夹具
目 录
摘 要 1
第1章 绪论 4
1.2课题主要研究内容 4
1.3研究方法和手段 4
1.4研究目标 4
1.5方案可行性分析 5
第2章 零件的分析 5
2.1 零件的作用 5
2.2 零件的工艺分析 5
第3章 支撑套筒零件的加工工艺规程设计 7
3.1毛坯的选择及铸造方法 7
3.2基准的选择 7
3.2.1粗基准的选择 7
3.2.2精基准的选择 8
3.4 支撑套筒加工主要工序安排 8
3.5 机械加工余量、工序尺寸及毛坯尺寸的确定 10
3.4.1 机床选用 10
3.4.2 选择刀具 11
3.4.3 选择量具 11
3.5 机械加工余量、工序尺寸及毛坯尺寸的确定 11
3.6确定切削用量及基本工时(机动时间) 13
工序30:粗车Φ60外圆及其附属端面切削用量 13
第5章 加工4XM10孔夹具设计 24
5.1 研究原始质料 24
5.2 定位、夹紧方案的选择 24
5.3 切削力及夹紧力的计算 24
5.4 误差分析与计算 27
5.5定位销选用 28
4.6 钻套、衬套、钻模板设计与选用 28
5.7 确定夹具体结构和总体结构 30
5.8夹具设计及操作的简要说明 32
总结 32
参 考 文 献 33
温馨提示:
1、题目前面的备注【字母数字编号】为本站整理分类的编号,与课题内容无关,请选题时忽视;
2、若题目上备注三维,则表示文件里包含三维源文件,由于三维组成零件数量较多,为保证预览截图的简洁性,本站将三维文件夹进行了打包。三维及CAD预览截图,均为本站电脑打开软件进行截图的,保证能够打开,下载原件超高清,下载后解压即可;
3、本站所有资源如无特殊说明,都需要本地电脑安装Office2007。图纸软件为AutoCAD,PROE,UG,SolidWorks,CATIA等;
4、本站所有图文资料仅供用户学习参考,不作为任何商用或其他用途;
5、本站不保证下载资源的准确性、安全性和完整性, 不包修改,不支持退换,同时也不承担用户因使用这些下载资源对自己和他人造成任何形式的伤害或损失;
6、 下载文件中如有侵权或不适当内容,请与我们联系,我们立即纠正。