

作品包括:
设计word版本说明书一份,10页
CAD版本图纸,共9张
工艺卡片一套
一、设计任务及分析:
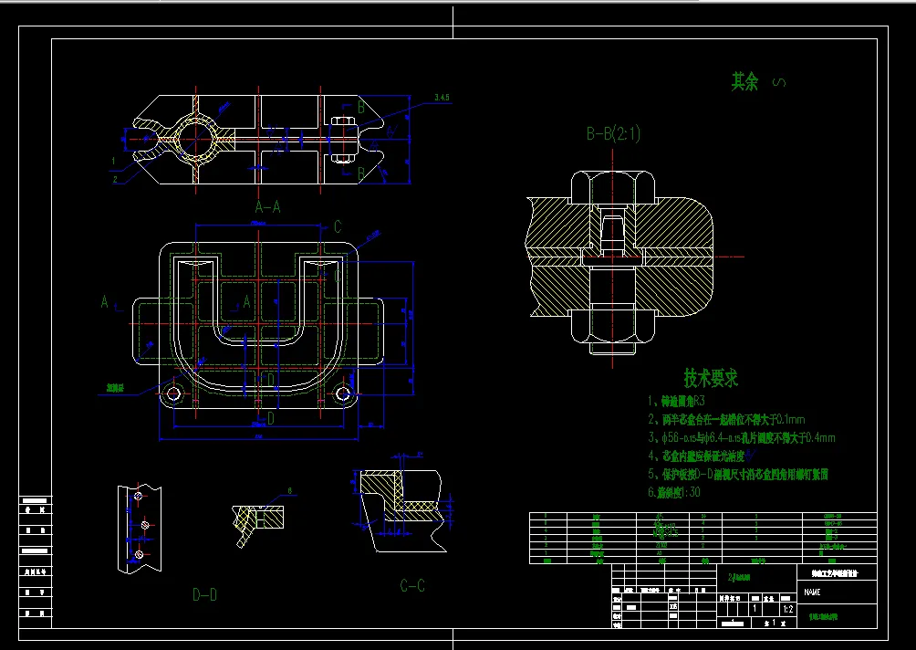
1105柴油机进气管净重3公斤,才质HT15-33,生产性质是大批量生产。
柴油机进气管是为柴油燃烧提供空气通道,即它一端与气缸的配气室相连(通过配气阀来控制进气量)。这就要求:一、进气管内壁要光滑,减少进气阻力;二、气管不得有粘砂等物,否则,就会造成气缸磨损、甚至使配气阀失控等严重事故;三、进气管不得有裂纹、夹渣、气孔、夹砂等缺陷,因进气管上承滤清器的重量,加之柴油机振动较大,仍造成进气管损坏而停机。
本零件的主要壁厚为7mm,是合理的壁厚。虽有局部较厚之处,如主视图右上部16×22处,但由于是HT15-33,碳当量较高,故对铸件质量及工艺无大影响。此外,零件的结构及圆角连接设计也比较合理。
温馨提示:
1、题目前面的备注【字母数字编号】为本站整理分类的编号,与课题内容无关,请选题时忽视;
2、若题目上备注三维,则表示文件里包含三维源文件,由于三维组成零件数量较多,为保证预览截图的简洁性,本站将三维文件夹进行了打包。三维及CAD预览截图,均为本站电脑打开软件进行截图的,保证能够打开,下载原件超高清,下载后解压即可;
3、本站所有资源如无特殊说明,都需要本地电脑安装Office2007。图纸软件为AutoCAD,PROE,UG,SolidWorks,CATIA等;
4、本站所有图文资料仅供用户学习参考,不作为任何商用或其他用途;
5、本站不保证下载资源的准确性、安全性和完整性, 不包修改,不支持退换,同时也不承担用户因使用这些下载资源对自己和他人造成任何形式的伤害或损失;
6、 下载文件中如有侵权或不适当内容,请与我们联系,我们立即纠正。