

作品包括:
设计说明书一份,共91页,约33000字
任务书一份
外文翻译一份
机械加工工艺过程卡片,共4张
综合工艺卡片一套
摘 要
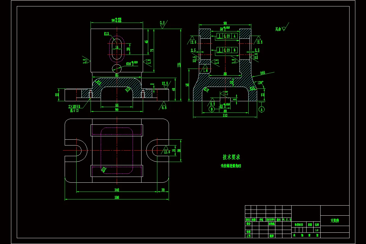
本次毕业设计以主轴箱的箱体为设计对象,主要任务有两项:第一项是箱体零件加工工艺规程的设计;第二项是箱体零件的工装夹具的设计。在减速器装配图的设计过程中,已知题目算出各零部件的结构,画出装配图。在对加工工艺规程的设计中,首先对零件进行分析,根据零件的材料,生产纲领及其它,我来确定毛坯的制造形式,其次进行加工基面的选择与工艺路线的制订,最后进行加工余量、工序尺寸及切削用量等的计算与确定。在工装夹具部分的设计中,首先是定位基准的选择,根据各自工序的不同特点来进行定位基准的选择,其次进行切削力及夹紧力的计算,最后进行误差分析。
通过本次毕业设计,使我在大学四年里所学的知识有了更进一步的巩固与提高,同时,也增强了自己分析问题与解决问题的能力,从而为今后更好地工作与学习打下了坚实的基础。
关键词:工艺规程 定位 夹具
目 录
前 言 i
摘 要 ii
Abstract iii
第一篇 零件的加工 1
第一章 零件的分析 1
第一节 分析零件的作用 1
第二节 零件的工艺分析 2
第二章 工艺规程设计 3
第一节 确定毛坯种类 3
第二节 毛坯的材料热处理 3
第三节 基面的选择 3
第四节 制定工艺路线 4
第五节 机械加工余量、工序尺寸及毛坯尺寸的确定 11
第六节 确定切削用量及基本工时 24
第二篇 夹具设计 74
第一章 夹具设计 74
第一节 问题的提出 75
第二节 定位基准的选择 75
第三节 切削力及夹紧力的计算 75
第四节 定位误差分析 78
第五节 镗床夹具设计及操作的简要说明 79
总 结 81
参考资料 82
外文资料 83
中文译文 90
致谢 95
温馨提示:
1、题目前面的备注【字母数字编号】为本站整理分类的编号,与课题内容无关,请选题时忽视;
2、若题目上备注三维,则表示文件里包含三维源文件,由于三维组成零件数量较多,为保证预览截图的简洁性,本站将三维文件夹进行了打包。三维及CAD预览截图,均为本站电脑打开软件进行截图的,保证能够打开,下载原件超高清,下载后解压即可;
3、本站所有资源如无特殊说明,都需要本地电脑安装Office2007。图纸软件为AutoCAD,PROE,UG,SolidWorks,CATIA等;
4、本站所有图文资料仅供用户学习参考,不作为任何商用或其他用途;
5、本站不保证下载资源的准确性、安全性和完整性, 不包修改,不支持退换,同时也不承担用户因使用这些下载资源对自己和他人造成任何形式的伤害或损失;
6、 下载文件中如有侵权或不适当内容,请与我们联系,我们立即纠正。