

作品包括:
word版设计说明书一份,共49页,约15000字
CAD版本图纸,共4张
工序卡一套
摘 要
汽车后桥壳是汽车的重要组成部分,它与主减速器、差速器和车轮传动装置组成驱动桥。驱动桥处于动力传动系的末端,其机动功能是增大由传动轴或变速器传来的转矩,并将动力合理的分配给左、右驱动轮,另外驱动桥桥壳是汽车上重要的承载件和传力件。驱动桥的桥壳不仅支承汽车重量,将载荷传递给车轮,而且还承受由驱动车轮传递过来的牵引力、制动力、侧向力、垂向力的反力以及反力矩,并经悬架传给车架或车身。在汽车行驶过程中,由于道路条件的千变万化,桥壳受到车轮与地面间产生的冲击载荷的影响,可能引起桥壳变形或折断。因此,驱动桥壳应具有足够的强度、刚度和良好的动态特性,合理地设计制造驱动桥壳是提高汽车行驶稳定性的重要措施,汽车后桥壳广泛应用于各种车辆当中。
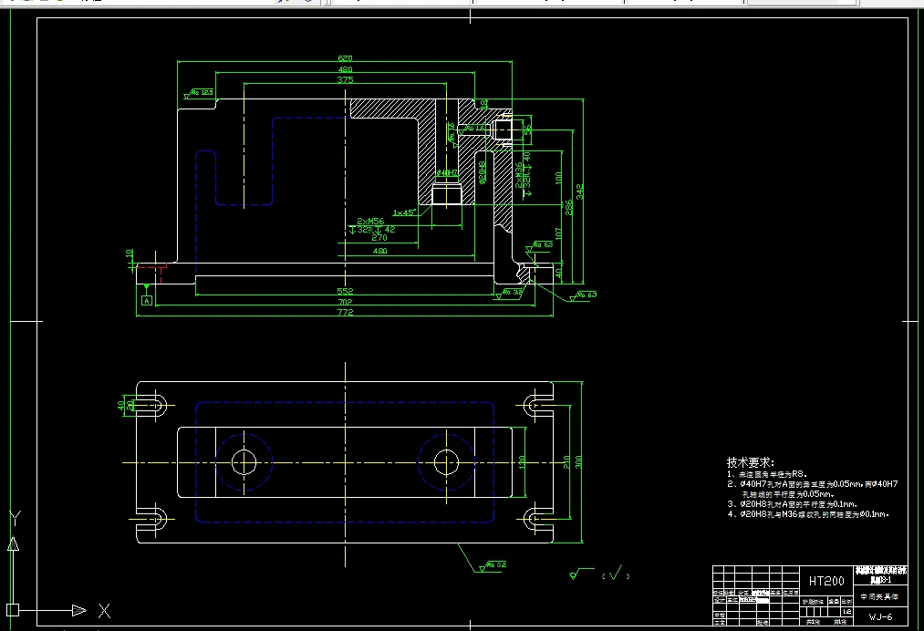
所设计的后桥壳夹具可广泛应用于卡车的后桥壳加工中,后桥壳起保护和支撑的作用,其主要加工表面为端面外圆、法兰平面、弹簧座平面、以及内孔等。
本次设计的内容主要包括机械加工工艺规程、夹具的设计。结合本次设计零件的特点,在设计中完成工艺规程一套,夹具一套。铣床夹具,采用手动夹紧。通过对汽车后桥壳夹具的学习和设计,可以更好的学习并掌握现代夹具设计与机械设计的全面知识和技能。
关键词:汽车后桥;工艺规程;夹具
目 录
摘 要 I
Abstract II
第1章 绪论 1
1.1 机床夹具及其组成 1
1.1.1 概述 1
1.1.2 机床夹具的组成 1
1.2 机床夹具的分类 2
1.3 机床夹具的国内外发展现状 2
1.3.1 国内发展现状 3
1.3.2 国外发展现状 3
1.4 机床夹具的发展方向 4
第2章 后桥壳工艺方案总体设计 6
2.1 汽车后桥发展趋势 6
2.1.1 我国汽车后桥制造业的现状及其发展趋势 6
2.1.2 汽车后桥壳体的构造及性能要求 6
2.2 后桥壳零件的分析 7
2.2.1 后桥壳的作用 7
2.2.2 后桥壳的工艺分析 7
2.2.3 后桥壳生产类型及毛坯制造形式的确定 9
2.2.4 加工后桥壳基面的选择 9
第3章 后桥壳机械加工工艺规程设计 11
3.1 机械加工工艺路线的选择 11
3.1.1 工艺方案拟定 11
3.1.2 工艺方案比较分析 12
3.1.3 加工余量、工序尺寸、毛坯尺寸的确定 13
3.2 确定切削用量及机动时间 14
3.2.1 工序一的切削用量及机动时间 14
3.2.2 工序二的切削用量及机动时间 19
3.2.3 工序三的切削用量及机动时间 20
3.2.4 工序四的切削用量及机动时间 23
3.2.5 工序五的切削用量及机动时间 24
3.2.6 工序七的切削用量及机动时间 25
3.2.7 工序八的切削用量及机动时间 27
3.2.8 工序九的切削用量及机动时间 29
3.2.9 工序十的切削用量及机动时间 30
3.2.10 工序十一的切削用量及机动时间 31
3.2.11 工序十二的切削用量及机动时间 33
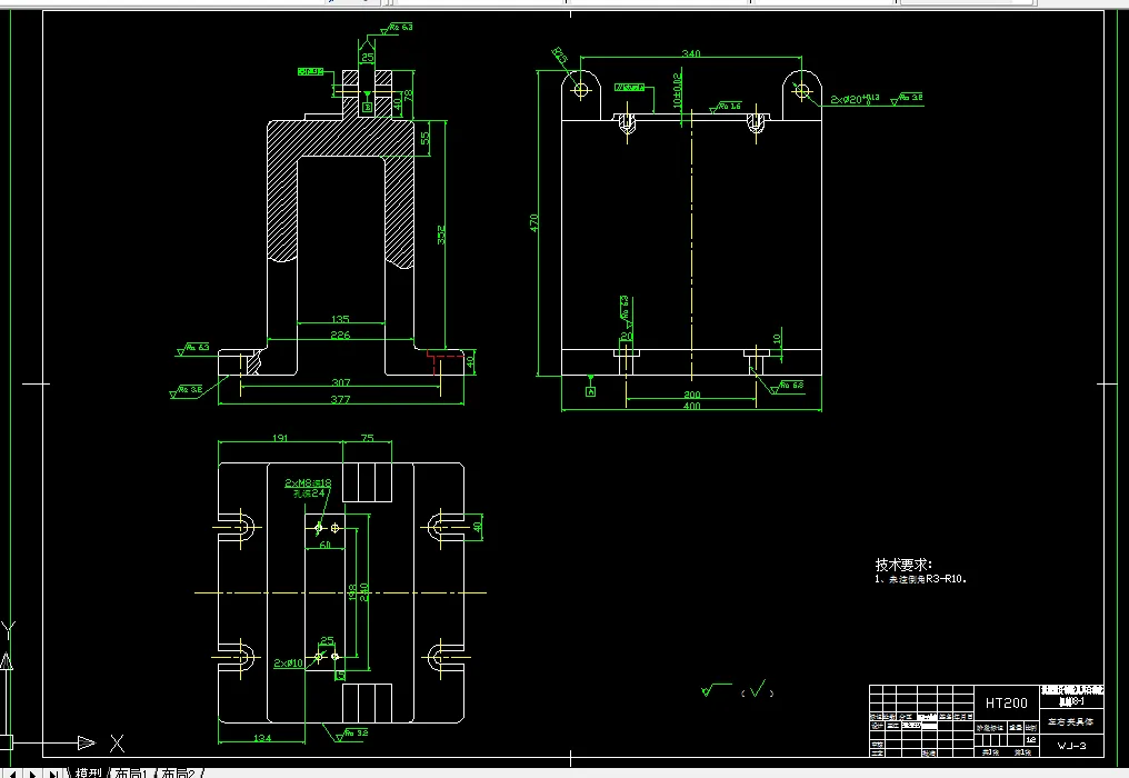
第4章 铣床夹具设计 36
4.1 确定定位方案 36
4.1.1 工件的加工工艺分析 36
4.1.2 定位方案的确定,设计定位元件 36
4.2 夹紧机构的设计 37
4.2.1 确定夹紧方式 37
4.2.2 定位误差分析 38
4.2.3 夹紧元件强度校核 39
4.3 夹具体的设计 39
4.4 夹具体操作的简要说明 40
结 论 41
致 谢 42
参考文献 43
温馨提示:
1、题目前面的备注【字母数字编号】为本站整理分类的编号,与课题内容无关,请选题时忽视;
2、若题目上备注三维,则表示文件里包含三维源文件,由于三维组成零件数量较多,为保证预览截图的简洁性,本站将三维文件夹进行了打包。三维及CAD预览截图,均为本站电脑打开软件进行截图的,保证能够打开,下载原件超高清,下载后解压即可;
3、本站所有资源如无特殊说明,都需要本地电脑安装Office2007。图纸软件为AutoCAD,PROE,UG,SolidWorks,CATIA等;
4、本站所有图文资料仅供用户学习参考,不作为任何商用或其他用途;
5、本站不保证下载资源的准确性、安全性和完整性, 不包修改,不支持退换,同时也不承担用户因使用这些下载资源对自己和他人造成任何形式的伤害或损失;
6、 下载文件中如有侵权或不适当内容,请与我们联系,我们立即纠正。