

作品包括:
word说明书一份,共31页,约14000字
PPT答辩一份
外文翻译一份
CAD版本图纸,共4张
工序卡片一份
摘 要
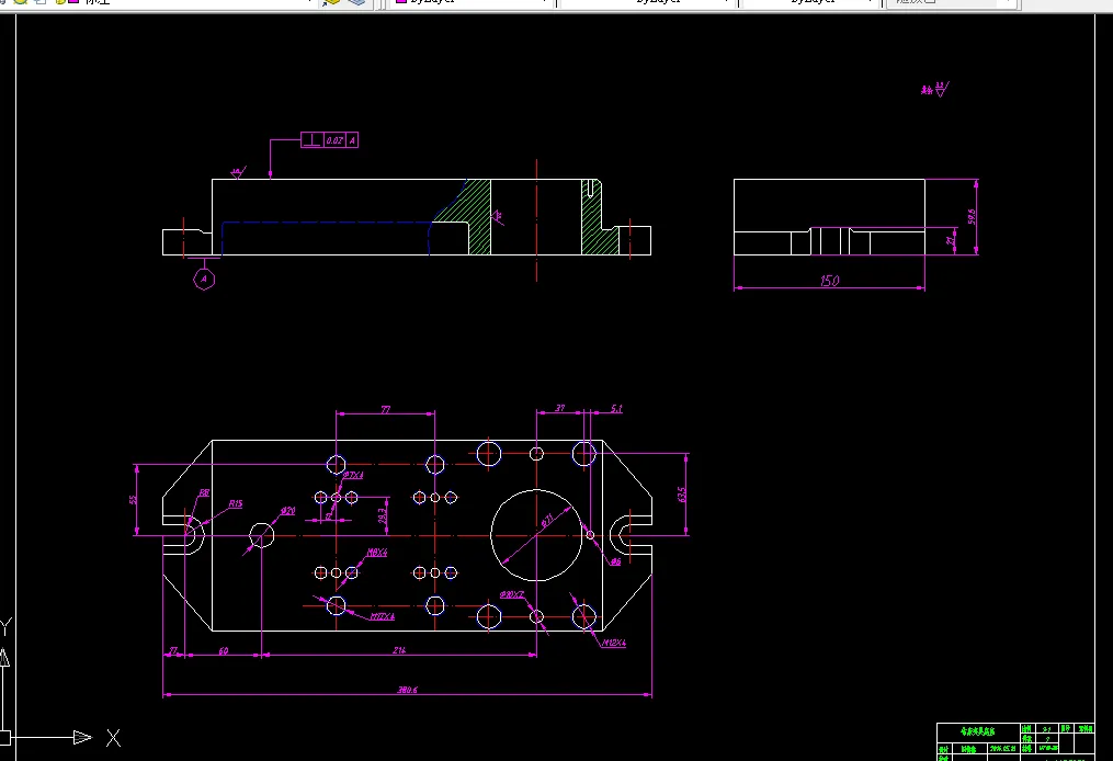
本毕业设计题目是尾接杆零件的工艺及其钻模夹具设计。
尾接杆零件是飞机液压助力器执行机构中的主要部件之一。尾接杆零件在产品中一端与液压助力器外筒组件连接,另一端通过关节轴承与飞机的副翼连接,其作用是带动飞机操纵系统的摇臂和拉杆,而使飞机的副翼偏转,在工作时能够传递3800公斤以上的力,是一个能承受复杂力的受力件。
首先,参考《现代制造工艺基础》进行主要加工工艺设计方法和相关计算,运用机械制造技术及相关的课程知识,根据零件相关加工工艺及工况要求,对于从毛坯到零件成品的每一个加工过程进行分析,从而制定出切实可行的加工工艺规程路线,确定最终的零件加工方案。然后,根据零件图纸的技术要求,确定工件在加工过程中的定位、夹紧以及相关夹具的工艺路线的安排等方面的相关问题,确定相关的工艺尺寸及选择合适的机床和刀具。最后,参考机床夹具设计手册及相关书籍,设计出高效、经济、合理并且能保证加工质量的夹具。
关键词: 工艺,机械制造,夹具设计
目 录
摘 要 I
ABSTRACT II
第一章 绪论 1
第二章 尾接杆零件机械加工工艺规程设计 2
2.1 机械制造工艺的发展 2
2.2 机械制造工艺基本概念 2
2.3 零件的说明 3
2.3.1 零件图 3
2.3.2 零件说明 3
2. 4 确定毛坯 4
2.4.1 选择毛坯 4
2.4.2 设计毛坯图 5
2. 5 拟定工艺路线 6
2.5.1 各表面加工方法 6
2.5.2 定位基准的选择 7
2.5.3 加工阶段的划分 8
2.5.4 工序顺序安排 9
第三章 钻模夹具设计 12
3. 1 工件的定位原理、定位原则和定位方法 12
3.1.1 工件的定位原理和定位原则 12
3.1.2 工件的定位方法及误差 12
3. 2 钻模夹具设计概述 13
3.2.1 机床夹具基本概念 14
3.2.2 机床夹具的分类 14
3.2.3 专用夹具的功用与组成 14
3.2.4 专用夹具的设计依据和主要原则 15
3.3 工件的夹紧及夹紧装置 15
3.3.1 夹紧的基本概念 15
3.3.2 夹紧装置分类和效用 16
第四章 尾接杆钻模2夹具设计 17
4.1 机床夹具设计方法和步骤 17
4.2 夹具的设计要求 17
4.3 夹具对于自由度的限制 18
4.4 工件的定位基准 18
4.5 定位元件的选用 18
4.6 定位误差计算 18
4.7 夹紧装置的选择 19
4.8 钻床夹具的设计 19
4. 9 绘制尾接杆钻孔夹具的装配图 20
参考文献 23
致 谢 24
设计小结 25
温馨提示:
1、题目前面的备注【字母数字编号】为本站整理分类的编号,与课题内容无关,请选题时忽视;
2、若题目上备注三维,则表示文件里包含三维源文件,由于三维组成零件数量较多,为保证预览截图的简洁性,本站将三维文件夹进行了打包。三维及CAD预览截图,均为本站电脑打开软件进行截图的,保证能够打开,下载原件超高清,下载后解压即可;
3、本站所有资源如无特殊说明,都需要本地电脑安装Office2007。图纸软件为AutoCAD,PROE,UG,SolidWorks,CATIA等;
4、本站所有图文资料仅供用户学习参考,不作为任何商用或其他用途;
5、本站不保证下载资源的准确性、安全性和完整性, 不包修改,不支持退换,同时也不承担用户因使用这些下载资源对自己和他人造成任何形式的伤害或损失;
6、 下载文件中如有侵权或不适当内容,请与我们联系,我们立即纠正。