

作品包括:
说明书1份,共23页,约9500字左右
CAD版本本图纸,共4张
SW三维图一份

推动架工艺规程及夹具设计
【摘 要】 在生产过程中,使生产对象(原材料,毛坯,零件或总成等)的质和量的状态发生直接变化的过程叫工艺过程,如毛坯制造,机械加工,热处理,装配等都称之为工艺过程。在制定工艺过程中,要确定各工序的安装工位和该工序需要的工步,加工该工序的机车及机床的进给量,切削深度,主轴转速和切削速度,该工序的夹具,刀具及量具,还有走刀次数和走刀长度,最后计算该工序的基本时间,辅助时间和工作地服务时间。
【关键词】 工序,工艺,定位方案
目 录
第1章 绪论1
1.1 选题的意义....................................................1
1.2 夹具的发展方向............................................1
1.3 本章小结........................................................3
第2章 推动架的加工工艺规程设计3
2.1 推动架的工艺................................................3
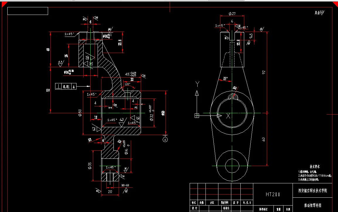
2.1.1 推动架的作用3
2.1.2推动架的技术要求..............................3
2.1.3 推动架的工艺分析4
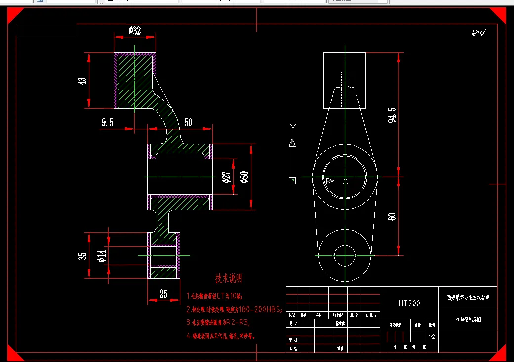
2.3 确定毛坯,绘制毛坯简图.......................6
2.3.1选择毛坯..............................................7
2.3.2 绘制推动架毛坯的铸造简图.............8
2.4 拟定推动架工艺路线....................................9
2.4.1 定位基准的选择...............................10
2.4.2 精基准的选择...................................10
2.4.3粗基准的选择....................................10
2.5各面、孔加工方法的确定...........................11
2.6 加工阶段的划分..........................................11
2.7 工序的集中于分散......................................11
2.8 工序顺序的安排..........................................12
2.8.1机械加工工序....................................12
2.8.2热处理工序........................................13
2.8.3辅助工序............................................13
第3章 机床设备及工艺装备的选用.......................13
3.1 机床设备的选用..........................................13
3.2 工艺装备的选用.........................................13
第4章 加工余量、工序尺寸和公差的选用..........14
第5章 切削用量与时间定额的计算......................15
5.1 切削用量的计算..........................................15
5.1.1 钻孔工步...........................................16
5.1.2 扩孔工步...........................................17
5.1.3 粗绞工步...........................................17
5.1.4 精绞工步...........................................17
5.2 时间定额的计算..........................................17
5.2.1 基本时间Tj的计算.........................18
5.2.2 辅助时间Tf的计算.........................18
5.2.3 其他时间的计算...............................19
5.2.4 单件时间Tdj的计算.......................19
第6章 夹具设计20
6.1 问题的提出..................................................20
6.2 定位方案......................................................20
6.3 夹紧机构......................................................20
6.4 夹具与机床的联接元件..............................20
6.5 定位误差分析..............................................20
6.6 切削力及夹紧力的计算..............................20
结论21
参考文献22
致谢22
温馨提示:
1、题目前面的备注【字母数字编号】为本站整理分类的编号,与课题内容无关,请选题时忽视;
2、若题目上备注三维,则表示文件里包含三维源文件,由于三维组成零件数量较多,为保证预览截图的简洁性,本站将三维文件夹进行了打包。三维及CAD预览截图,均为本站电脑打开软件进行截图的,保证能够打开,下载原件超高清,下载后解压即可;
3、本站所有资源如无特殊说明,都需要本地电脑安装Office2007。图纸软件为AutoCAD,PROE,UG,SolidWorks,CATIA等;
4、本站所有图文资料仅供用户学习参考,不作为任何商用或其他用途;
5、本站不保证下载资源的准确性、安全性和完整性, 不包修改,不支持退换,同时也不承担用户因使用这些下载资源对自己和他人造成任何形式的伤害或损失;
6、 下载文件中如有侵权或不适当内容,请与我们联系,我们立即纠正。