

作品包括:
WORD版设计说明书1份,共43页,约17000字
外文翻译一份
开题报告一份
CAD版本图纸,共10张
中文摘要
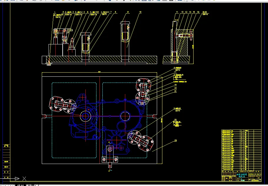
本说明书主要研究的是LH157QMJ-B左箱体工序卡及第一道机加工夹具设计,说明书里分析了左箱体的在加工过程中,如何选择适合的毛坯,选择正确的定位基准,制定合理的工艺路线,选择合适的定位装夹方案。对生产纲领进行计算以确定工件生产方式为大批量生产,详细分析了零件需要加工的各个面和孔,制定出几个工艺路线并进行比较,最终确定合理的工作路线,制定出工序过程卡。本说明书还对每一道工序中的每一道工步的加工时间进行详细的计算,并制出工艺过程卡。所用机床是加工中心。对夹具体也进行了切削力计算;保证夹具设计定位准确,夹紧可靠。以及节约劳动力,节约生产成本,提高生产的效率。
关键词 工艺路线 工序过程卡 加工中心 夹具体
目 录
1 引言 1
2 生产纲领 3
2.1 计算生产纲领决定生产类型 3
2.2 计算生产节拍 3
3 零件的分析 4
3.1 零件的作用 4
3.2 零件的工艺分析 4
4 工艺规程设计 6
4.1 确定毛坯的制造形式 7
4.2 基面的选择 7
4.3 制订工艺路线 8
4.4 机械加工余量、工序尺寸及毛坯尺寸的确定 13
4.5 确定切削用量及基本工时 15
5 夹具的设计 36
5.1 问题的提出 36
5.2 夹具设计 36
结束语 40
致谢 41
参考文献 42
温馨提示:
1、题目前面的备注【字母数字编号】为本站整理分类的编号,与课题内容无关,请选题时忽视;
2、若题目上备注三维,则表示文件里包含三维源文件,由于三维组成零件数量较多,为保证预览截图的简洁性,本站将三维文件夹进行了打包。三维及CAD预览截图,均为本站电脑打开软件进行截图的,保证能够打开,下载原件超高清,下载后解压即可;
3、本站所有资源如无特殊说明,都需要本地电脑安装Office2007。图纸软件为AutoCAD,PROE,UG,SolidWorks,CATIA等;
4、本站所有图文资料仅供用户学习参考,不作为任何商用或其他用途;
5、本站不保证下载资源的准确性、安全性和完整性, 不包修改,不支持退换,同时也不承担用户因使用这些下载资源对自己和他人造成任何形式的伤害或损失;
6、 下载文件中如有侵权或不适当内容,请与我们联系,我们立即纠正。