

作品包括:
word说明书一份,共38页,约12000字
工艺卡一份
CAD版本图纸,共4张
内容摘要
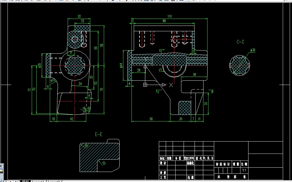
本论文完成了对“C620拨动叉”中批生产工艺规程及工装设计。拨动叉类零件广泛应用于各种机械的变速箱中,本文在详细分析了零件加工的工艺规程及工装设计,从而实现定制中批量生产加工的工艺规程和工装设计。就拨动叉的加工工艺,分析了加工工艺的加工方案,最终确定了一套科学合理的加工路线,并在以后的计算过程中,验证了这套工序的合理性,最后,以铣F槽夹具设计为例,进行设计工装,并做了切削力、夹紧力的分析计算。
关键词:拨动叉;加工工艺;切削用量;定位;夹具
目 录
内容摘要 I
引 言 1
1 概述 3
1.1 题目来源 3
1.2 设计的任务 5
2 零件工艺分析 6
2.1 零件的作用、材料、形状特征 6
2.2 技术要求 6
2.3 设计基准 7
3 工艺过程设计 9
3.1 毛坯—零件综合图设计 9
3.2 工序判定 10
3.3 编制工艺卡 11
4 夹具设计 27
4.1 问题的提出 27
4.2 定位方案的确定 27
4.2.1 定位基准的选择 27
4.2.2 定位方案的确定 27
4.3 切削力及夹紧力计算 29
4.4 定位误差分析 30
4.5 定向键与对刀装置设计 31
4.6 夹具设计及操作简要说明 32
5 结论 34
参考文献 35
温馨提示:
1、题目前面的备注【字母数字编号】为本站整理分类的编号,与课题内容无关,请选题时忽视;
2、若题目上备注三维,则表示文件里包含三维源文件,由于三维组成零件数量较多,为保证预览截图的简洁性,本站将三维文件夹进行了打包。三维及CAD预览截图,均为本站电脑打开软件进行截图的,保证能够打开,下载原件超高清,下载后解压即可;
3、本站所有资源如无特殊说明,都需要本地电脑安装Office2007。图纸软件为AutoCAD,PROE,UG,SolidWorks,CATIA等;
4、本站所有图文资料仅供用户学习参考,不作为任何商用或其他用途;
5、本站不保证下载资源的准确性、安全性和完整性, 不包修改,不支持退换,同时也不承担用户因使用这些下载资源对自己和他人造成任何形式的伤害或损失;
6、 下载文件中如有侵权或不适当内容,请与我们联系,我们立即纠正。