

作品包括:
Word版说明书一份,共21页,约6100字
CAD版本图纸,共6张
工序卡一份
过程卡一份
摘 要
机械制造工业是为现代化建设提供各种机械装备的部门,在国民经济的发展中具有十分重要的地位。
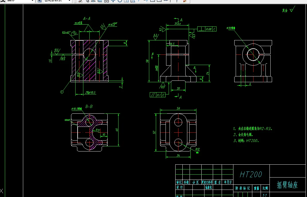
本文针对钻床主轴套筒的机械加工工艺规程分析和滚齿用夹具设计,进行了零件图分析、毛坯选择、基准的选择、工艺路线的确定、工序尺寸的确定、选择机械加工工艺设备、填写了机械加工工艺过程卡片和指定工序机械加工工序卡片,进行了滚齿夹具设计,并进行了定位误差分析等。
关键词:钻床套筒设计、加工工艺、滚齿夹具
目 录
中文摘要…………………………………………………………………………………………2
1. 引言……………………………………………………………………………………………4
2. 计算生产纲领,确定生产类型……………………………………………………………4
3. 零件的分析…………………………………………………………………………………4
4. 选择毛坯…………………………………………………………………………………5
5. 工艺规程设计………………………………………………………………………………5
5.1 定位基准选择………………………………………………………………………………5
5.2零件的加工方法的选择…………………………………………………………………5
5.3定制工艺路线………………………………………………………………………………6
5.4确定机械加工的余量及毛坯尺寸,设计毛坯——零件综合图…………………7
6. 工序设计………………………………………………………………………………8
6.1选择加工设备工艺装备…………………………………………………………………8
6.2工序尺寸的确定及计算…………………………………………………………………9
6.3选择切削用量、确定时间定额…………………………………………………………10
7. 滚齿用夹具设计…………………………………………………………………………11
7.1拟定滚齿夹具的结构方案………………………………………………………………11
7.2确定刀具的导向方式或对刀装置……………………………………………………12
7.3夹具精度的计……………………………………………………………………………12
7.4夹具总图………………………………………………………………………………13
7.5夹具零件图………………………………………………………………………………14
8. 课题总结………………………………………………………………………………14
参考文献………………………………………………………………………………15
附表………………………………………………………………………………16
温馨提示:
1、题目前面的备注【字母数字编号】为本站整理分类的编号,与课题内容无关,请选题时忽视;
2、若题目上备注三维,则表示文件里包含三维源文件,由于三维组成零件数量较多,为保证预览截图的简洁性,本站将三维文件夹进行了打包。三维及CAD预览截图,均为本站电脑打开软件进行截图的,保证能够打开,下载原件超高清,下载后解压即可;
3、本站所有资源如无特殊说明,都需要本地电脑安装Office2007。图纸软件为AutoCAD,PROE,UG,SolidWorks,CATIA等;
4、本站所有图文资料仅供用户学习参考,不作为任何商用或其他用途;
5、本站不保证下载资源的准确性、安全性和完整性, 不包修改,不支持退换,同时也不承担用户因使用这些下载资源对自己和他人造成任何形式的伤害或损失;
6、 下载文件中如有侵权或不适当内容,请与我们联系,我们立即纠正。