

作品包括:
WORD版设计说明书1份,共18页,约5600字左右
CAD版本图纸,共4张
工序卡一张
过程卡一张
摘 要
机械制造技术基础课程设计是未来从事机械制造技术工作的一次基本应用能力的全面训练。
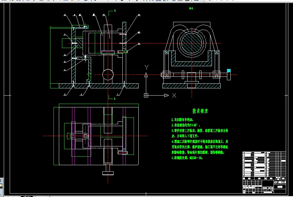
设计内容:设计“油缸体”零件的机械加工工艺规程及工艺装备,并绘制出零件图、毛坯图、夹具装配图,夹具体零件图。填写机械加工工艺过程综合卡片、机械加工工艺卡片。编制课程设计说明书。
设计意义:本课程设计是重要的实践教学环节之一。是在完成生产实习,学完机械制造技术基础和其它专业课程之后进行的。通过该课程设计,将所学理论与生产实践相结合, 锻炼了自己分析问题、解决问题的能力,在这个过程中我独立地分析和解决了零件机械制造的工艺问题,设计了机床专用夹具这一典型的工艺装备,提高了结构设计能力,为今后的毕业设计及对自己未来将从事的工作进行了一次适应性训练,从而打下了良好的基础。
目录
1零件的分析…………………………………………………………7
1.1零件的用途………………………………………………………7
1.2零件的技术要求…………………………………………………7
1.3零件的工艺性……………………………………………………8
1.4零件的生产类型…………………………………………………8
2毛坯的确定…………………………………………………………8
2.1选择毛坯…………………………………………………………8
2.2确定机械加工余量………………………………………………8
2.3毛坯简图…………………………………………………………9
3机械加工工艺规程…………………………………………………9
3.1定位基准的确定…………………………………………………9
3.2表面加工方法的确定…………………………………………10
3.3加工阶段的划分………………………………………………10
3.4工序的集中与分散……………………………………………10
3.5工艺路线的确定………………………………………………11
4工序尺寸的确定……………………………………………………12
5切削用量及时间定额的计算……………………………………12
5.1切削用量…………………………………………………………12
5.1.1粗铰工步………………………………………………………12
5.1.2半精铰工步……………………………………………………12
5.2时间定额的计算………………………………………………12
5.2.1基本时间的计算……………………………………………12
5.2.2辅助时间的计算……………………………………………13
5.2.3其他时间的计算……………………………………………13
6夹具设计……………………………………………………………13
6.1定位方案…………………………………………………………13
6.2夹紧机构…………………………………………………………14
6.3导向装置…………………………………………………………14
6.4误差分析…………………………………………………………14
7体会与展望…………………………………………………………15
8参考文献……………………………………………………………16
温馨提示:
1、题目前面的备注【字母数字编号】为本站整理分类的编号,与课题内容无关,请选题时忽视;
2、若题目上备注三维,则表示文件里包含三维源文件,由于三维组成零件数量较多,为保证预览截图的简洁性,本站将三维文件夹进行了打包。三维及CAD预览截图,均为本站电脑打开软件进行截图的,保证能够打开,下载原件超高清,下载后解压即可;
3、本站所有资源如无特殊说明,都需要本地电脑安装Office2007。图纸软件为AutoCAD,PROE,UG,SolidWorks,CATIA等;
4、本站所有图文资料仅供用户学习参考,不作为任何商用或其他用途;
5、本站不保证下载资源的准确性、安全性和完整性, 不包修改,不支持退换,同时也不承担用户因使用这些下载资源对自己和他人造成任何形式的伤害或损失;
6、 下载文件中如有侵权或不适当内容,请与我们联系,我们立即纠正。