

作品包括:
说明书1份,共20页,约5900字左右
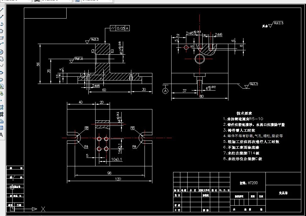
CAD版本图纸,共4张
工序卡一份

目 录
第1章 前言 2
第2章 零件的分析 3
2.1 零件的作用 3
2.2 拨叉的工艺分析 3
第3章 拨叉零件工艺规程设计 4
3.1毛坯的制造形式的确定 4
3.2 基准的选择 4
3.3 制定工艺路线 4
3.4确定机械制造余量与工序的尺寸和毛呸尺寸 5
3.5设备及其工艺装备确定 6
3.6切削用量与加工工时的确定 6
3.6.1工序:铣右侧平面 6
3.6.2铣左侧平面 8
3.6.3铣15槽 9
3.6.4钻铰φ20孔 11
3.6.5钻φ5孔 12
第4章 铣15mm槽夹具设计 13
4.1问题提出 13
4.2.定位基准的选择 13
4.3切削力及夹紧力的计算 13
4.4定位误差分析 15
4.5夹具设计及操作的简要说明 15
设计总结 16
参考文献 17
致谢 17
温馨提示:
1、题目前面的备注【字母数字编号】为本站整理分类的编号,与课题内容无关,请选题时忽视;
2、若题目上备注三维,则表示文件里包含三维源文件,由于三维组成零件数量较多,为保证预览截图的简洁性,本站将三维文件夹进行了打包。三维及CAD预览截图,均为本站电脑打开软件进行截图的,保证能够打开,下载原件超高清,下载后解压即可;
3、本站所有资源如无特殊说明,都需要本地电脑安装Office2007。图纸软件为AutoCAD,PROE,UG,SolidWorks,CATIA等;
4、本站所有图文资料仅供用户学习参考,不作为任何商用或其他用途;
5、本站不保证下载资源的准确性、安全性和完整性, 不包修改,不支持退换,同时也不承担用户因使用这些下载资源对自己和他人造成任何形式的伤害或损失;
6、 下载文件中如有侵权或不适当内容,请与我们联系,我们立即纠正。