

文档包括:
word说明书一份,7页,约2600字左右
工序卡一份
过程卡一份
CAD版本图纸,共3张

设计任务书
设计题目:SH-50型拖拉机倒挡二、三档拨叉机械加工工艺规程的编制及铣叉档工序夹具设计;
生产纲领:每年5000只;
设计要求完成:
毛坯图1张(A3)
机械加工工艺卡1张
铣叉挡工序机械加工工序卡1张;
铣叉挡工序夹具总装图1张(A1);
设计说明书1份。
前 言
本次课程设计是我们在进行毕业设计之前对所学工艺课程的一次深入、全面的总复习,也是一次理论联系实际的训练。
对我个人而言,希望通过这次课程设计,提高自己分析问题、解决问题的能力,为今后的工作打下良好的基础。
由于本人工作经验及能力有限,设计中难免有许多不足之处,请老师给予批评、指正。
第一章 零件的分析
一、零件的作用
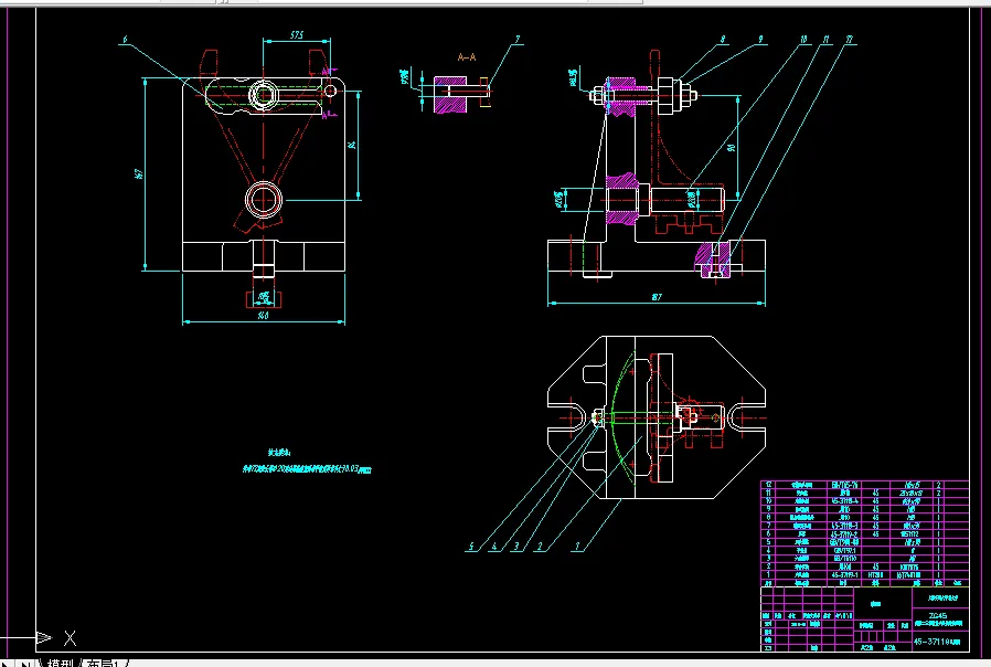
拨叉零件广泛应用于拖拉机、汽车等变速箱中,与操纵机构的其他零件结合,用它拨动滑动齿轮,实现倒车。孔 为配合面,有较高精度。槽 为滑块拨动的配合表面。两个F表面为与滑动齿轮接触之表面。
温馨提示:
1、题目前面的备注【字母数字编号】为本站整理分类的编号,与课题内容无关,请选题时忽视;
2、若题目上备注三维,则表示文件里包含三维源文件,由于三维组成零件数量较多,为保证预览截图的简洁性,本站将三维文件夹进行了打包。三维及CAD预览截图,均为本站电脑打开软件进行截图的,保证能够打开,下载原件超高清,下载后解压即可;
3、本站所有资源如无特殊说明,都需要本地电脑安装Office2007。图纸软件为AutoCAD,PROE,UG,SolidWorks,CATIA等;
4、本站所有图文资料仅供用户学习参考,不作为任何商用或其他用途;
5、本站不保证下载资源的准确性、安全性和完整性, 不包修改,不支持退换,同时也不承担用户因使用这些下载资源对自己和他人造成任何形式的伤害或损失;
6、 下载文件中如有侵权或不适当内容,请与我们联系,我们立即纠正。