

文档包括:
Word版说明书1份,共30页,约10000字
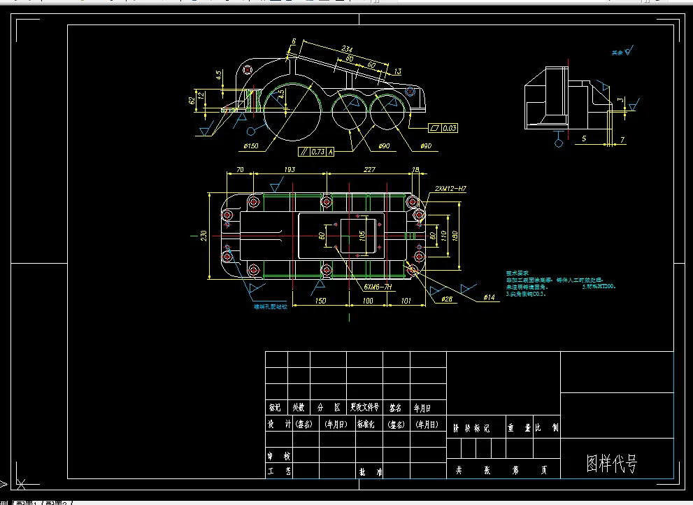
CAD版本图纸,共7张
工序卡一份
工艺过程卡一份

目录
第一章 绪 论 2
第二章 分析减速器箱体的零件图 3
2.1减速器箱体工艺性的分析 3
2.1.1减速器箱体结构功用分析 3
2.1.2零件结构工艺性分析 3
2.1.3主要技术的条件 4
2.2 确定毛坯的结构 5
第三章 减速器箱体的加工工艺设计 6
3.1 选取加工基面 6
3.1.1 粗基准的选择 6
3.1.2精基准选择的原则 7
3.2 零件各加工部位加工方法的选择 7
3.3 加工顺序的安排 8
3.4 制定工艺路线 9
3.5机械加工余量、工序尺寸及公差的确定 11
3.5.1毛坯的种类分析 11
3.5.2毛坯的加工余量 11
3.6设备及其工艺装备确定 13
3.7确定切削用量及基本工时 13
第四章 夹具设计 24
4.1研究原始质料 24
4.2定位基准的选择 24
4.3 切削力及夹紧分析计算 24
4.4 误差分析与计算 25
4.5 夹具设计及操作的简要说明 27
第五章 总结 28
温馨提示:
1、题目前面的备注【字母数字编号】为本站整理分类的编号,与课题内容无关,请选题时忽视;
2、若题目上备注三维,则表示文件里包含三维源文件,由于三维组成零件数量较多,为保证预览截图的简洁性,本站将三维文件夹进行了打包。三维及CAD预览截图,均为本站电脑打开软件进行截图的,保证能够打开,下载原件超高清,下载后解压即可;
3、本站所有资源如无特殊说明,都需要本地电脑安装Office2007。图纸软件为AutoCAD,PROE,UG,SolidWorks,CATIA等;
4、本站所有图文资料仅供用户学习参考,不作为任何商用或其他用途;
5、本站不保证下载资源的准确性、安全性和完整性, 不包修改,不支持退换,同时也不承担用户因使用这些下载资源对自己和他人造成任何形式的伤害或损失;
6、 下载文件中如有侵权或不适当内容,请与我们联系,我们立即纠正。