

作品包括:
Word版说明书1份,共41页
工序卡10张
工艺过程卡1张
CAD版本图纸,共10张
SW三维图一份
摘要
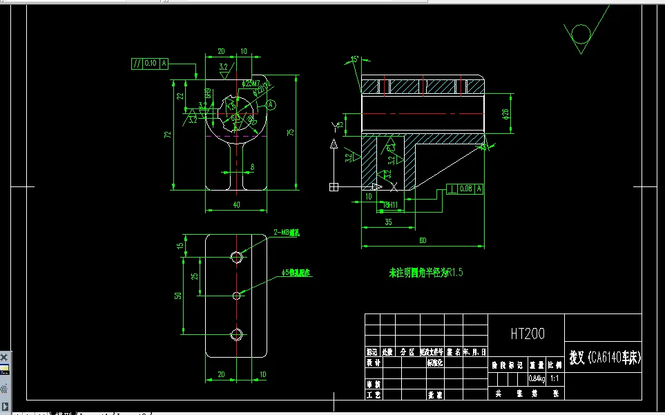
万向节滑动叉主要用于在两个不同的心轴或有一定夹角的轴间传递动力,使用万向节滑动叉可以简化万向传动装置的结构,因此对于万向节滑动叉的研究具有深远的意义。
本次设计的主要内容就是制订万向节滑动叉的相关工艺规程,并设计其中的专用夹具,运用三维软件建立实体图,导出二维图并应用CAD修改。设计内容需要运用各方面的机械专业知识,是对我们学习成果的全面考察也是对专业软件应用熟练程度的一次考验。
总的来说本次设计是对四年专业知识学习的总结与提高,是一种知识层次的升华。
关键词:万向节滑动叉;工艺分析;专用夹具
目录
摘要I
Abstract II
第一章绪论1
1.1研究背景1
1.2国内外研究现状与发展1
1.3汽车零部件企业存在的问题2
1.4研究目的和意义2
1.5本课题的主要研究内容2
第二章零件的分析4
2.1零件的作用4
2.2零件的材料4
2.3零件的工艺分析5
2.3.1结构分析5
2.3.2加工表面技术要求分析5
第三章工艺规程设计7
3.1策划零件工艺规程的规定以及技术指导7
3.1.1工艺要求7
3.1.2技术依据7
3.2生产类型的确定7
3.3确定毛坯的制造形式7
3.4制定工艺路线及其方法8
3.4.1加工方法的选择8
3.4.2基准的选择8
3.4.3制定工艺路线9
3.5机械加工余量,工艺尺寸及毛坯尺寸的确定18
3.6确定切削用量和基本工时20
3.6.1加工条件20
3.6.2计算切削用量20
第四章夹具设计32
4.1夹具设计的基本要求32
4.2专用机床夹具的组成32
4.3专用夹具的设计方法和步骤32
4.4专用夹具设计方案33
总结34
致谢35
参考文献36
温馨提示:
1、题目前面的备注【字母数字编号】为本站整理分类的编号,与课题内容无关,请选题时忽视;
2、若题目上备注三维,则表示文件里包含三维源文件,由于三维组成零件数量较多,为保证预览截图的简洁性,本站将三维文件夹进行了打包。三维及CAD预览截图,均为本站电脑打开软件进行截图的,保证能够打开,下载原件超高清,下载后解压即可;
3、本站所有资源如无特殊说明,都需要本地电脑安装Office2007。图纸软件为AutoCAD,PROE,UG,SolidWorks,CATIA等;
4、本站所有图文资料仅供用户学习参考,不作为任何商用或其他用途;
5、本站不保证下载资源的准确性、安全性和完整性, 不包修改,不支持退换,同时也不承担用户因使用这些下载资源对自己和他人造成任何形式的伤害或损失;
6、 下载文件中如有侵权或不适当内容,请与我们联系,我们立即纠正。