

作品包括:
说明书1份,共38页,约13000字
CAD版本图纸,共12张
工艺过程卡片一套

摘 要
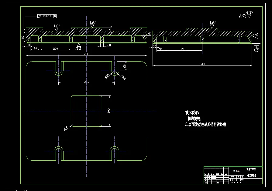
本次设计的课题是X6020B卧式升降台铣床变速箱机械加工工艺规程及精镗I、II、III组支承孔的夹具。变速箱体是X6020B卧式升降台铣床传动系统最主要的部件之一,它将机床的主轴箱、进给箱等零件组成一个整体并使之保持正确的位置。因此,变速箱的加工质量将直接影响机器的性能与使用寿命。本设计旨在提高X6020B卧式升降台铣床变速箱的加工效率,由此我们首先对变速箱体的结构和工艺进行了仔细的分析,然后确定了一套合理的加工方案对其进行加工。加工方案要求简单,操作方便,并能保证零件的加工质量。最后,依照确定好的方案,按照正确的加工工序将它加工出来,并使之满足零件的设计要求。此外,为了提高劳动生产率,降低劳动强度,保证加工质量,需设计专用夹具,为此选择了第10道工序——镗 , 的夹具设计,以满足加工过程的需要。
关键词:变速箱体;工艺规程;夹具;设计
目录
摘 要 2
前 言 5
1 零件的分析 7
1.1 X6020B卧式升降台铣床的介绍 7
1.2 X6020B卧式升降台铣床的性能和用途 7
1.3 零件的功用 8
1.4 零件的工艺分析 8
1.5 箱体的材料及毛坯种类的选择 9
2 X6020B变速箱体的机械加工工艺规程设计 10
2.1 变速箱体机械加工时的主要问题 10
2.1.1 孔和平面的加工顺序 10
2.1.2 粗,精加工分阶段进行 10
2.1.3 孔系加工方案的选择 10
2.2 机体机械加工时定位基准的选择 10
2.2.1 粗基准的选择 10
2.2.2 精基准的选择 11
2.3 工序的合理组合 11
2.3.1 工序分散原则 11
2.3.2 工序集中原则 11
2.4 制订工艺路线 12
3 确定机械加工余量,工序尺寸及其公差 15
3.1 平面的机械加工余量,工序尺寸及其公差 15
3.2 孔的机械加工余量,工序尺寸及其公差 15
4 确定切削用量、工时定额、切削力及切削功率 17
4.1 切削用量的选择原则 17
4.1.1 粗加工切削用量的选择原则 17
4.1.2 精加工时切削用量的选择原则 18
4.2 铣平面 18
4.3 镗孔加工 20
4.4 钻孔加工 22
5 夹具设计 25
5.1 夹具的定义以及分类 25
5.1.2 按使用机床分类 26
5.1.3 按夹紧的动力源分类 26
5.2 机床夹具在机械加工中的作用 26
5.3 机床夹具的组成 27
5.4 夹具的设计 28
5.4.1 对工件进行工艺分析 28
5.4.2 定位装置的确定 29
5.4.3 夹紧装置的确定 30
5.4.4 计算夹紧力并确定螺杆直径 30
5.4.5 镗模支架的结构和尺寸的确定 32
5.4.6 镗模底座的结构和尺寸的确定 32
5.4.7 拟定本夹具的技术要求 33
5.4.8 夹具的精度分析 33
5.4.9 镗套的选择: 34
结束语 35
参考文献 36
致 谢 37
附 录 38
温馨提示:
1、题目前面的备注【字母数字编号】为本站整理分类的编号,与课题内容无关,请选题时忽视;
2、若题目上备注三维,则表示文件里包含三维源文件,由于三维组成零件数量较多,为保证预览截图的简洁性,本站将三维文件夹进行了打包。三维及CAD预览截图,均为本站电脑打开软件进行截图的,保证能够打开,下载原件超高清,下载后解压即可;
3、本站所有资源如无特殊说明,都需要本地电脑安装Office2007。图纸软件为AutoCAD,PROE,UG,SolidWorks,CATIA等;
4、本站所有图文资料仅供用户学习参考,不作为任何商用或其他用途;
5、本站不保证下载资源的准确性、安全性和完整性, 不包修改,不支持退换,同时也不承担用户因使用这些下载资源对自己和他人造成任何形式的伤害或损失;
6、 下载文件中如有侵权或不适当内容,请与我们联系,我们立即纠正。