

作品包括:
说明书1份,共32页,约9200字左右
CAD图版本图纸,共6张

摘要
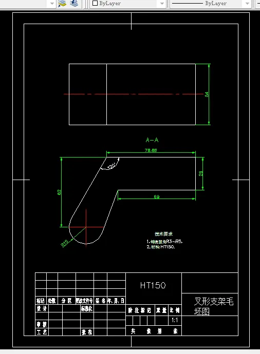
本次设计是叉形支架件的加工工艺规程及一些工序的专用夹具设计。叉形支架的主要加工表面是平面及孔。由加工工艺原则可知,保证平面的加工精度要比保证孔的加工精度容易。所以本设计遵循先面后孔的原则。并将孔与平面的加工明确划分成粗加工和精加工阶段以保证加工精度。基准选择以工件前面、工件前端面及工件右侧面作为定位粗基准,以叉形支架后面作为精基准。
关键词:叉形支架;加工工艺;专用夹具
目录
摘要 2
Abstract 3
1 零件的分析 5
1.1 零件的作用 5
1.2 零件的工艺分析 6
1.2.1零件图 6
1.2.2加工表面及孔 6
2 确定零件的生产类型 8
2.1 零件的生产类型 8
2.2 毛坯的确定 8
2.2.1 确定毛坯的种类及其制造方法 8
2.2 2确定注件加工余量 8
2.2.3 绘制铸件毛坯图 9
3 定位基准的选择 10
3.1选择粗基准 10
3.2选择精基准 10
4 制定机械加工工艺路线 11
5 机械加工余量,工序尺寸及公差的确定 12
5.1加工余量和工序尺寸的确定 12
5.2确定切削用量及时间按定额 13
6 钻Φ10H9孔夹具设计 25
6.1 夹具的设计 25
6.1.1 定位分析 25
6.1.2 定位原理 25
6.1.3 定位元件的分析 26
6.1.4 夹紧元件的选择 26
6.1.5定位误差的分析 27
6.1.6切削力及夹紧力的计算 28
6.2 夹具设计及操作的简要说明 29
总 结 30
参考文献 31
致 谢 32
温馨提示:
1、题目前面的备注【字母数字编号】为本站整理分类的编号,与课题内容无关,请选题时忽视;
2、若题目上备注三维,则表示文件里包含三维源文件,由于三维组成零件数量较多,为保证预览截图的简洁性,本站将三维文件夹进行了打包。三维及CAD预览截图,均为本站电脑打开软件进行截图的,保证能够打开,下载原件超高清,下载后解压即可;
3、本站所有资源如无特殊说明,都需要本地电脑安装Office2007。图纸软件为AutoCAD,PROE,UG,SolidWorks,CATIA等;
4、本站所有图文资料仅供用户学习参考,不作为任何商用或其他用途;
5、本站不保证下载资源的准确性、安全性和完整性, 不包修改,不支持退换,同时也不承担用户因使用这些下载资源对自己和他人造成任何形式的伤害或损失;
6、 下载文件中如有侵权或不适当内容,请与我们联系,我们立即纠正。