欢迎来到龙图网在线图文分享平台-CAD图纸,设计说明书,工业设计3D模型,三维软件下载! 客服QQ:2363701252
热搜: 工艺夹具 模具设计 数控编程 土木工程 3D模型

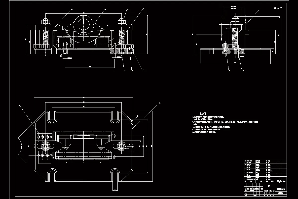
JJ1558-采煤机导向靴加工工艺及铣两侧面夹具设计 下载积分:120 资料编号: JJ1558

1.打开支付宝或者微信扫描二维码。
2.填写金额:120 
3.添加备注,填写资料编号:
资料编号: JJ1558
4.支付成功后,请发资料编号到邮箱:jxsj168@qq.com
会有专人在15分钟内把资料发到您邮箱
备注:如果付款忘记填写资料编号,则发邮件时附带您的交易明细截图即可。
请耐心等待,如超过30分钟还没收到,请联系客服QQ:2363701252

作品描述

作品包括:

Word版说明书1份,共60页

任务书一份

文献综述一份

外文翻译一份

工序卡一套

工艺过程卡1张

CAD版本图纸,共3张

image.webp

摘要

现如今,一个发达国家在经济上获得成功的关键要素之一便必然离不开其制造生产技术。在对MG750/1800-WD采煤机导向靴进行分析后,根据粗糙度及公差要求找待加工表面,对导向靴进行机械加工工艺路线的设计并在此过程中选择合适的机床、刀具、量具等进行加工,完成导向靴零件的毛坯图的绘制。这样设计的工艺路线可以有效缩减制造设备,工人的生产成本,这样不仅极大地降低了产品的生产成本,而且使设备生产的效率也得到了极大地提升,因此主要就如何做才能够促进高效生产,在高效生产的同时又能保证高质量的生产进行了考虑。与此同时,按照其中的加工工艺及工序的要求进行夹具的设计以及完成夹具装配图的绘制。

关键词:导向靴;机械加工工艺;专用夹具

目录

1绪论1

1.1本课题的研究内容及意义1

1.2国内外发展状况1

2零件分析3

2.1零件的作用3

2.2零件的工艺分析3

2.3确定零件的生产类型4

3确定毛坯类型绘制毛坯简图5

3.1选择毛坯5

3.2确定毛坯的尺寸公差和机械加工余量6

3.3绘制毛坯简图8

4工艺规程设计9

4.1定位基准的选择9

4.1.1精基准的选择9

4.1.2粗基准的选择10

4.2工艺路线的拟定10

4.2.1零件表面加工方法的选择11

4.2.2加工阶段划分12

4.2.3工序的集中与分散12

4.2.4工序顺序的安排13

4.3拟定工艺路线14

4.4加工设备及工艺装备的选用15

4.5机械加工余量、工序尺寸和公差的确定17

4.5.1工序间的机械加工余量18

4.5.2确定工序尺寸的基本尺寸和公差20

4.6切削用量的计算20

4.7时间定额的计算22

4.8填写机械加工工艺过程卡和机械加工工序卡36

5专用夹具设计37

5.1专用夹具简介37

5.2夹具设计任务37

5.2.1零件在本工序的加工要求分析38

5.2.2生产类型38

5.3拟订夹具结构方案与绘制夹具草图38

5.3.1确定工件的组合定位方式、定位方案和选择定位元件38

5.3.2确定夹紧方案38

5.3.3确定刀具的引导方法,并设计引导元件或对刀装置39

5.3.4确定夹具体结构形式和夹具与机床的安装方式39

5.4绘制夹具装配总图39

总结42

参考文献43

致谢45

温馨提示:

1、题目前面的备注【字母数字编号】为本站整理分类的编号,与课题内容无关,请选题时忽视;

2、若题目上备注三维,则表示文件里包含三维源文件,由于三维组成零件数量较多,为保证预览截图的简洁性,本站将三维文件夹进行了打包。三维及CAD预览截图,均为本站电脑打开软件进行截图的,保证能够打开,下载原件超高清,下载后解压即可;

3、本站所有资源如无特殊说明,都需要本地电脑安装Office2007。图纸软件为AutoCAD,PROE,UG,SolidWorks,CATIA等;

4、本站所有图文资料仅供用户学习参考,不作为任何商用或其他用途;
5、本站不保证下载资源的准确性、安全性和完整性, 不包修改,不支持退换,同时也不承担用户因使用这些下载资源对自己和他人造成任何形式的伤害或损失;

6、 下载文件中如有侵权或不适当内容,请与我们联系,我们立即纠正。


线

JJ1558-采煤机导向靴加工工艺及铣两侧面夹具设计 下载积分:120 资料编号:JJ1558

作品描述

作品包括:

Word版说明书1份,共60页

任务书一份

文献综述一份

外文翻译一份

工序卡一套

工艺过程卡1张

CAD版本图纸,共3张

image.webp

摘要

现如今,一个发达国家在经济上获得成功的关键要素之一便必然离不开其制造生产技术。在对MG750/1800-WD采煤机导向靴进行分析后,根据粗糙度及公差要求找待加工表面,对导向靴进行机械加工工艺路线的设计并在此过程中选择合适的机床、刀具、量具等进行加工,完成导向靴零件的毛坯图的绘制。这样设计的工艺路线可以有效缩减制造设备,工人的生产成本,这样不仅极大地降低了产品的生产成本,而且使设备生产的效率也得到了极大地提升,因此主要就如何做才能够促进高效生产,在高效生产的同时又能保证高质量的生产进行了考虑。与此同时,按照其中的加工工艺及工序的要求进行夹具的设计以及完成夹具装配图的绘制。

关键词:导向靴;机械加工工艺;专用夹具

目录

1绪论1

1.1本课题的研究内容及意义1

1.2国内外发展状况1

2零件分析3

2.1零件的作用3

2.2零件的工艺分析3

2.3确定零件的生产类型4

3确定毛坯类型绘制毛坯简图5

3.1选择毛坯5

3.2确定毛坯的尺寸公差和机械加工余量6

3.3绘制毛坯简图8

4工艺规程设计9

4.1定位基准的选择9

4.1.1精基准的选择9

4.1.2粗基准的选择10

4.2工艺路线的拟定10

4.2.1零件表面加工方法的选择11

4.2.2加工阶段划分12

4.2.3工序的集中与分散12

4.2.4工序顺序的安排13

4.3拟定工艺路线14

4.4加工设备及工艺装备的选用15

4.5机械加工余量、工序尺寸和公差的确定17

4.5.1工序间的机械加工余量18

4.5.2确定工序尺寸的基本尺寸和公差20

4.6切削用量的计算20

4.7时间定额的计算22

4.8填写机械加工工艺过程卡和机械加工工序卡36

5专用夹具设计37

5.1专用夹具简介37

5.2夹具设计任务37

5.2.1零件在本工序的加工要求分析38

5.2.2生产类型38

5.3拟订夹具结构方案与绘制夹具草图38

5.3.1确定工件的组合定位方式、定位方案和选择定位元件38

5.3.2确定夹紧方案38

5.3.3确定刀具的引导方法,并设计引导元件或对刀装置39

5.3.4确定夹具体结构形式和夹具与机床的安装方式39

5.4绘制夹具装配总图39

总结42

参考文献43

致谢45

温馨提示:

1、题目前面的备注【字母数字编号】为本站整理分类的编号,与课题内容无关,请选题时忽视;

2、若题目上备注三维,则表示文件里包含三维源文件,由于三维组成零件数量较多,为保证预览截图的简洁性,本站将三维文件夹进行了打包。三维及CAD预览截图,均为本站电脑打开软件进行截图的,保证能够打开,下载原件超高清,下载后解压即可;

3、本站所有资源如无特殊说明,都需要本地电脑安装Office2007。图纸软件为AutoCAD,PROE,UG,SolidWorks,CATIA等;

4、本站所有图文资料仅供用户学习参考,不作为任何商用或其他用途;
5、本站不保证下载资源的准确性、安全性和完整性, 不包修改,不支持退换,同时也不承担用户因使用这些下载资源对自己和他人造成任何形式的伤害或损失;

6、 下载文件中如有侵权或不适当内容,请与我们联系,我们立即纠正。

关于我们 网站申明 友情链接 联系我们

扫一扫,联系微信客服


Copyright @ 龙图网版权所有  网站客服QQ:2363701252  微信客服:a58cad

皖ICP备2021006205号-2