

作品包括:
Word版说明书1份,共24页,约6300字
工序卡一张
过程卡一张
CAD版本图纸,共4张

目录
摘要 I
ABSTRACT II
第一章 引 言 1
第二章 零件的工艺分析及生产类型确定 2
2.1 零件的作用 2
2.2零件的工艺分析 2
2.2.1零件分析 2
2.1.2支座主要技术要求 3
2.1.3审查支座的工艺性 3
2.1.4确定零件的生产类型 3
第三章 确定毛坯种类 4
3.1选择毛坯 4
3.2确定铸件加工余量及形状 4
第四章 工艺规程设计 5
4.1定位基准的选择 5
4.2拟定支座工艺路线 6
4.3机械加工余量、工序尺寸及公差的确定 7
4.4切削用量、时间定额的计算 8
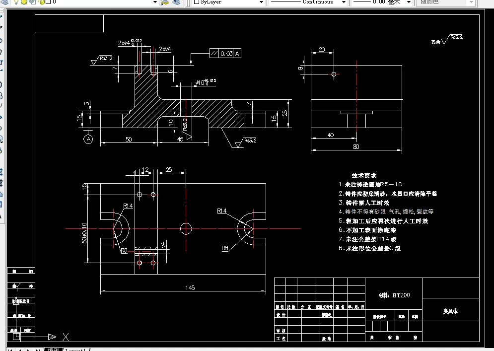
第五章 专用夹具设计 15
5.1问题提出 15
5.2夹具设计 15
5.2.1定位基准的选择 15
5.2.2切削力与夹紧力的计算 15
5.2.3定位误差分析 15
5.2.4夹具设计及操作的简要说明 16
第六章 总结 18
参考文献 19
温馨提示:
1、题目前面的备注【字母数字编号】为本站整理分类的编号,与课题内容无关,请选题时忽视;
2、若题目上备注三维,则表示文件里包含三维源文件,由于三维组成零件数量较多,为保证预览截图的简洁性,本站将三维文件夹进行了打包。三维及CAD预览截图,均为本站电脑打开软件进行截图的,保证能够打开,下载原件超高清,下载后解压即可;
3、本站所有资源如无特殊说明,都需要本地电脑安装Office2007。图纸软件为AutoCAD,PROE,UG,SolidWorks,CATIA等;
4、本站所有图文资料仅供用户学习参考,不作为任何商用或其他用途;
5、本站不保证下载资源的准确性、安全性和完整性, 不包修改,不支持退换,同时也不承担用户因使用这些下载资源对自己和他人造成任何形式的伤害或损失;
6、 下载文件中如有侵权或不适当内容,请与我们联系,我们立即纠正。