

作品包括:
说明书1份,共36页,约14000字左右
CAD版本本图纸,共5张
Proe三维图一份

摘 要
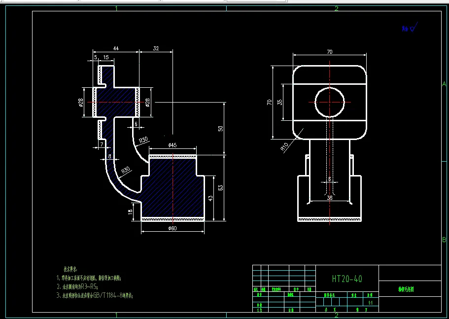
本毕业设计的课题是轴架零件的机械加工工艺及夹具设计。从图纸中可以清楚的知道,轴架类零件的作用是用来支撑运动零件和其他的基本零件,轴架类零件的组成部分形状多种多样,轴架类零件也各有不同,但是按照其结构功能大体可以分为三大部分:工作主题部分、安装部分和连接支承部分,随着科学技术的迅猛发展,轴架类零件的制作和使用过程中得到了一致好评,应用的范围一直在扩展,这种零件在机械的使用中具有良好的稳定性和操纵性,一直是气密性要求高适应好等高要求铸件应用的主要对象。这种设计是必须要 培养自主学习以及自我创新的能力。所以这种设计是全面和实用的,涵盖广泛的知识。因此,我们不仅要关注设计中的基本概念,也需要关注生产实践。把理论和生产实践结合起来,我们才能完成好这次的设计。
这篇论文会对国内轴架零件加工工艺夹具的历来的情况进行一个简要的概述,而且加上了轴架零件加工工艺夹具工作的理念简述,综述国内外轴架零件加工工艺夹具的现在的发展情况后,也综合了它的装置构造是如何设计概念。论文中,做好了轴架零件加工工艺夹具构造与设计的方案,对该装置的参数进行设计,校对其强度,分析其运动,轴架零件加工工艺夹具的每个机械构造和尺寸分别得到确认和完善。
关键词:轴架,工艺,夹具
目 录
摘 要 II
ABSTRACT III
第1章 绪论 2
1.1 课题的目的及意义 2
1.2 国内外发展动态 3
1.3主要研究内容 4
第2章 零件分析 6
2.1零件详细分析图 6
2.2零件的作用 6
2.3零件加工表格面的详细技术分析 7
2.4把毛坯的余量跟形状确定 7
2.5绘制毛坯图 8
第3章 机械加工的工艺流程设计 9
3.1准确选择定位基准 9
3.2 拟订的工艺过程 9
第4章 加工设备跟工艺装备的选选取 12
4.1依照不同的工序来选择不同的机床 12
4.2如何选选取刀具,夹具以及量具 12
4.3 切削用量的计算和确定 13
第5章 钻床专用夹具设计 21
5.1确定出设计的任务跟收集并分析原始的资料 21
5.2夹具的结构以及类型 23
5.3工件定位基准的选择和自由度分析 23
5.4夹具的内部结构 24
5.5对夹具的精度进行分析 25
5.6夹紧力计算 27
5.7夹具设计及操作的简要说明 27
第6章 总结与展望 29
6.1总结 29
6.2展望 30
参考文献 31
致谢 33
温馨提示:
1、题目前面的备注【字母数字编号】为本站整理分类的编号,与课题内容无关,请选题时忽视;
2、若题目上备注三维,则表示文件里包含三维源文件,由于三维组成零件数量较多,为保证预览截图的简洁性,本站将三维文件夹进行了打包。三维及CAD预览截图,均为本站电脑打开软件进行截图的,保证能够打开,下载原件超高清,下载后解压即可;
3、本站所有资源如无特殊说明,都需要本地电脑安装Office2007。图纸软件为AutoCAD,PROE,UG,SolidWorks,CATIA等;
4、本站所有图文资料仅供用户学习参考,不作为任何商用或其他用途;
5、本站不保证下载资源的准确性、安全性和完整性, 不包修改,不支持退换,同时也不承担用户因使用这些下载资源对自己和他人造成任何形式的伤害或损失;
6、 下载文件中如有侵权或不适当内容,请与我们联系,我们立即纠正。