

作品包括:
Word版说明书1份,共16页,约4500字
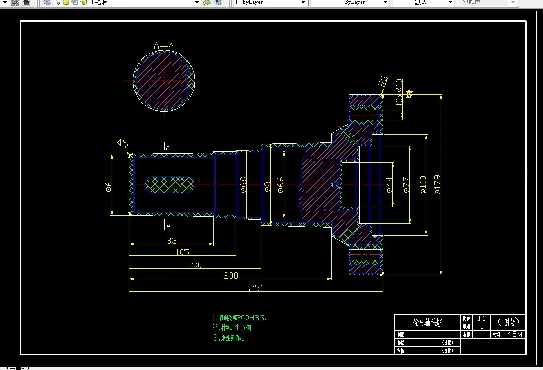
工序卡11张
工艺过程卡1张
CAD版本图纸,共4张
SW三维图一套

目 录
第1章 绪 论 1
1.1 课题设计目的 1
1.2 设计任务 2
第2章 输出轴零件的分析及毛坯的确定 3
2.1 车床输出轴的作用和工艺分析 3
2.1.1 零件的作用 3
2.1.2 零件的材料及其力学性能 3
2.1.3 零件的结构工艺分析 3
2.2 零件毛坯的确定 4
第3章 输出轴的加工工艺设计 5
3.1 定位基准的选择 5
3.2 加工方法的确定 5
3.3 制定工艺路线 5
3.3.1 工序的安排 5
3.3.2工序划分的确定 6
3.3.3热处理工序安排 7
3.3.4拟定加工工艺路线 7
3.3.5 加工设备和刀具的选择 7
3.3.6 加工余量的确定 8
第4章 专用夹具的设计 9
4.1 定位方案 9
4.2 分度设计 9
4.3 夹具操作的简要说明 9
结 论 11
参考文献 12
致 谢 13
附 录 14
温馨提示:
1、题目前面的备注【字母数字编号】为本站整理分类的编号,与课题内容无关,请选题时忽视;
2、若题目上备注三维,则表示文件里包含三维源文件,由于三维组成零件数量较多,为保证预览截图的简洁性,本站将三维文件夹进行了打包。三维及CAD预览截图,均为本站电脑打开软件进行截图的,保证能够打开,下载原件超高清,下载后解压即可;
3、本站所有资源如无特殊说明,都需要本地电脑安装Office2007。图纸软件为AutoCAD,PROE,UG,SolidWorks,CATIA等;
4、本站所有图文资料仅供用户学习参考,不作为任何商用或其他用途;
5、本站不保证下载资源的准确性、安全性和完整性, 不包修改,不支持退换,同时也不承担用户因使用这些下载资源对自己和他人造成任何形式的伤害或损失;
6、 下载文件中如有侵权或不适当内容,请与我们联系,我们立即纠正。