

作品包括:
Word版说明书1份,共21页,约4300字
工序卡7张
工艺过程卡1张
CAD版本图纸,共4张

摘 要
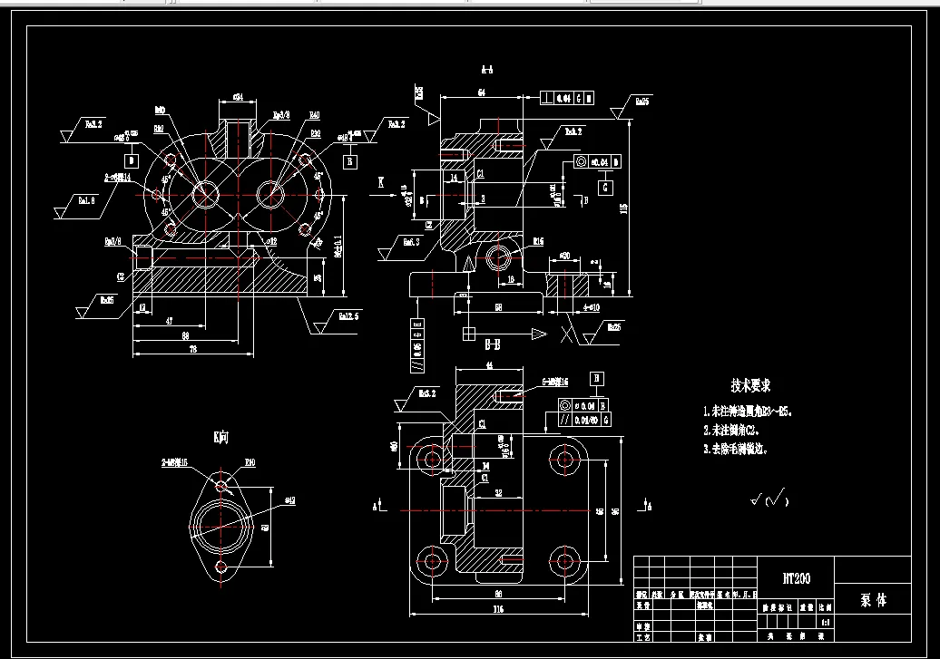
经过两年多对机械知识的学习,基于自己所学的机械设计、机械制图等课程,本人对支架加工工艺及加工过程中钻铣所用到的夹具进行设计,其中包括公差配合、切削机床等多方面相关知识。
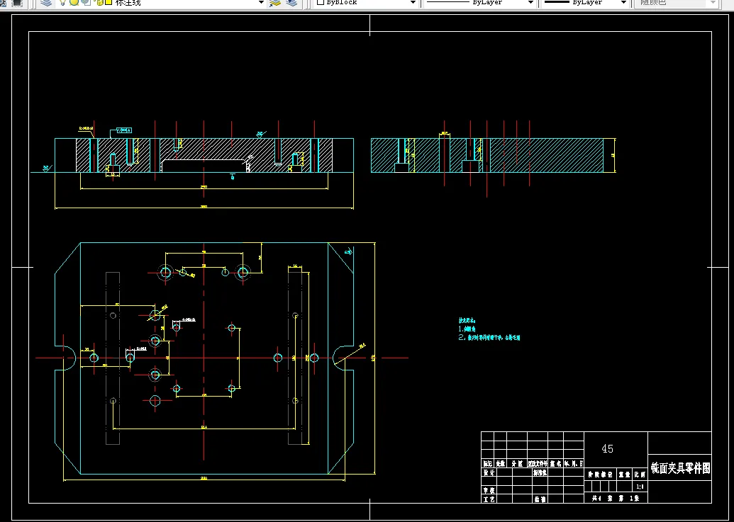
本设计主要对支架工艺规程铣底面和宽24键槽的夹具进行设计。本人将整个设计过程分为三部分:第一本分对零件加工工艺设计;第二部分对零件加工工序进行设计;第三部分是对专用夹具进行设计。在整个设计工程中,对零件分析并选定加工基准,了解其结构是第一步,然后设计出工艺路线。下一步,对零件各个尺寸进行精确计算,根据计算结果选择切削设备以及切削用量,同样根据计算出的尺寸选出夹具的组成部件,例如与机床连接部件等其他部件;通过计算误差分析设计的可行性。
关键词 : 切削用量; 夹紧; 误差
目 录
摘 要 I
ABSTRCT II
第1章 绪 论 1
第2章 零件的分析 2
2.1 零件的作用 2
2.2 零件的工艺分析 2
第3章 工艺规程设计 4
3.1 确定毛坯的制造形式 4
3.2 基面的选择的选择 4
3.3 精基准的选择 5
3.4 制定工艺路线 5
3.5 机械加工余量、工序尺寸、毛坯尺寸的确定 7
3.6 确定切削用量及基本工时 7
第4章 铣夹具设计 11
4.1 问题的提出 11
4.2 定位基准的选择 11
4.3 铣削力的计算 11
4.4 定位误差分析 11
4.5 夹具设计及操作的简要说明 12
结 论 15
参考文献 16
致 谢 17
温馨提示:
1、题目前面的备注【字母数字编号】为本站整理分类的编号,与课题内容无关,请选题时忽视;
2、若题目上备注三维,则表示文件里包含三维源文件,由于三维组成零件数量较多,为保证预览截图的简洁性,本站将三维文件夹进行了打包。三维及CAD预览截图,均为本站电脑打开软件进行截图的,保证能够打开,下载原件超高清,下载后解压即可;
3、本站所有资源如无特殊说明,都需要本地电脑安装Office2007。图纸软件为AutoCAD,PROE,UG,SolidWorks,CATIA等;
4、本站所有图文资料仅供用户学习参考,不作为任何商用或其他用途;
5、本站不保证下载资源的准确性、安全性和完整性, 不包修改,不支持退换,同时也不承担用户因使用这些下载资源对自己和他人造成任何形式的伤害或损失;
6、 下载文件中如有侵权或不适当内容,请与我们联系,我们立即纠正。