

作品包括:
Word版说明书一份,27页,约10000字
CAD版本图纸,共5张
proe图纸,4张
全套工序卡片(共14张)
爆炸图(动画)一套

摘 要
车类机床主要用于加工各种回转表面,如内外圆柱表面、圆锥表面、成型回转表面和回转体的端面等,有些车床还能加工螺纹面。由于多数机器零件具有回转表面,车床的通用性又较广,因此在机器制造厂中,车床的应用极为广泛,在金属切削床中所占的比重最大,约占机床总台数的20%~35%。
作为主要的车削加工机床,CA6140机床广泛的应用于机械加工行业中,适用于车削内外圆柱面,圆锥面及其它旋转面,车削各种公制、英制、模数和径节螺纹,并能进行钻孔,铰孔和拉油槽等工作。床身宽于一般车床,具有较高的刚度,导轨面经中频淬火,经久耐用。机床主轴孔径大,操作灵便集中,溜板设有快移机构。机床结构刚度与传动刚度均比较高,功率利用率也比较高,适于强力高速切削。
卧式机床的加工对象,主要是轴类零件和直径不太大的盘类零件,故采用卧式布局。其主要部件有:主轴箱、刀架、尾座、进给箱、溜板箱以及床身。本设计主要针对CA6140机床的主轴箱进行设计。机床主轴箱是一个比较复杂的传动部件。设计的内容主要包括确定机床的主要参数,拟定传动方案和传动系统图,计算和校核了主要零部件,并且利用专业制图软件进行了零件的设计和处理。
关键词:CA6140机床 零件 传动
目 录
第1章 机床的规格和用途…………………………………………………9
第2章 机床主要参数的确定………………………………………………10
第3章 零件的分析…………………………………………………………12
3.1 零件的作用………………………………………………………12
3.2 零件的工艺分析…………………………………………………12
3.3 确定生产类型…………………………………………………..12
3.4 确定毛坯…………………………………………………………13
第4章 工艺规程设计……………………………………………………..14
4.1 选择定位基准……………………………………………………14
4.2 制定工艺路线…………………………………………………..14
4.3 选择加工设备和工艺设备………………………………………14
4.4 机械加工余量、工序尺寸和公差的确定………………………15
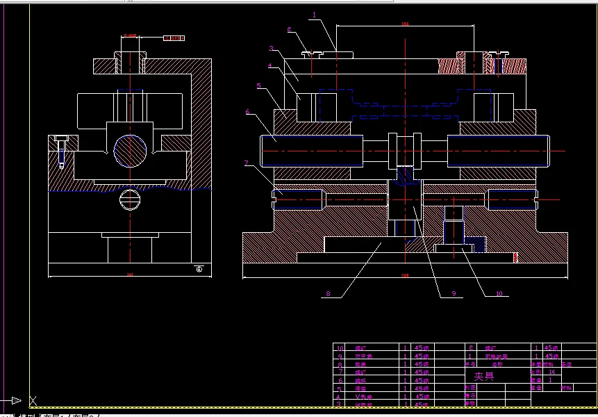
第5章 夹具设计………………………………………………………….21
5.1 CA6140拔叉夹具的工艺分析…………………………………..21
5.2 定位夹紧方案的确定…………………………………………..21
5.3 刀具的选择及切削用量的选择…………………………………21
5.4 夹具体设计……………………………………………………..23
5.5 问题的提出………………………………………………………27
第6章 经济性分析……………………………………………………….28
6.1箱体结合件加工工艺制定……………………………………..28
6.2 夹具定位加紧分析……………………………………………..28
6.3 组合机床应用分析………………………………………………29
结论…………………………………………………………………………30
致谢…………………………………………………………………………31
参考文献……………………………………………………………………32
温馨提示:
1、题目前面的备注【字母数字编号】为本站整理分类的编号,与课题内容无关,请选题时忽视;
2、若题目上备注三维,则表示文件里包含三维源文件,由于三维组成零件数量较多,为保证预览截图的简洁性,本站将三维文件夹进行了打包。三维及CAD预览截图,均为本站电脑打开软件进行截图的,保证能够打开,下载原件超高清,下载后解压即可;
3、本站所有资源如无特殊说明,都需要本地电脑安装Office2007。图纸软件为AutoCAD,PROE,UG,SolidWorks,CATIA等;
4、本站所有图文资料仅供用户学习参考,不作为任何商用或其他用途;
5、本站不保证下载资源的准确性、安全性和完整性, 不包修改,不支持退换,同时也不承担用户因使用这些下载资源对自己和他人造成任何形式的伤害或损失;
6、 下载文件中如有侵权或不适当内容,请与我们联系,我们立即纠正。