

作品包括:
Word版设计说明书1份,共15页,约6000字
CAD版本图纸,共4张

摘 要
本课程设计内容主要包括定位小轴的加工工艺过程设计和钻18°Φ8mm斜孔专用夹具的设计。包括零件图、毛坯图、夹具装配图和夹具体零件图的绘制,机械加工工艺过程卡片和机械加工工序卡片的编写。本课程设计是重要的实践教学环节之一。是在完成生产实习,学完机械制造技术基础和其它专业课程之后进行的。通过该课程设计,将所学理论与生产实践相结合, 锻炼了自己分析问题、解决问题的能力,在这个过程中我独立地分析和解决了零件机械制造的工艺问题,设计了机床专用夹具这一典型的工艺装备,提高了结构设计能力,为今后的毕业设计及对自己未来将从事的工作进行了一次适应性训练,从而打下了良好的基础。
目 录
1.零件分析…………………………………………………..…1
1.1零件的工艺分析……………………… ……………...…1
1.1.1以?30mm右端面为粗基准加工表面……….……1
1.1.2以?60mm左端面为基准加工表面…………….…1
1.1.3以Φ30mm中心线为基准加工表面…………...…1
1.2零件加工的主要问题和工艺过程设计分析……..….…1
2.工艺分析…………………………………………………..…1
2.1确定毛坯的制造形式………………………………….…1
2.2基面的选择…………………………………..……..….…1
2.2.1 粗基准选择……………………………………….…2
2.2.2 精基准的选择……………………………..………2
2.3制定工艺路线………………………………………….…2
2.3.1 工序的集中与分散…………………………………2
2.3.2 工序顺序的安排……………………………………2
2.4机械加工余量、工序尺寸及毛坯尺寸的确定……….3
2.4.1车Φ60mm外圆面………………..…………………3
2.4.2车?30 mm,?60 mm端面…………………..……4
2.5 时间定额计算及生产安排………………………..……4
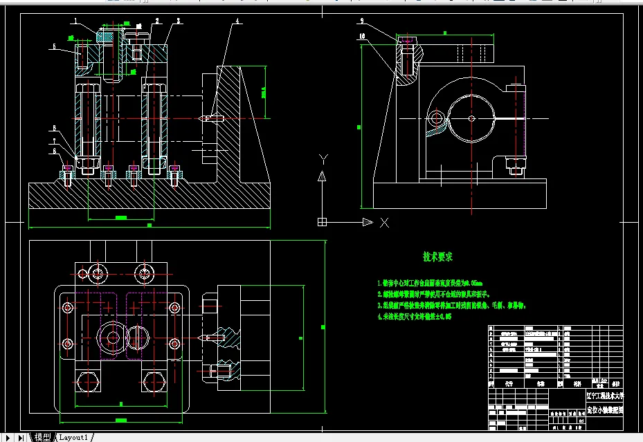
3.加工圆柱表面Φ8mm孔专用夹具设计………………..….5
3.1定位夹紧设计……………….. ………………..…………5
3.2钻模板装置的设………………..…………………..….……6
3.3夹具精度分析…………………………………………6
3.4 夹具体………………………………………………..7
3.4.1夹具体的设计….…………..………………..………..….7
3.5夹具操作的简要说明……………………………..…8
4.体会……………………………………………………………8
5.参考文献……………………………………………….…... 10
温馨提示:
1、题目前面的备注【字母数字编号】为本站整理分类的编号,与课题内容无关,请选题时忽视;
2、若题目上备注三维,则表示文件里包含三维源文件,由于三维组成零件数量较多,为保证预览截图的简洁性,本站将三维文件夹进行了打包。三维及CAD预览截图,均为本站电脑打开软件进行截图的,保证能够打开,下载原件超高清,下载后解压即可;
3、本站所有资源如无特殊说明,都需要本地电脑安装Office2007。图纸软件为AutoCAD,PROE,UG,SolidWorks,CATIA等;
4、本站所有图文资料仅供用户学习参考,不作为任何商用或其他用途;
5、本站不保证下载资源的准确性、安全性和完整性, 不包修改,不支持退换,同时也不承担用户因使用这些下载资源对自己和他人造成任何形式的伤害或损失;
6、 下载文件中如有侵权或不适当内容,请与我们联系,我们立即纠正。