

作品包括:
说明书1份,共34页,约12000字左右
CAD版本本图纸,共6张
Proe三维图一份

目 录
摘 要 II
ABSTRACT III
第1章 绪论 2
1.1研究课题的意义及现状 2
1.2课题主要研究内容 2
1.3研究方法和手段 3
1.4研究目标 3
1.5方案可行性分析 3
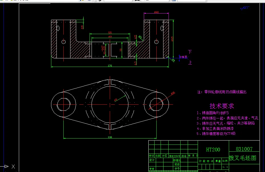
第2章 拨叉831007的分析 4
2.1分析拨叉831007图 4
2.2确定生产类型 5
2.3确定毛坯 5
第3章 拨叉831007零件的机械加工工艺过程设计 7
3.1拨叉831007零件基准的选择 7
3.1.1拨叉831007粗基准的选择 7
3.1.2拨叉831007精基准的选择 7
3.2加工主要工序安排 7
3.3选择加工设备与工艺设备 9
3.4确定工序尺寸 10
3.5切削用量 12
3.6时间定额计算及生产安排 14
第4章 CA6140车床拨叉831007 加工工艺及铣断4MM槽夹具设计 19
4.1 基本夹具设计原理 19
4.2定位基准的选择 19
4.3 切削力及夹紧分析计算 20
4.4 误差分析与计算 21
4.5 零、部件的设计与选用 22
4.5.1定位销选用 22
4.5.2夹紧装置的选用 22
4.5.3 定向键与对刀装置设计 23
4.6 确定831007夹具的夹具体结构和总体结构 25
4.7 831007夹具的夹具设计及操作的简要说明 26
总 结 28
参考文献 29
致 谢 30
温馨提示:
1、题目前面的备注【字母数字编号】为本站整理分类的编号,与课题内容无关,请选题时忽视;
2、若题目上备注三维,则表示文件里包含三维源文件,由于三维组成零件数量较多,为保证预览截图的简洁性,本站将三维文件夹进行了打包。三维及CAD预览截图,均为本站电脑打开软件进行截图的,保证能够打开,下载原件超高清,下载后解压即可;
3、本站所有资源如无特殊说明,都需要本地电脑安装Office2007。图纸软件为AutoCAD,PROE,UG,SolidWorks,CATIA等;
4、本站所有图文资料仅供用户学习参考,不作为任何商用或其他用途;
5、本站不保证下载资源的准确性、安全性和完整性, 不包修改,不支持退换,同时也不承担用户因使用这些下载资源对自己和他人造成任何形式的伤害或损失;
6、 下载文件中如有侵权或不适当内容,请与我们联系,我们立即纠正。