

作品包括:
Word版说明书一份,共16页,约6100字
CAD版本图纸,共4张
摘 要
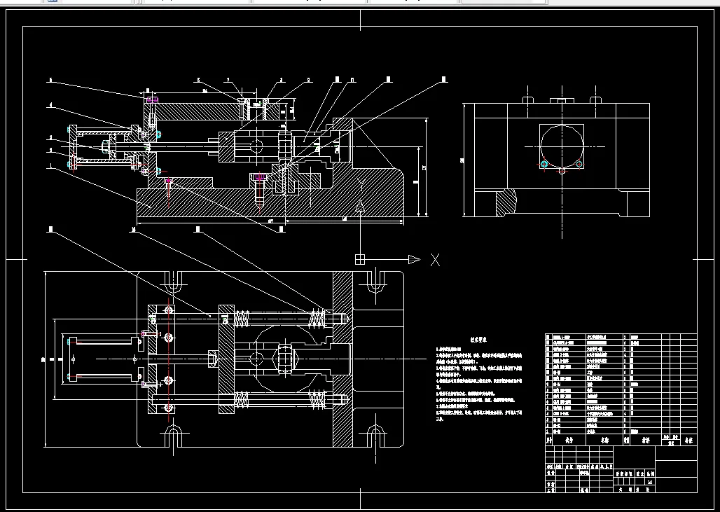
在学完机械制造技术基础和液压传动等专业技术课之后,我们开始分析设计轴套的机械加工工艺规程及加工孔的夹具设
计。我的课程设计任务是安排一个轴套的机械加工工艺规程和设计加工Φ40H7孔的夹具,并绘制出调速杠杆零件图、毛
坯图、夹具装配图,填写工艺卡片,编制课程设计说明书。
这次设计使我们能综合运用机械制造技术基础中的基本理论,并结合生产实习中学到的实践知识,独立地分析和解
决了零件机械制造工艺问题,设计机床专用夹具这一典型的工艺装备,提高结构设计能力,为今后的毕业设计及未来从
事的工作打下了良好的基础。因此,它在我们四年的大学生活中占有重要的地位。
目录
二、原始资料 3
(1) 被加工零件的零件图 1张 3
(2) 生产类型:中批或大批大量生产 3
三、上交材料 3
四、指导教师评语 3
二、 零件工艺性分析 6
a) 轴套的工艺性分析和生产类型的确定 6
i.轴套的用途 6
ii. 轴套的技术要求 6
iii. 审查轴套的工艺性 7
iv. 确定轴套的生产类型 7
b) 确定毛坯、绘制毛坯简图 8
i.选择毛坯 8
ii. 确定毛坯的尺寸公差和机械加工余量 8
iii. 设计及绘制毛坯简图 8
三、 机械加工工艺规程设计 10
a) 精准的选择 10
i.精基准的选择 10
ii. 粗基准的选择 10
b) 表面加工方法的确定 10
c) 制定工艺路线 11
d) 机床设备及工艺装备的选用 12
i.机床设备的选用 12
ii. 工艺装备的选用 12
iii. Φ40孔的加工余量和工序 12
iv. 切削用量、时间定额的计算 12
一、切削用量的计算 12
四、 机床夹具设计 13
a) 定位方案 13
b) 夹紧机构 13
c) 导向装置 14
d) 夹具与机床连接元件 14
e) 夹具体 14
f) 方案综合评价与结论 14
五、 设计体会 15
六、 参考文献 15
温馨提示:
1、题目前面的备注【字母数字编号】为本站整理分类的编号,与课题内容无关,请选题时忽视;
2、若题目上备注三维,则表示文件里包含三维源文件,由于三维组成零件数量较多,为保证预览截图的简洁性,本站将三维文件夹进行了打包。三维及CAD预览截图,均为本站电脑打开软件进行截图的,保证能够打开,下载原件超高清,下载后解压即可;
3、本站所有资源如无特殊说明,都需要本地电脑安装Office2007。图纸软件为AutoCAD,PROE,UG,SolidWorks,CATIA等;
4、本站所有图文资料仅供用户学习参考,不作为任何商用或其他用途;
5、本站不保证下载资源的准确性、安全性和完整性, 不包修改,不支持退换,同时也不承担用户因使用这些下载资源对自己和他人造成任何形式的伤害或损失;
6、 下载文件中如有侵权或不适当内容,请与我们联系,我们立即纠正。