

作品包括:
Word版说明书1份,共28页,约9900字
工序卡9张
工艺过程卡1张
CAD版本图纸,共4张

目录
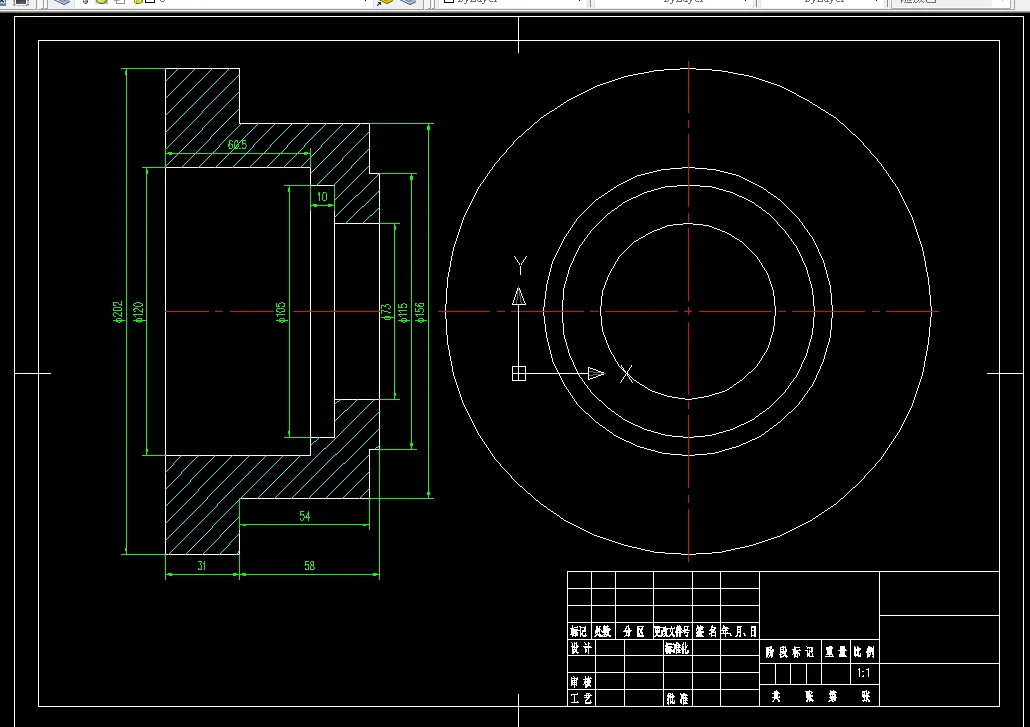
第1章 零件的分析 1
1.1 零件的作用 1
1.2 零件的工艺分析 1
第2章 工艺规程设计 2
2.1 确定毛坯制造方法、初步确定毛坯形状 2
2.2 基准的选择 2
2.2.1 粗基准的选择 2
2.2.2 精基准的选择 2
2.3 工件表面加工方法的选择 2
2.4 制定工艺路线.................................................................................3
2.4.1 工艺路线法案一......................................................................3
2.4.2 工艺路线法案二......................................................................4
2.4.3 工艺法案的比较与分析..........................................................4
2.5 机械加工余量、工序尺寸及毛坯尺寸的确定.............................4
2.6 确定切削用量及基本工时.............................................................6
2.6.1 粗车196mm的左端面..........................................................7
2.6.2 粗车196mm的外圆............................................................8
2.6.3 粗车150k6mm的外圆........................................................9
2.6.4 粗车110mm的外圆............................................................10
2.6.5 粗车78mm的外圆..............................................................11
2.6.6 粗车196mm的右端面........................................................12
2.6.7 粗车150mm外圆右端面....................................................13
2.6.8 粗车110mm柱体右端面....................................................13
2.6.9 粗车78mm柱体右端面......................................................14
2.6.10 半精车196mm的外圆......................................................15
2.6.11 半精车150k6mm的外圆..................................................16
2.6.12 半精车110mm的外圆......................................................17
2.6.13 半精车196mm凸台右端面..............................................18
2.6.14 半精车150k6mm凸台右端面..........................................18
2.6.15 粗铣R25的半圆形槽..........................................................18
2.6.16 钻18,11mm的阶梯孔.................................................18
2.6.17 钻6×M6的螺纹孔.............................................................18
2.6.18 钻内孔2×5mm................................................................18
2.6.19 钻7斜孔............................................................................19
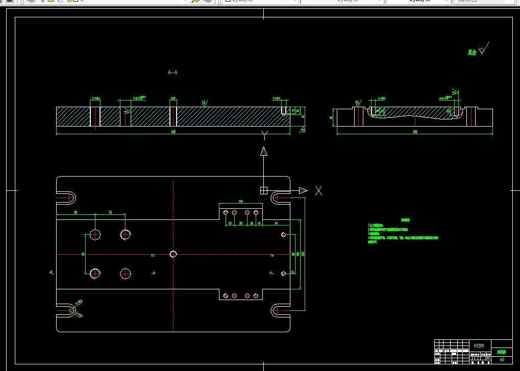
第3章 夹具设计 20
3.1 夹具设计任务 20
3.2 确定夹具的结构方案 20
3.2.1 确定定位元件 20
3.2.2 确定导向装置 20
3.3 切削力及夹紧力计算 22
第4章 总结 23
参考文献 24
致谢 25
3.2.6 夹具设计及操作简要说明 13
总 结 14
温馨提示:
1、题目前面的备注【字母数字编号】为本站整理分类的编号,与课题内容无关,请选题时忽视;
2、若题目上备注三维,则表示文件里包含三维源文件,由于三维组成零件数量较多,为保证预览截图的简洁性,本站将三维文件夹进行了打包。三维及CAD预览截图,均为本站电脑打开软件进行截图的,保证能够打开,下载原件超高清,下载后解压即可;
3、本站所有资源如无特殊说明,都需要本地电脑安装Office2007。图纸软件为AutoCAD,PROE,UG,SolidWorks,CATIA等;
4、本站所有图文资料仅供用户学习参考,不作为任何商用或其他用途;
5、本站不保证下载资源的准确性、安全性和完整性, 不包修改,不支持退换,同时也不承担用户因使用这些下载资源对自己和他人造成任何形式的伤害或损失;
6、 下载文件中如有侵权或不适当内容,请与我们联系,我们立即纠正。