

作品包括:
Word版说明书1份,共33页,约14000字
工序卡13张
工艺过程卡1张
CAD版本图纸,共7张
Proe三维图1套

摘 要
机械理论研究、结构设计、制造应用等是近代社会发展起来的一门先进的学科,对于支撑国家经济的发展具有不可估量的作用,值得深究。
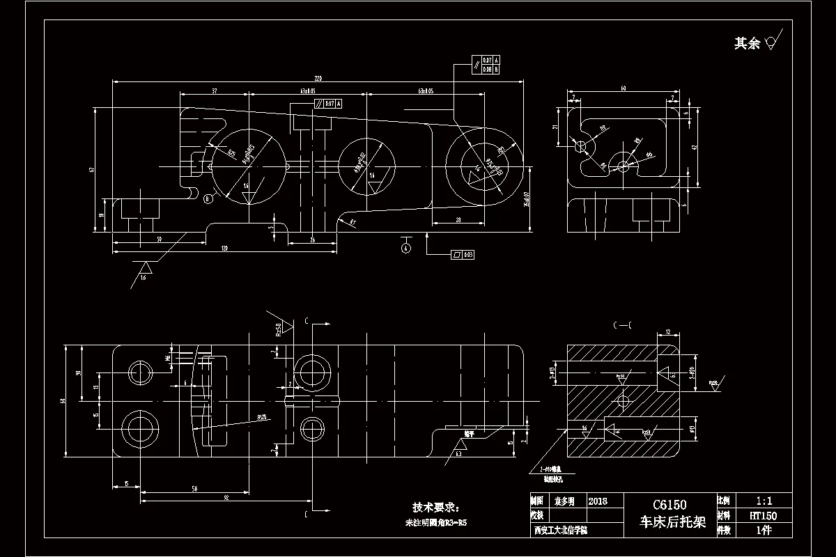
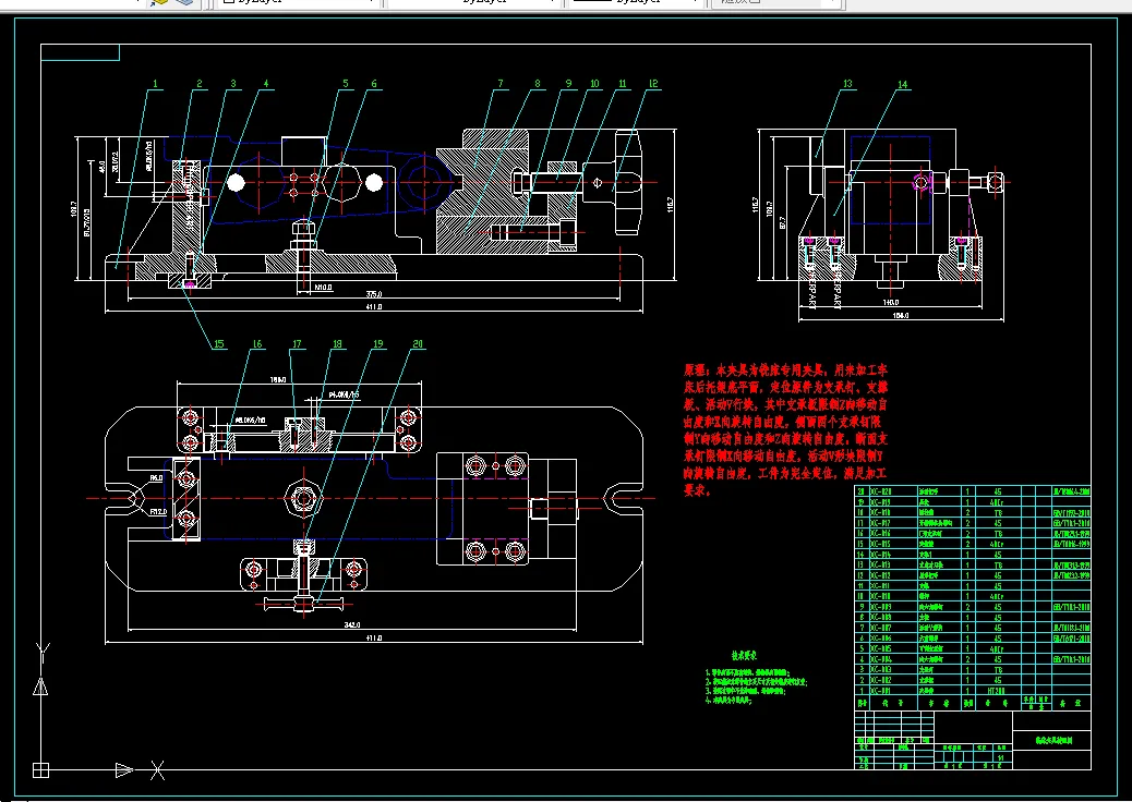
本次毕业设计课题是C6150车床后托架零件在加工过程中涉及到的加工工艺路线的制定,包括完整的加工方法、加工设备选择、所用刀具的选择、各道工序的加工参数选择等等,另外设计零件C6150车床后托架夹具,夹具设计需要绘制完整的夹具装配图、各零件图,以及夹具三维造型,另外说明书中需要体现改夹具的使用方法、夹紧力计算、定位误差等计算,采用所设计的夹具加工改零件需要确保零件的加工精度和加工的操作简易性。本次的设计内容主要考察平时我们课堂所学的机械相关知识,但是更为重要的是需要我们具备一定的实践操作能力,考察知识比较全面而且实用,需要我们深入分析研究,并且将理论与实际相结合来完成本次设计。
本次课题所设计的夹具为C6150车床后托架零件镗床和铣床夹具的分析设计,主要是用来加工零件上底部平面和三个内孔所用,分析本次课题设计任务书可以知道,该零件为大批量生产,要求加工效率要高,所以设计的夹具为该零件专用夹具,属于非标准设计,设计过程中需要考虑的因素较多。随着机械加工技术的不断研究,很多新式加工方法、新式加工设备等不断被发明创造出来,国家越来越意识到机械加工技术的研究对国民经济发展的支撑作用,因此在改领域也是不断投入,夹具的设计已经形成一门单独的学科在研究,因为不管怎么说加工的质量和效率是第一追求要素,所以能否设计出合理、经济、简便的机加工夹具就显得尤为重要。
关键词:工艺规程;定位;机械加工;夹具设计
目 录
摘 要 II
ABSTRACT II
第一章 绪论 1
1.1 机械制造的重要性 1
1.2 夹具的发展历程 2
1.3课题的背景 2
1.4夹具的介绍 2
1.5课题的研究方法 3
1.6小结 3
第二章 零件分析 1
2.1零件详细分析图 1
2.2零件的作用 2
2.3零件加工表面的详细技术分析 2
2.4把铸件的余量跟形状确定 2
2.5绘制毛坯图 3
第三章 机械加工的工艺流程设计 4
3.1加工基准的选择 4
3.2 拟订的工艺过程 4
第四章 加工设备跟工艺装备的选取 6
4.1依照不同的工序来选择不同的机床 6
4.2如何选取刀具,夹具以及量具 6
4.3 切削用量的计算和确定 7
第五章 专用夹具的内部结构设计 16
5.1确定出设计的任务跟收集并分析原始的资料 16
5.2夹具内部结构跟类型 18
5.3工件定位基准的选择和自由度分析 19
5.4夹具的内部结构 19
5.5夹具的精度进行分析 20
5.6配合偏差的计算 21
致 谢 22
参 考 文 献 23
温馨提示:
1、题目前面的备注【字母数字编号】为本站整理分类的编号,与课题内容无关,请选题时忽视;
2、若题目上备注三维,则表示文件里包含三维源文件,由于三维组成零件数量较多,为保证预览截图的简洁性,本站将三维文件夹进行了打包。三维及CAD预览截图,均为本站电脑打开软件进行截图的,保证能够打开,下载原件超高清,下载后解压即可;
3、本站所有资源如无特殊说明,都需要本地电脑安装Office2007。图纸软件为AutoCAD,PROE,UG,SolidWorks,CATIA等;
4、本站所有图文资料仅供用户学习参考,不作为任何商用或其他用途;
5、本站不保证下载资源的准确性、安全性和完整性, 不包修改,不支持退换,同时也不承担用户因使用这些下载资源对自己和他人造成任何形式的伤害或损失;
6、 下载文件中如有侵权或不适当内容,请与我们联系,我们立即纠正。