

作品包括:
Word版说明书1份,共38页,约12000字
CAD版本图纸,共4张
SW三维图一份

摘 要
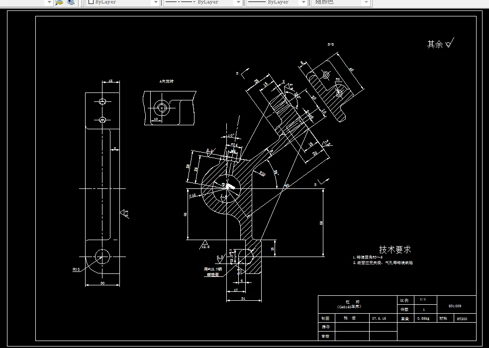
本设计是CA6140杠杆零件的加工工艺规程及一些工序的专用夹具设计。CA6140杠杆零件的主要加工表面是平面及孔。一般来说,保证平面的加工精度要比保证孔的加工精度容易。因此,本设计遵循先面后孔的原则。并将孔与平面的加工明确划分成粗加工和精加工阶段以保证孔的加工精度。基准的选择以杠杆 外圆面作为粗基准,以 孔及其下表面作为精基准。先将底面加工出来,然后作为定位基准,在以底面作为精基准加工孔。整个加工过程选用组合机床。在夹具方面选用专用夹具。考虑到零件的结构尺寸简单,夹紧方式多采用手动夹紧,夹紧简单,机构设计简单,且能满足设计要求。
关键词 杠杆零件,加工工艺,夹具,定位,夹紧
摘 要 I
ABSTRACT II
1 绪论 1
1.1课题背景及发展趋势 1
1.2 夹具的基本结构及夹具设计的内容 1
2 杠杆加工工艺规程设计 3
2.1零件的分析 3
2.1.1零件的作用 3
2.1.2零件的工艺分析 3
2.2杠杆加工的主要问题和工艺过程设计所应采取的相应措施 4
2.2.1确定毛坯的制造形式 4
2.2.2基面的选择 4
2.2.3确定工艺路线 4
2.2.4机械加工余量、工序尺寸及毛坯尺寸的确定 6
2.2.5确定切削用量 6
2.2.6确定基本工时 18
2.3小结 23
3 专用夹具设计 24
3.2粗精铣宽度为30mm的下平台夹具设计 24
3.2.1定位基准的选择 24
3.2.2定位元件的设计 24
3.2.3定位误差分析 25
3.2.4铣削力与夹紧力计算 25
3.2.5夹具体槽形与对刀装置设计 26
3.2.6夹紧装置及夹具体设计 28
3.2.7夹具设计及操作的简要说明 29
3.4小结 29
4 总结 31
参考文献 32
致 谢 33
温馨提示:
1、题目前面的备注【字母数字编号】为本站整理分类的编号,与课题内容无关,请选题时忽视;
2、若题目上备注三维,则表示文件里包含三维源文件,由于三维组成零件数量较多,为保证预览截图的简洁性,本站将三维文件夹进行了打包。三维及CAD预览截图,均为本站电脑打开软件进行截图的,保证能够打开,下载原件超高清,下载后解压即可;
3、本站所有资源如无特殊说明,都需要本地电脑安装Office2007。图纸软件为AutoCAD,PROE,UG,SolidWorks,CATIA等;
4、本站所有图文资料仅供用户学习参考,不作为任何商用或其他用途;
5、本站不保证下载资源的准确性、安全性和完整性, 不包修改,不支持退换,同时也不承担用户因使用这些下载资源对自己和他人造成任何形式的伤害或损失;
6、 下载文件中如有侵权或不适当内容,请与我们联系,我们立即纠正。