

作品包括:
Word版设计说明书1份
工序卡一套
工艺过程卡1张
CAD版本图纸,共5张
摘要
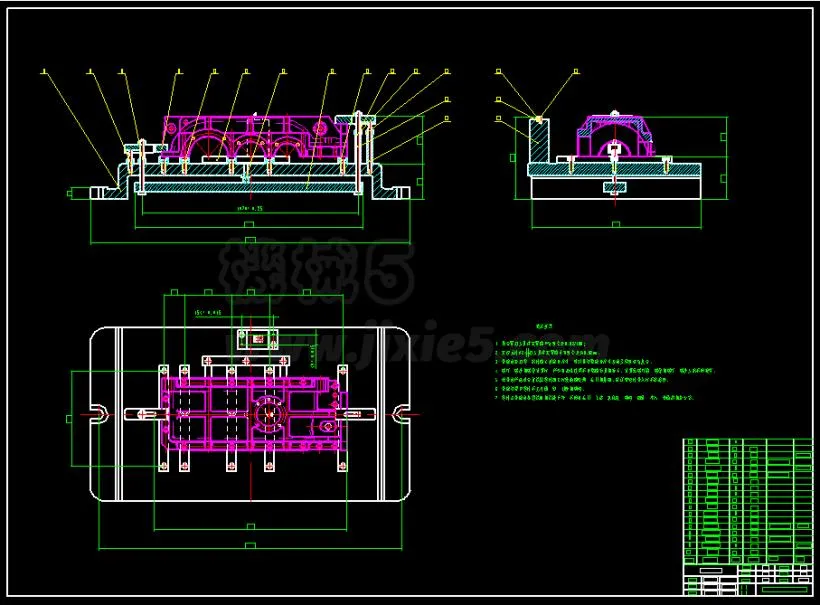
夹具一直以来在制造业中被广泛应用,用于在机械制造过程中固定加工对象,使之占有正确的位置,以接受施工或检测的装置,是十分重要的工艺装备之一。夹具的质量、工作效率,及夹具使用的可靠性,都对产品的加工质量及生产效率有着决定性的影响。
变速箱盖的加工主要是加工表面、轴孔和各表面其他孔。此次设计包含变速箱盖从铸造到加工成型的整个工艺规程,涉及到加工顺序、表面粗糙度等问题,并且设计了铣平面和侧面钻孔两个工位的夹具。
关键词:表面粗糙度;变速箱盖;工艺规程;夹具;
目录
第一章前言- 4-
第二章零件的分析- 5-
2.1零件的作用- 5-
2.2零件的工艺分析- 5-
2.2.1平面加工- 5-
2.2.2孔的加工- 5-
第三章拟定上盖加工工艺路线- 7-
3.1确定毛坯的制造形式- 7-
3.2基准的选择- 7-
3.2.1粗基准的选择- 8-
3.2.2精基准的选择- 8-
3.3制定工艺路线- 8-
3.3.1主要表面与次要表面的加工顺序安排原则- 9-
3.3.2热处理工序的安排- 9-
3.3.3辅助工序的安排- 9-
3.3.4检验工序的安排- 9-
3.3.5工艺路线的拟定- 10-
第四章加工余量确定及工序尺寸计算- 14-
4.1毛坯余量- 14-
4.1.1公差等级的确定- 14-
4.1.2确定机械加工余量- 14-
4.1.3确定毛坯尺寸- 14-
4.2箱体各平面加工工序余量- 15-
4.3组装孔14-φ18加工工序余量- 15-
4.4各通孔的加工工序余量- 15-
4.5切削用量及机械加工时间的计算- 15-
4.5.1粗铣底面及精铣底面- 15-
4.5.2粗铣前后面及半精铣前后面- 17-
4.5.3粗铣右端面及半精铣右端面- 18-
4.5.4粗镗、半精镗、精镗轴孔- 19-
第五章铣上箱盖底面夹具的设计- 23-
5.1夹具设计要求- 23-
5.2确立方案- 24-
5.3机床选择- 24-
5.4刀具选择- 24-
5.5切削力的计算- 25-
5.6机动时间的计算及工序时间定额的确定- 25-
5.7计算夹紧力- 26-
结论- 29-
参考文献- 30-
温馨提示:
1、题目前面的备注【字母数字编号】为本站整理分类的编号,与课题内容无关,请选题时忽视;
2、若题目上备注三维,则表示文件里包含三维源文件,由于三维组成零件数量较多,为保证预览截图的简洁性,本站将三维文件夹进行了打包。三维及CAD预览截图,均为本站电脑打开软件进行截图的,保证能够打开,下载原件超高清,下载后解压即可;
3、本站所有资源如无特殊说明,都需要本地电脑安装Office2007。图纸软件为AutoCAD,PROE,UG,SolidWorks,CATIA等;
4、本站所有图文资料仅供用户学习参考,不作为任何商用或其他用途;
5、本站不保证下载资源的准确性、安全性和完整性, 不包修改,不支持退换,同时也不承担用户因使用这些下载资源对自己和他人造成任何形式的伤害或损失;
6、 下载文件中如有侵权或不适当内容,请与我们联系,我们立即纠正。