

作品包括:
说明书1份,共31页,约8600字左右
CAD版本本图纸,共4张
摘 要
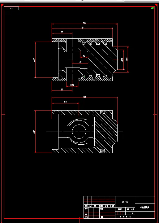
本次设计的主要内容是铝活塞机械加工工艺及夹具设计,铝活塞作为柴油发动机里面的主要零件之一,其主要加工表面及控制位置为 外圆和 内孔。由零件要求分析可知,保证 外圆和 内孔尺寸的同时应该尽量保证其垂直度,这对于后工序装配和总成使用上来说都有重要影响。所以,工序安排时,采取以 大外圆粗定位夹紧加工后,对 外圆进行车削加工同时成型。因其粗糙度为Ra1.6,可通过粗车、精车满足。对于钻、铰削 内孔时,同样以铝活塞的 外圆定位,控制其自由度,以达到加工出来的产品满足要求并且一致性好的目的。
本文的研究重点在于通过对铝活塞的工艺性和力学性能分析,对加工工艺进行合理分析,选择确定合理的毛坯、加工方式、设计高效、省力的夹具以及设计出简单、实用的数控加工程序,通过实践验证,最终加工出合格的铝活塞零件。
关键词:铝活塞,加工余量,工艺,夹具
目 录
摘 要 I
Abstract II
1 绪论 1
2 零件的分析 2
2.1 零件的作用 3
2.2 零件的工艺分析 5
3 确定毛坯,绘制毛坯图、零件图 8
3.1确定毛坯的制造形式及材料 9
3.2机械加工余量、工序尺寸及毛坯尺寸的确定 11
4 工艺规程设计 12
4.1定位基准的选择 12
4.2制定工艺路线 12
4.3选择加工设备及刀、夹、量具 12
4.4 确定切削用量及基本工时 13
4.4.1粗车外圆 14
4.4.2车端面 14
4.4.3车止口、打中心孔 15
4.4.4粗镗销孔 15
4.4.5半精车外圆 16
4.4.6钻斜孔 17
4.4.7钻直油孔 17
4.4.8切油环槽 18
4.4.9车油环槽环岸及其倒角 18
4.4.10切梯形槽 18
4.4.11半精车头部外圆 19
4.4.12切镶圈槽Ⅱ 19
4.4.13切镶圈槽Ⅰ 20
4.4.14切镶圈槽槽底 20
4.4.15精车外圆 20
4.4.16粗车燃烧室 21
4.4.17粗车燃烧室圆角 21
4.4.18精车燃烧室 21
4.4.19铣气门内槽 22
4.4.20铣气门外槽 22
4.4.21精镗销孔 23
4.4.22车销孔外端挡圈及倒角 23
4.4.23细镗销孔 24
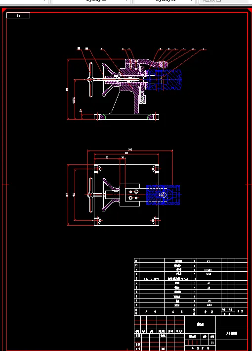
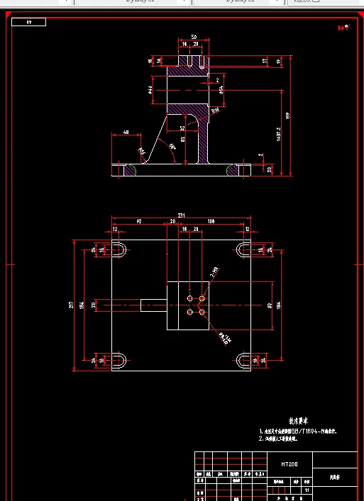
5 钻孔夹具的设计 25
5.1定位基准的选择 25
5.2定位元件的设计 26
5.3 切削力及夹紧力的计算 26
5.4 钻、衬套及钻模板的设计 27
5.5 夹具定位误差分析 28
结 论 29
致 谢 30
参考文献 31
温馨提示:
1、题目前面的备注【字母数字编号】为本站整理分类的编号,与课题内容无关,请选题时忽视;
2、若题目上备注三维,则表示文件里包含三维源文件,由于三维组成零件数量较多,为保证预览截图的简洁性,本站将三维文件夹进行了打包。三维及CAD预览截图,均为本站电脑打开软件进行截图的,保证能够打开,下载原件超高清,下载后解压即可;
3、本站所有资源如无特殊说明,都需要本地电脑安装Office2007。图纸软件为AutoCAD,PROE,UG,SolidWorks,CATIA等;
4、本站所有图文资料仅供用户学习参考,不作为任何商用或其他用途;
5、本站不保证下载资源的准确性、安全性和完整性, 不包修改,不支持退换,同时也不承担用户因使用这些下载资源对自己和他人造成任何形式的伤害或损失;
6、 下载文件中如有侵权或不适当内容,请与我们联系,我们立即纠正。