

作品包括:
说明书1份,共53页,约15000字左右
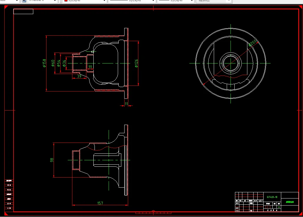
CAD版本本图纸,共6张
摘 要
随着社会的发展,汽车在生产和生活中的越来越广泛,差速器是汽车中的重要部件,其壳体的结构及加工精度直接影响差速器的正常工作,因此研究差速器的加工方法和工艺的编制是十分必要和有意义的。本次设计主要内容有:差速器的工作原理结构分析,差速器壳体的工艺编制,夹具的设计及加工中对定位基准的选择,工序和工装设计中切削用量,夹紧力的计算等。机床夹具的种类很多,其中,使用范围最广的通用夹具,规格尺寸多已标准化,并且有专业的工厂进行生产。而广泛用于批量生产,专为某工件加工工序服务的专用夹具,则需要各制造厂根据工件加工工艺自行设计制造。本设计的主要内容是设计镗孔夹具和钻孔夹具。
关键词:差速器,壳体,工艺规程,夹具设计
目 录
摘 要 1
Abstract II
目 录 III
第1章 绪论 1
1.1 课题的背景及意义 1
1.2 差速器的主要分类 1
1.2.1 开式差速器 1
1.2.2 限滑差速器 2
1.3 差速器结构 2
1.3论文主要内容 3
第2章 零件的分析 4
2.1 零件的作用 4
2.2 零件的工艺分析 4
第3章 工艺规程设计 7
3.1 基准面的选择 7
3.1.1 粗基准的选择 7
3.1.2 精基准的选择 7
3.2 毛坯的制造形式 7
3.3 制订工艺路线 7
3.3.1. 工艺线路方案一 8
3.3.2 工艺路线方案二 8
3.3.3. 工艺方案的比较与分析 9
3.4 机械加工余量、工序尺寸及毛坯尺寸的确定 9
3.4.1 外圆表面 9
3.5 内圆表面 11
3.4.3 端面 13
3.4.4 凸台 13
3.4.5 孔类 13
第4章 确定差速器切削用量及基本工时 15
4.1 工序1 铣φ200外圆右端面(大头)。 15
4.2 工序2 铣φ50外圆左端面(小头) 16
4.3 工序3 粗、半精车φ200、φ154、φ150、φ50外圆 17
4.4工序4钻孔φ40底孔φ39.5,精车φ200、φ154、φ150、φ50外圆,精车最大轮廓φ200前端面 23
4.5 工序5 粗镗φ50、φ122、φ130孔 28
4.6 工序6 精镗φ40、φ50、φ122、φ130孔,以端面和φ154外圆定位,选用T740K精镗床 33
4.7工序7 铣两凸台上平面 37
4.8 工序8 钻φ4孔,选用Z525立式钻床及专用夹具。 38
4.9 工序9 钻、铰两组φ8、φ22孔,φ8孔倒角。 39
4.10 工序10 钻孔12×Φ12.5 42
则本工序总切削工时 43
第5章 钻孔夹具设计 44
5.1问题的提出 44
5.2定位基准的选择 44
5.3 定位元件与夹紧元件的选择 44
5.4切削力与夹紧力的计算 45
5.5钻套、衬套、钻模板及夹具体设计 45
5.6夹具精度分析 48
5.7本章小结 49
总 结 51
参 考 文 献 52
致谢 53
温馨提示:
1、题目前面的备注【字母数字编号】为本站整理分类的编号,与课题内容无关,请选题时忽视;
2、若题目上备注三维,则表示文件里包含三维源文件,由于三维组成零件数量较多,为保证预览截图的简洁性,本站将三维文件夹进行了打包。三维及CAD预览截图,均为本站电脑打开软件进行截图的,保证能够打开,下载原件超高清,下载后解压即可;
3、本站所有资源如无特殊说明,都需要本地电脑安装Office2007。图纸软件为AutoCAD,PROE,UG,SolidWorks,CATIA等;
4、本站所有图文资料仅供用户学习参考,不作为任何商用或其他用途;
5、本站不保证下载资源的准确性、安全性和完整性, 不包修改,不支持退换,同时也不承担用户因使用这些下载资源对自己和他人造成任何形式的伤害或损失;
6、 下载文件中如有侵权或不适当内容,请与我们联系,我们立即纠正。