

作品包括:
Word版说明书1份,共35页,约10000字
CAD版本图纸,共5张
SW三维图一份
UG三维图一份
摘 要
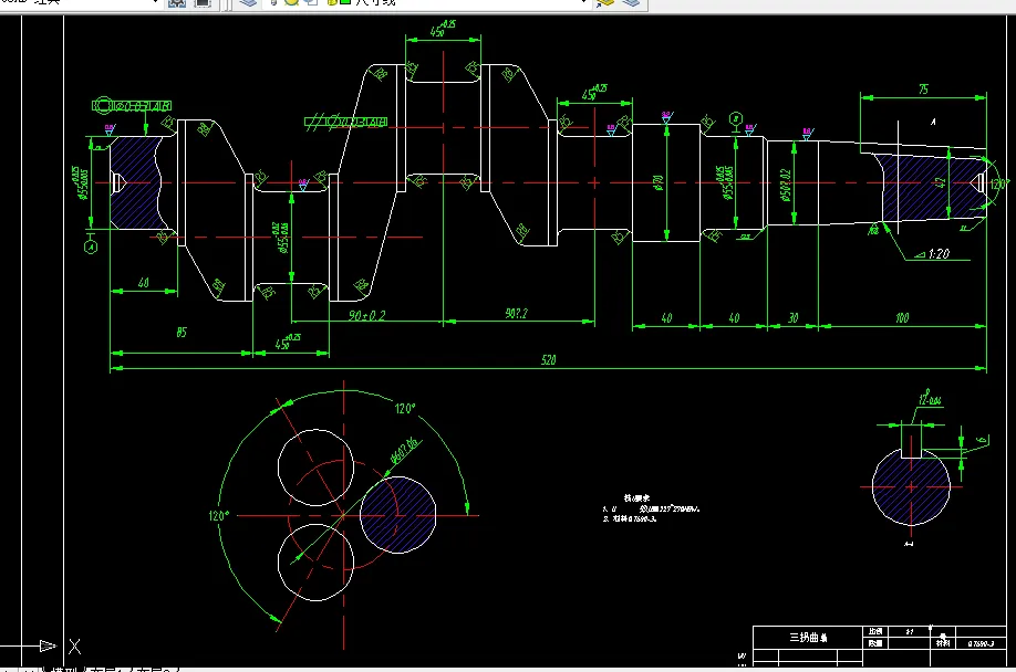
此次毕业设计任务是对三拐曲轴零件的机械加工工艺夹具的设计,主要包括对零件图的分析、毛坯的选择、零件的装夹、工艺路线的制订、刀具的选择、切削用量的确定、加工工艺文件的填写。选择正确的加工方法,设计合理的加工工艺过程。此外还对三拐曲轴零件的工序的加工设计了专用夹具.
本文主要对三拐曲轴零件主要以V形块和支承板来定位,靠直压板和弹簧来夹紧,铣键槽时2个V形块与铣刀不能干涉,因此要降低V形块高度,夹具设计要方便、简单。
关键词:加工工艺,加工方法,工艺文件,夹具
目 录
摘 要 II
ABSTRACT I
1 绪论 1
1.1机械加工工艺概述 1
1.2机械加工工艺流程 1
1.3夹具概述 2
1.4机床夹具的功能 2
1.5机床夹具的发展趋势 3
1.5.1机床夹具的现状 3
1.5.2现代机床夹具的发展方向 3
1 零件分析 5
1.1零件的作用 5
1.2零件的工艺分析 5
1.2.1以拐径为Ø55mm为中心的加工表面 6
1.2.2以轴心线两端轴为中心的加工表面 6
1.2.3零件图样分析分析 6
2 工艺规程设计 6
2.1确定毛坯的制造形式 6
2.2基面的选择 6
2.2.1 粗基准选择 7
2.2.2 精基准的选择 7
2.3制定工艺路线 7
2.4机械加工余量、工序尺寸及毛坯尺寸的确定 9
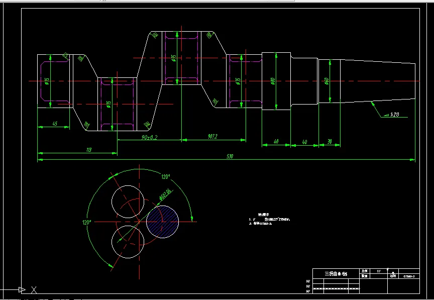
2.4.1加工两端中心线上的外圆表面 9
2.4.3 铣1:10圆锥处键槽 10
2.4.4 车磨拐径为Φ55 mm 10
2.5 确定切削用量 10
3 铣曲轴键槽专用夹具设计 24
3.1定位基准的选择 24
3.2定位元件的设计 24
3.3铣削力与夹紧力计算 25
3.4对刀块和塞尺设计 26
总 结 28
参 考 文 献 29
致 谢 30
温馨提示:
1、题目前面的备注【字母数字编号】为本站整理分类的编号,与课题内容无关,请选题时忽视;
2、若题目上备注三维,则表示文件里包含三维源文件,由于三维组成零件数量较多,为保证预览截图的简洁性,本站将三维文件夹进行了打包。三维及CAD预览截图,均为本站电脑打开软件进行截图的,保证能够打开,下载原件超高清,下载后解压即可;
3、本站所有资源如无特殊说明,都需要本地电脑安装Office2007。图纸软件为AutoCAD,PROE,UG,SolidWorks,CATIA等;
4、本站所有图文资料仅供用户学习参考,不作为任何商用或其他用途;
5、本站不保证下载资源的准确性、安全性和完整性, 不包修改,不支持退换,同时也不承担用户因使用这些下载资源对自己和他人造成任何形式的伤害或损失;
6、 下载文件中如有侵权或不适当内容,请与我们联系,我们立即纠正。