

作品包括:
Word版说明书1份,共37页,约13000字
工序卡13张
工艺过程卡1张
CAD版本图纸,共4张
SW三维图一套

摘 要
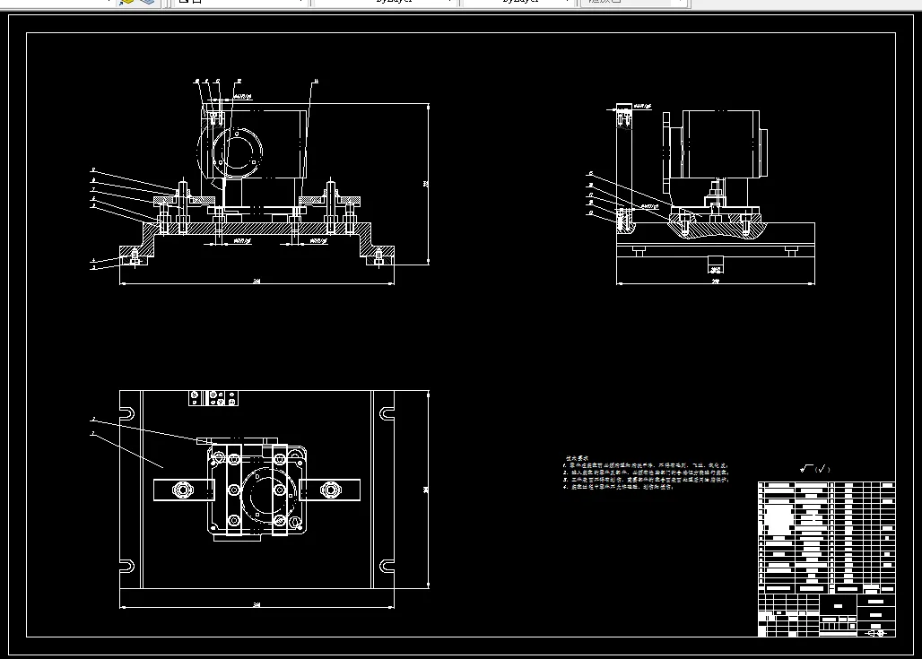
减速箱体的零件能够实现轴和齿轮的共同协作,各种轴和齿轮固定安装在减速箱中能够实现力矩的传递和速度的传输,因此减速箱体对于机械系统稳定传输有着重要作用,因此需要通过更好的工艺分析确定最优的加工路线,从而提高减速箱体零件的加工质量和加工精度。
本文以减速器箱体类零件为研究对象设计一款能够方便快速装夹的夹具工装以方便零件的快速加工,为了完成所设计的内容,首先通过对零件的作用和工艺类型以及具体生产类型确定零件的毛坯,然后根据零件生产精度和进度安排确定本次设计的工艺流程和工序尺寸、加工余量等,并根据所设计工序进行进一步计算从而计算工序所需要的切削余量和切削时间等参数,从而完成工艺所需要的工艺卡和工序卡等,最后针对所设计的工序铣面进行分析进而完成相应的夹具设计,通过计算机软件CAD和SolidWorks软件对零件图进行绘制和建模,参数化设计提高设计的准确性,提高夹具设计的可靠性和经济性,并且通过合理设计夹具,可以有效定位和固定零件,保证其在加工过程中的几何形状和尺寸一致性,从而提升产品的整体质量,此外对于通过此次设计在提高自己对知识所学的同时也为夹具的进一步发展起到一定的推动。
关键词:工艺类型;加工余量;工艺卡;工序卡;CAD;参数化设计;
目录
摘 要 1
ABSTRACT 2
目录 3
1 绪论 5
1.1 课题背景及研究意义 5
1.2 机床夹具国内外的现状与分析 5
1.3 研究的内容 6
2 零件分析和工艺规程的制定 7
2.1 零件作用 7
2.2 零件工艺分析 7
2.3 确定毛坯形式和余量 8
2.4基准选择 9
2.5 生产纲领和生产类型的计算 11
2.6工艺方案的比较和选择 12
2.7选择加工设备和工艺设备 13
3 工序的加工计算 15
3.1粗铣底面 15
3.2钻底面4-Ф9孔、锪平台4-Ф20孔 16
3.3粗铣顶面 18
3.4粗铣Φ70内部凸台面 18
3.5粗铣Φ50左侧面、粗铣Φ40右侧面 18
3.6粗镗Ф52、Ф40孔 18
3.7粗镗Ф54、Ф47孔 19
3.8精镗Ф52、Ф40孔 19
3.9精镗Ф54、Ф47孔 21
3.10铣左侧4个U型槽 23
3.11钻顶部4-M5螺纹孔 24
3.12钻Ф58处的3-M5螺纹孔 26
3.13钻Ф62右侧面上3-M5螺纹孔 27
4 夹具设计 30
4.1夹具功能和设计步骤 30
4.2切削力和夹紧力计算 30
4.3 误差分析与计算 32
4.4夹具体的设计 33
4.5机床夹具设计 34
总 结 35
致 谢 36
参 考 文 献 37
温馨提示:
1、题目前面的备注【字母数字编号】为本站整理分类的编号,与课题内容无关,请选题时忽视;
2、若题目上备注三维,则表示文件里包含三维源文件,由于三维组成零件数量较多,为保证预览截图的简洁性,本站将三维文件夹进行了打包。三维及CAD预览截图,均为本站电脑打开软件进行截图的,保证能够打开,下载原件超高清,下载后解压即可;
3、本站所有资源如无特殊说明,都需要本地电脑安装Office2007。图纸软件为AutoCAD,PROE,UG,SolidWorks,CATIA等;
4、本站所有图文资料仅供用户学习参考,不作为任何商用或其他用途;
5、本站不保证下载资源的准确性、安全性和完整性, 不包修改,不支持退换,同时也不承担用户因使用这些下载资源对自己和他人造成任何形式的伤害或损失;
6、 下载文件中如有侵权或不适当内容,请与我们联系,我们立即纠正。