

作品包括:
Word版说明书1份,共22页,约10000字
工序卡1张
工艺过程卡1张
CAD版本图纸,共4张
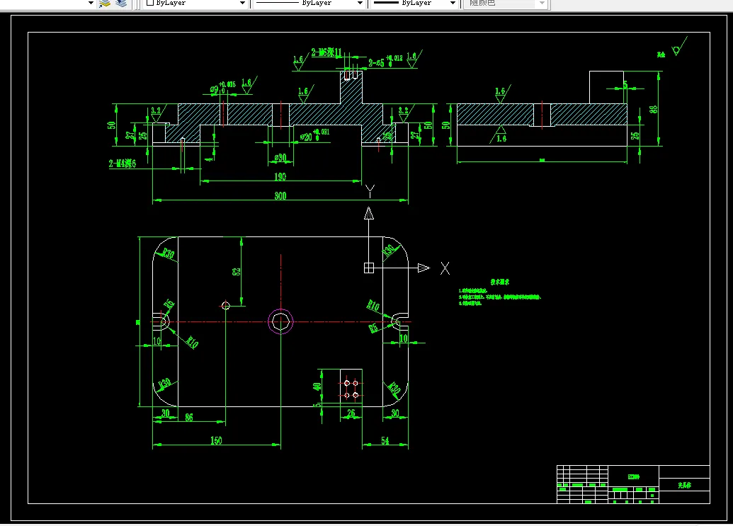
![1751346524419310.webp 38]`EQ$4$91M]OQI8W@E[XP.webp](/static/upload/image/20250701/1751346524419310.webp)
目录
第1章 零件的工艺分析 1
1.1 零件的功能 1
1.2 确定零件的生产类型 1
1.3 零件的技术要求 2
1.4 审查零件的工艺性 2
第2章 确定毛坯的种类和制造方法 3
2.1毛坯的选择 3
2.2确定零件的加工余量 3
第3章 拟定工艺路线 5
3.1定位基准的选择 5
3.1.1粗基准的选择 5
3.1.2精基准的选择 5
3.2加工方法的确定 5
3.3方案比较 6
3.4加工工艺方案的确定 7
第4章 确定09工序的工艺参数 9
4.1工序尺寸及其公差的确定 9
4.2机床、刀具和量具的选择 9
4.3主轴转速和切削要素的确定 10
4.4工时定额的确定 10
第5章 09工序专用夹具设计 11
5.1夹具设计要求 11
5.2 夹具的结构方案 11
5.2.1定位方案及定位元件选择 11
5.2.2定位误差计算 11
5.2.3对刀或导向方式的确定 12
5.2.4夹紧方案,选择夹紧机构 12
5.2.5夹紧力计算 12
5.2.6确定夹具其它组成部分的结构形式 14
5.3夹具总装配图上有关尺寸、配合的标注 14
5.3.1工件与定位元件间的联系尺寸 14
5.3.2夹具外形轮廓尺寸 14
5.4 夹具的维护和使用要求 15
第6章 总结 17
参考文献 18
温馨提示:
1、题目前面的备注【字母数字编号】为本站整理分类的编号,与课题内容无关,请选题时忽视;
2、若题目上备注三维,则表示文件里包含三维源文件,由于三维组成零件数量较多,为保证预览截图的简洁性,本站将三维文件夹进行了打包。三维及CAD预览截图,均为本站电脑打开软件进行截图的,保证能够打开,下载原件超高清,下载后解压即可;
3、本站所有资源如无特殊说明,都需要本地电脑安装Office2007。图纸软件为AutoCAD,PROE,UG,SolidWorks,CATIA等;
4、本站所有图文资料仅供用户学习参考,不作为任何商用或其他用途;
5、本站不保证下载资源的准确性、安全性和完整性, 不包修改,不支持退换,同时也不承担用户因使用这些下载资源对自己和他人造成任何形式的伤害或损失;
6、 下载文件中如有侵权或不适当内容,请与我们联系,我们立即纠正。