

作品包括:
Word设计说明书1份
任务书一份
开题报告一份
外文翻译一份
CAD版本图纸,共4张

摘要
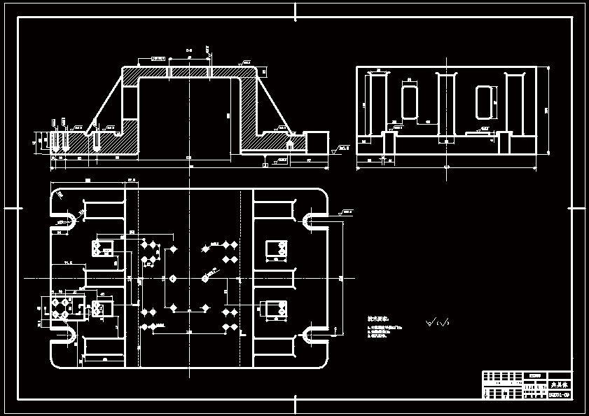
连接叉铣叉口夹具设计本课题主要是设计连接叉(如图1-1)铣叉口夹具,要求加工叉口两平面A面C面以及左侧面D面,并且是批量生产。基于这样的要求,首先分析零件,确定定位方案。虽然零件形状不规则,但是有一通孔,根据基准统一的原则选择22孔和两面(B面和F面)进行定位,其中22孔限制零件的四个自由度,B面和F面各限制一个自由度,这样零件被完全定位。由于要求多件加工,并且要求在本工序中铣削三个平面,所以决定采用前一排与后一排的零件对称分布,前一列与后一列相同分布的方式来放置零件(具体放置方式见第四章图4-3)。本设计采用四件加工的布置方案。这样在本工序中一次性便可加工出十二个平面,大大提高了生产效率。
温馨提示:
1、题目前面的备注【字母数字编号】为本站整理分类的编号,与课题内容无关,请选题时忽视;
2、若题目上备注三维,则表示文件里包含三维源文件,由于三维组成零件数量较多,为保证预览截图的简洁性,本站将三维文件夹进行了打包。三维及CAD预览截图,均为本站电脑打开软件进行截图的,保证能够打开,下载原件超高清,下载后解压即可;
3、本站所有资源如无特殊说明,都需要本地电脑安装Office2007。图纸软件为AutoCAD,PROE,UG,SolidWorks,CATIA等;
4、本站所有图文资料仅供用户学习参考,不作为任何商用或其他用途;
5、本站不保证下载资源的准确性、安全性和完整性, 不包修改,不支持退换,同时也不承担用户因使用这些下载资源对自己和他人造成任何形式的伤害或损失;
6、 下载文件中如有侵权或不适当内容,请与我们联系,我们立即纠正。