

作品包括:
Word版说明书1份,共45页,约14000字
工序卡8张
综合工艺卡1张
CAD版本图纸,共4张

摘 要
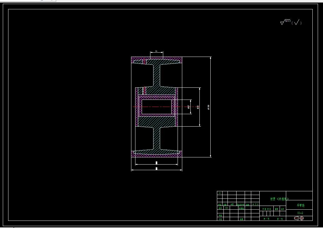
工艺学是一门以机械加工工艺技术与夹具设计为核心研究对象的技术学科,不仅具备突出的实践性,要求学习者在学习过程中必须与生产实际紧密结合,同时还具有高度的综合性。本次设计的主题为平带轮加工工艺规程设计及专用夹具设计,具体内容如下:
首先,开展零件分析工作,重点涵盖零件功能分析与工艺分析两方面。通过零件分析,能够掌握零件的基本特性;而借助工艺分析,则可明确零件的加工表面及对应的加工标准。依据零件图所提出的加工要求,进一步确定毛坯的制造方式与具体尺寸。
第二步,进行基准面的选取,明确加工流程中的粗基准与精基准。以选定的基准为依据,制定工艺路线,通常会拟定两种及以上的工艺路线方案。经过对各工艺方案的对比与分析,筛选出能够合理保障零件几何形状、尺寸精度及位置精度等技术指标的最优工序。
第三步,按照已确定的工序路线,确定每一道工序的切削参数与基础工时,并挑选适配的机床设备与刀具。针对粗加工环节,还需对机床功率进行校验。
最后,设计用于钻削Ф8 孔与 M6 螺纹孔的专用夹具。先明确设计需求与待解决的问题,再选定定位基准,随后开展切削力、夹紧力的计算以及定位误差的分析工作,最终将整个设计过程整理并绘制成相应图纸。
关键字:平带轮;加工工艺;专用夹具;螺纹孔
目录
1 对平带轮零件进行工艺分析 12
1.1 平带轮的作用 12
1.2 平带轮的主要技术条件 12
2 平带轮的工艺规程的设计 13
2.1 平带轮的材料及毛坯的制造 13
2.2 制定工艺路线 13
2.3 加工方法的确定及工序的安排 14
2.4 机械加工余量、工序尺寸及毛坯尺寸的确定 15
2.5 平带轮零件工序的加工说明 15
2.6 确定加工平带轮零件中各工序的切削用量 16
3 专用夹具设计 19
3.1 设计主旨 20
3.2 定位方案的确定 20
3.3 夹紧方案的确定 21
3.4 选择夹紧元件 21
3.5 夹具体的设计 22
3.6 计算切削力和夹紧力 22
3.7 分析定位误差 23
总结 24
参考文献 25
致谢 26
温馨提示:
1、题目前面的备注【字母数字编号】为本站整理分类的编号,与课题内容无关,请选题时忽视;
2、若题目上备注三维,则表示文件里包含三维源文件,由于三维组成零件数量较多,为保证预览截图的简洁性,本站将三维文件夹进行了打包。三维及CAD预览截图,均为本站电脑打开软件进行截图的,保证能够打开,下载原件超高清,下载后解压即可;
3、本站所有资源如无特殊说明,都需要本地电脑安装Office2007。图纸软件为AutoCAD,PROE,UG,SolidWorks,CATIA等;
4、本站所有图文资料仅供用户学习参考,不作为任何商用或其他用途;
5、本站不保证下载资源的准确性、安全性和完整性, 不包修改,不支持退换,同时也不承担用户因使用这些下载资源对自己和他人造成任何形式的伤害或损失;
6、 下载文件中如有侵权或不适当内容,请与我们联系,我们立即纠正。