

作品包括:
word说明书一份,共34页,约9800字
工序卡一份
过程卡一份
CAD版本图纸,共5张

车床套工艺及夹具设计
摘 要
工艺学是以研究机械加工工艺和夹具设计为主的一门学科,具有很强的实践性,要求在学习过程中应紧密联系生产实践,同时它又具有很强的综合性,
本次毕业设计的课题是车床套加工工艺规程的制定及后三道工序专用夹具设计,主要内容如下:
首先,对零件进行分析,主要是零件作用的分析和工艺分析,通过零件分析可以了解零件的基本情况,而工艺分析可以知道零件的加工表面和加工要求。根据零件图提出的加工要求,确定毛坯的制造形式和尺寸的确定。
第二步,进行基面的选择,确定加工过程中的粗基准和精基准。根据选好的基准,制订工艺路线,通常制订两种以上的工艺路线,通过工艺方案的比较与分析,再选择可以使零件的几何形状、尺寸精度及位置精度等技术要求得到合理的保证的一种工序。
第三步,根据已经选定的工序路线,确定每一工步的切削用量及基本工时,并选择合适的机床和刀具、量具。对于粗加工,还要校核机床功率。
最后,经过多方面的考虑,设计了后三道工序的专用夹具,即两套钻模和一套铣台阶面的铣床夹具。先提出设计问题,再选择定位基准,然后开始切削力、夹紧力的计算和定位误差的分析。然后把设计的过程整理为图纸,并编写说明书。
通过以上的概述,整个设计基本完成。
关键词:机械;车床套;加工工艺;夹具设计
目 录
前 言 1
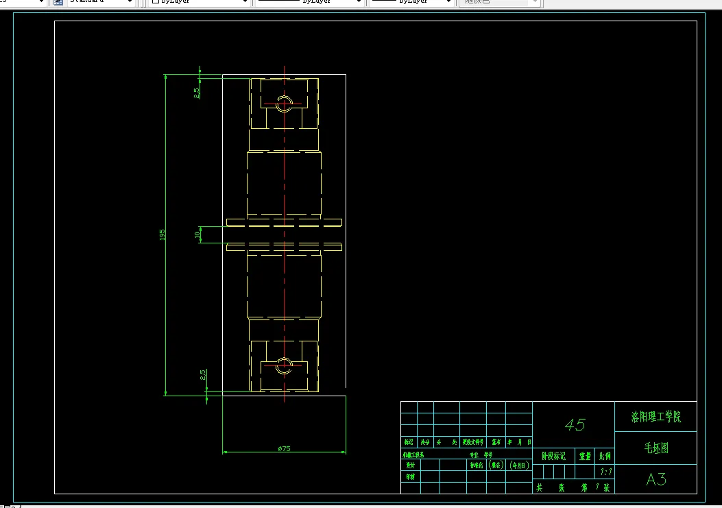
第一章 零件的分析 2
1.1零件的作用 2
1.2零件的工艺分析 2
1.2.1 以Φ25H7为中心的一组加工表面 2
1.2.2 以尺寸90为中心的一组加工表面 2
第二章 工艺规程设计 3
2.1 确定毛坯的制造形式 3
2.2 基面的选择 3
2.2.1 粗基准的选择 3
2.2.2 精基准的选择 3
2.3加工方法的确定 3
2.4 制定工艺路线 4
2.4.1 加工工艺路线方案一 4
2.4.2 工艺路线方案二 5
2.4.3 工艺路线方案分析与比较 5
2.5 机械加工余量、工序尺寸及毛坯尺寸的确定 5
2.5.1 外圆的加工余量及公差 6
2.5.2 外圆标面沿轴线长度方向的加工余量及公差 6
2.5.3内孔的加工余量及公差 6
2.5.4铣削的加工余量及公差 7
2.6确立切削用量及基本工时 7
2.6.1 工序二 粗车Φ42、Φ45、Φ70外圆,切槽3 0.5,钻扩孔φ25H7 7
2.6.2 半精车Φ42、Φ45m6粗精铰孔Φ25H7,扩孔Φ31,倒角。 12
2.6.3 工序五 铣开裆尺寸5H9 16
2.6.4 工序六 钻孔φ7-φ13 18
2.6.5 工序七 铣尺寸29,保证尺寸59.5。 20
2.6.6 工序八 钻铰孔φ8H9、扩R5 21
2.6.7工序九 检查 24
2.6.8工序十 入库 24
第三章 夹具设计 24
3.1铣尺寸29,保证尺寸59.5 26
3.1.1问题的提出 26
3.1.3夹具设计 26
结 论 29
谢 辞 30
参考文献 31
附 录 32
温馨提示:
1、题目前面的备注【字母数字编号】为本站整理分类的编号,与课题内容无关,请选题时忽视;
2、若题目上备注三维,则表示文件里包含三维源文件,由于三维组成零件数量较多,为保证预览截图的简洁性,本站将三维文件夹进行了打包。三维及CAD预览截图,均为本站电脑打开软件进行截图的,保证能够打开,下载原件超高清,下载后解压即可;
3、本站所有资源如无特殊说明,都需要本地电脑安装Office2007。图纸软件为AutoCAD,PROE,UG,SolidWorks,CATIA等;
4、本站所有图文资料仅供用户学习参考,不作为任何商用或其他用途;
5、本站不保证下载资源的准确性、安全性和完整性, 不包修改,不支持退换,同时也不承担用户因使用这些下载资源对自己和他人造成任何形式的伤害或损失;
6、 下载文件中如有侵权或不适当内容,请与我们联系,我们立即纠正。