

作品包括:
说明书一份,共60页,约25000字
CAD版本图纸,共16张
工序卡一份
工艺过程卡一张

摘 要
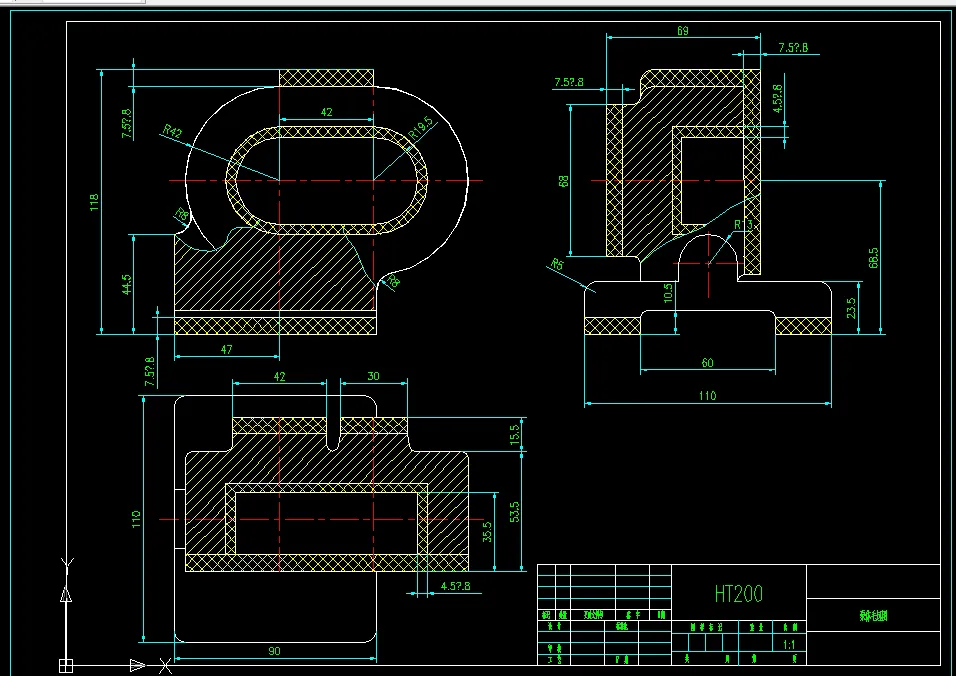
这次毕业设计课题——泵体工艺规程及镗Ф48H8孔夹具设计。在机加工工艺编制方面,主要通过分析产品零件图和相关技术要求,查阅泵体类零件相关资料,结合生产批量要求、零件的工艺结构要素、制造经济性、可行性等多方面因素,最终安排了24道工序来完成泵体的加工,其中包括各道工序的加工方法,机床、刀具、夹具、辅具、量具的选择,基准面的选取,定位和夹紧方案的拟定。另外,在夹具设计方面,主要就镗Ф48H8孔这个工序进行了夹具方案的分析,计算和最终敲定,并用一张装配图和夹具零件图来表达设计出的夹具方案。
关键字: 工序卡 工艺路线 夹具设计
目 录
中文摘要 Ⅰ
英文摘要 Ⅱ
第一章 绪论 1
第二章 工艺规程设计 2
2.1 零件的分析 2
2.1.1 零件的作用 2
2.1.2 零件的工艺分析 2
2.1.3 工艺路线的安排 2
2.2 毛坯选择 3
2.3 工艺路线的拟定 3
2.2.1 工艺路线方案一 3
2.2.2 工艺路线方案二 5
2.2.3 工艺方案的比较与分析 6
第三章 加工余量确定及工序尺寸计算 8
3.1 毛坯尺寸 8
3.2 泵体各平面加工工序余量 8
3.3 内孔φ48H8加工工序余量 9
3.4 最终毛坯工序加工余量及公差 9
第四章 切削用量及工时的确定 11
4.1 工艺制造装备的选择 11
4.2 切削用量及工时的计算 11
第五章 镗φ48H8孔夹具设计 49
5.1 夹具的作用及设计条件 49
5.2 夹具的设计计算 49
5.2.1 定位基准的选择 49
5.2.2 定位误差的分析 50
5.2.3 工件自由度的限制 50
5.2.4 确定夹紧方式 50
5.2.5 夹紧力的计算 50
5.2.6 液压系统的设计过程 51
第6章 结论 54
参考文献 55
致谢 56
温馨提示:
1、题目前面的备注【字母数字编号】为本站整理分类的编号,与课题内容无关,请选题时忽视;
2、若题目上备注三维,则表示文件里包含三维源文件,由于三维组成零件数量较多,为保证预览截图的简洁性,本站将三维文件夹进行了打包。三维及CAD预览截图,均为本站电脑打开软件进行截图的,保证能够打开,下载原件超高清,下载后解压即可;
3、本站所有资源如无特殊说明,都需要本地电脑安装Office2007。图纸软件为AutoCAD,PROE,UG,SolidWorks,CATIA等;
4、本站所有图文资料仅供用户学习参考,不作为任何商用或其他用途;
5、本站不保证下载资源的准确性、安全性和完整性, 不包修改,不支持退换,同时也不承担用户因使用这些下载资源对自己和他人造成任何形式的伤害或损失;
6、 下载文件中如有侵权或不适当内容,请与我们联系,我们立即纠正。