

作品包括:
word版设计说明书一份,共17页,约5600字
CAD版本图纸,共4张
工艺卡一份,
过程卡一份

摘 要
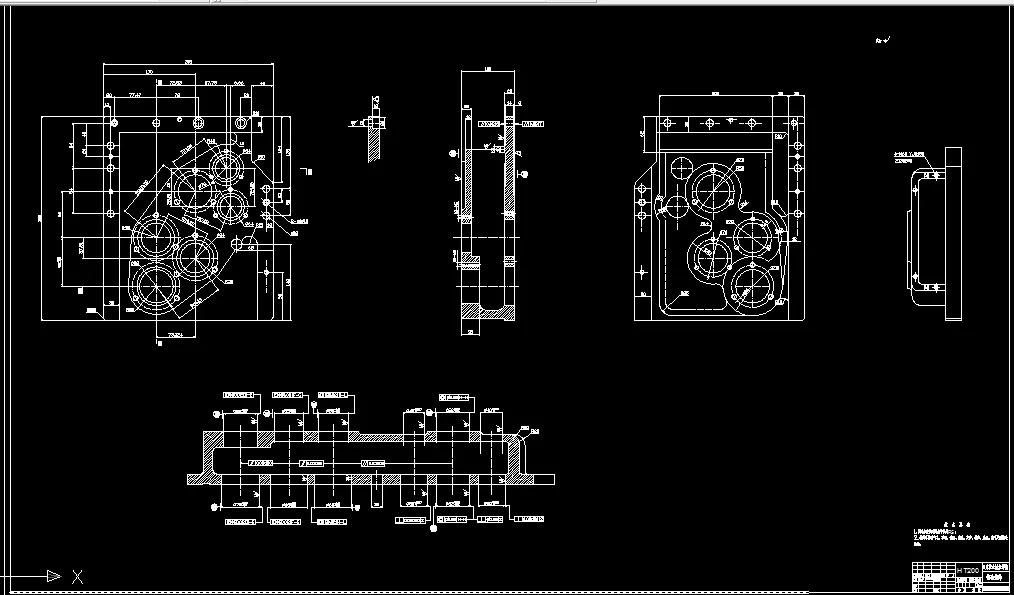
在机械制造的机械加工,检验,装配,焊接和热处理等冷热工艺过程中,使用着大量的夹具,用以安装加工对象,使之占有正确的位置,以保证零件和工件的质量。
本次设计主要是进行盖体类零件的专用夹具的设计,是对我们以往所学知识的总结和对我们所掌握知识的一次扩展。本文主要从工艺规程的指定与夹具的设计两方面出发。根据零件本身的特点,生产类型以及零件在具体工作时的作用选择工艺规程和夹具。在工艺规程方面:确定生产类型,综合考虑其准确度高,生产效率高,消耗经济少等方面,选择一个最优方案;在夹具设计方面,因为是盖体类零件,加工Ф10孔,选择钻床加工,考虑诸多因素拟订最优方案,最终完成本次设计。
目 录
1设计任务……………………………………………………7
2零件的分析…………………………………………………7
2.1零件的作用……………………………………………7
2.2零件的工艺分析………………………………………7
3确定毛坯的制造方法和毛坯的形状………………………8
3.1毛坯的种类……………………………………………8
3.2毛坯的结构工艺………………………………………8
3.3毛坯选择的依据………………………………………8
3.4坯料尺寸公差与机械加工余量………………………8
4机械加工工艺规程设计……………………………………9
4.1基准的选择……………………………………………9
4.2零件表面加工方法……………………………………9
4.3制定工艺路线…………………………………………10
5加工6×Ф7孔的专用机床夹具设计……………………11
5.1设计要求………………………………………………11
5.2制定工艺路线…………………………………………12
5.3定位元件的选择………………………………………12
5.4夹具设计的有关计算…………………………………13
5.5夹具结构设计及操作简要说明………………………15
6方案综合评价与结论………………………………………15
7本次课程设计体会与展望…………………………………16
参考文献……………………………………………………17
温馨提示:
1、题目前面的备注【字母数字编号】为本站整理分类的编号,与课题内容无关,请选题时忽视;
2、若题目上备注三维,则表示文件里包含三维源文件,由于三维组成零件数量较多,为保证预览截图的简洁性,本站将三维文件夹进行了打包。三维及CAD预览截图,均为本站电脑打开软件进行截图的,保证能够打开,下载原件超高清,下载后解压即可;
3、本站所有资源如无特殊说明,都需要本地电脑安装Office2007。图纸软件为AutoCAD,PROE,UG,SolidWorks,CATIA等;
4、本站所有图文资料仅供用户学习参考,不作为任何商用或其他用途;
5、本站不保证下载资源的准确性、安全性和完整性, 不包修改,不支持退换,同时也不承担用户因使用这些下载资源对自己和他人造成任何形式的伤害或损失;
6、 下载文件中如有侵权或不适当内容,请与我们联系,我们立即纠正。