

作品包括:
说明书1份,共20页,约6700字左右
工序卡一份
过程卡一份
CAD版本图纸,共4张

摘 要
机械制造工艺学课程设计是我们学完了大学的全部基础课、技术基础课以及大部分专业课之后进行的.这是我们在进行毕业设计之前对所学各课程的一次深入的综合性的总复习,也是一次理论联系实际的训练,因此,它在我们四年的大学生活中占有重要的地位。
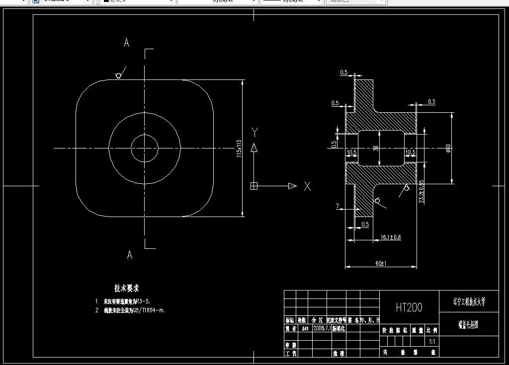
这次设计的是端盖,有零件图、毛坯图、装配图各一张,机械加工工艺过程卡片和与所设计夹具对应那道工序的工序卡片各一张。首先我们要熟悉零件,题目所给的零件是端盖。了解了端盖的作用,接下来根据零件的性质和零件图上各端面的粗糙度确定毛坯的尺寸和机械加工余量。然后我们再根据定位基准先确定精基准,后确定粗基准,最后拟定端盖的工艺路线图,制定该工件的夹紧方案,画出夹具装配图。
一、设计题目2
二、设计要求2
三、上交材料3
四、进度安排3
五、指导教师评语3
端盖零件图7
1端盖的工艺分析及生产类型的确定7
1.1端盖的用途7
1.2端盖的技术要求:8
1.3审查端盖的工艺性8
2.确定毛胚、绘制毛胚简图9
2.1选择毛胚9
2.2端盖铸造毛坯尺寸工差及加工余量9
2.3绘制端盖毛坯简图10
3.拟定端盖工艺路线10
3.1 定位基准的选择10
3.1.1精基准的选择10
3.2.2.粗基准的选择10
3.2表面加工方法的确定11
3.3加工阶段的划分11
3.4工序的集中与分散11
3.5工序顺序的安排12
3.6确定工艺路线12
4.加工余量、工序尺寸和工差的确定13
5.切削用量、时间定额的计算14
6时间定额的计算14
7.机床夹具的设计16
7.1提出问题16
7.2夹具设计16
7.2.1、定位基准的选择16
7.2.2切削力及夹紧力的计算17
7.2.3定位误差的分析18
7.3夹具操作说明19
8.参考文献19
温馨提示:
1、题目前面的备注【字母数字编号】为本站整理分类的编号,与课题内容无关,请选题时忽视;
2、若题目上备注三维,则表示文件里包含三维源文件,由于三维组成零件数量较多,为保证预览截图的简洁性,本站将三维文件夹进行了打包。三维及CAD预览截图,均为本站电脑打开软件进行截图的,保证能够打开,下载原件超高清,下载后解压即可;
3、本站所有资源如无特殊说明,都需要本地电脑安装Office2007。图纸软件为AutoCAD,PROE,UG,SolidWorks,CATIA等;
4、本站所有图文资料仅供用户学习参考,不作为任何商用或其他用途;
5、本站不保证下载资源的准确性、安全性和完整性, 不包修改,不支持退换,同时也不承担用户因使用这些下载资源对自己和他人造成任何形式的伤害或损失;
6、 下载文件中如有侵权或不适当内容,请与我们联系,我们立即纠正。