

作品包括:
说明书1份,共44页,约10000字左右
CAD版本本图纸,共4张

摘要:本毕业论文主要讲的是液压阀腔零件机械加工工艺规程及工装设计,设计镗孔夹具的设计过程。首先进行零件的分析,利用CAD绘出零件图,分析结构特点,接着确定零件主要加工要求然后进行工艺规程及夹具设计,确定毛坯利用CAD画毛坯图,确定定位基准,制定工艺路线,计算切削余量,最后再做镗φ100和φ76两孔的夹具设计。在设计的时候应该选择定位基准和夹紧方案,选用合适的定位元件和夹紧装置,接着进行定位误差的分析、计算切削力及夹紧力,判断夹具设计的合理性。
本文的研究重点在于通过对液压阀腔的工艺性和力学性能分析,对加工工艺进行合理分析,选择确定合理的毛坯、加工方式、设计高效、省力的夹具以及设计出简单、实用的数控加工程序,通过实践验证,最终加工出合格的液压阀腔零件。
关键词:液压阀腔,加工余量,工艺,夹具
目 录
摘 要 I
Abstract II
第一章 绪论 1
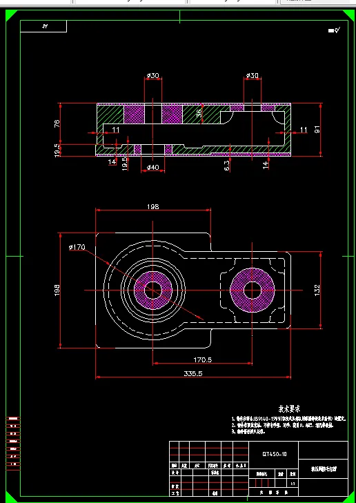
第二章 零件的分析 5
2.1 零件的作用 5
2.2 零件的工艺分析 5
第三章 确定毛坯,绘制毛坯图、零件图 8
3.1确定毛坯的制造形式及材料 8
3.2机械加工余量、工序尺寸及毛坯尺寸的确定 8
第四章 工艺规程设计 10
4.1定位基准的选择 10
4.2制定工艺路线 10
4.3选择加工设备及刀、夹、量具 14
4.4 确定切削用量及基本工时 16
4.4.1粗铣上下平面,见光即可 17
4.4.2精铣上下平面,保证厚度尺寸 到位 20
4.4.3粗、精铣厚度3.3缺口到位 20
4.4.4铣主视图中 深2.1凹台 19
4.4.5粗铣、精铣 深3.5凹台 19
4.4.6粗镗、精镗 、 孔 20
4.4.7粗镗、精镗 孔。 20
4.4.8铣主视图中 深3凹台 20
4.4.9钻俯视图中4- 通孔,愡平4- 孔 20
4.4.10钻攻俯视图中6-M12-6H螺纹孔 20
4.4.11钻攻俯视图中4-M12-6H深16.5螺纹孔 20
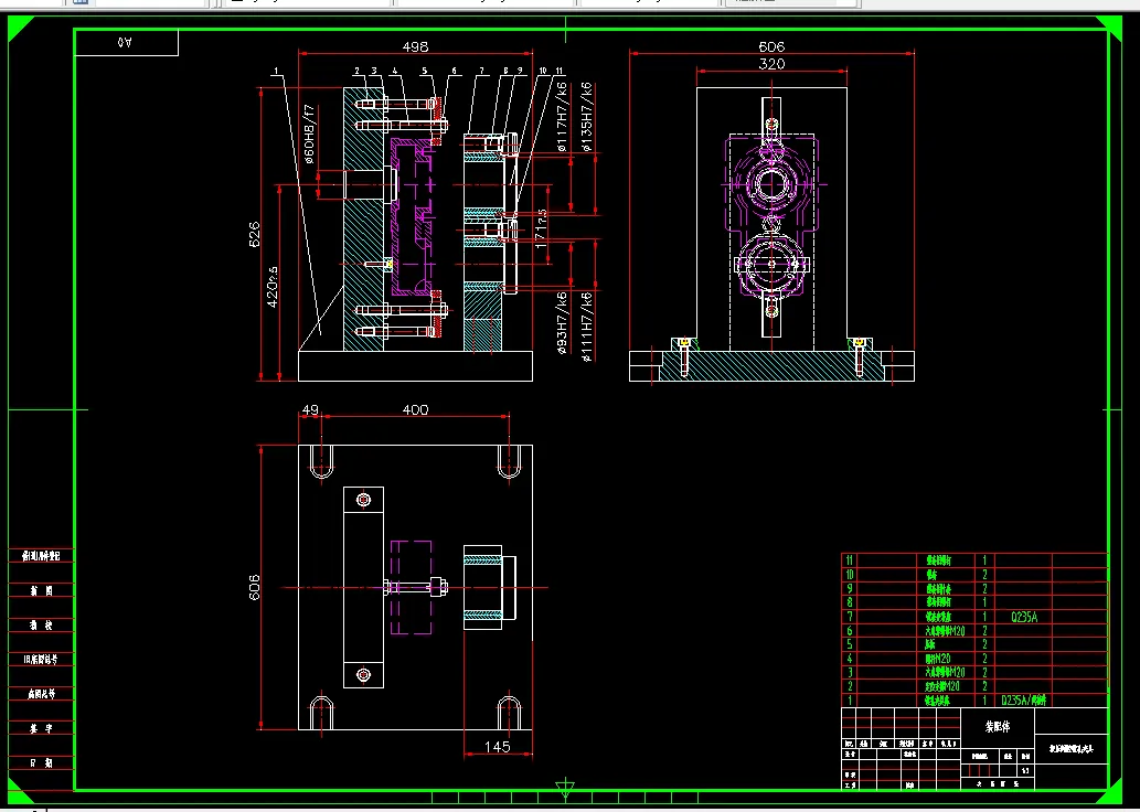
第五章 镗孔夹具的设计 26
5.1问题的提出 32
5.2夹具的设计 32
结 论 32
致 谢 32
参考文献 33
温馨提示:
1、题目前面的备注【字母数字编号】为本站整理分类的编号,与课题内容无关,请选题时忽视;
2、若题目上备注三维,则表示文件里包含三维源文件,由于三维组成零件数量较多,为保证预览截图的简洁性,本站将三维文件夹进行了打包。三维及CAD预览截图,均为本站电脑打开软件进行截图的,保证能够打开,下载原件超高清,下载后解压即可;
3、本站所有资源如无特殊说明,都需要本地电脑安装Office2007。图纸软件为AutoCAD,PROE,UG,SolidWorks,CATIA等;
4、本站所有图文资料仅供用户学习参考,不作为任何商用或其他用途;
5、本站不保证下载资源的准确性、安全性和完整性, 不包修改,不支持退换,同时也不承担用户因使用这些下载资源对自己和他人造成任何形式的伤害或损失;
6、 下载文件中如有侵权或不适当内容,请与我们联系,我们立即纠正。