

作品包括:
Word版说明书一份,共20页,约6600字
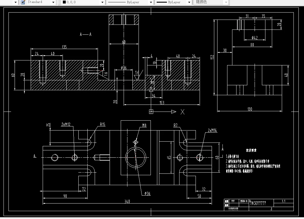
CAD版本图纸,共4张
工序卡一张
过程卡一张
摘 要
本课程设计主要内容包括轴承架的加工工艺过程设计和钻Ф30孔的专用夹具设计。首先,通过对轴承架的分析,了解轴承架的作用。其次依据轴承架毛坯件和生产纲领的要求及各加工方案的比较,制定出切实可行的轴承架加工工艺规程路线。再运用机械制造技术基础等相关课程的知识,确定轴承架在加工中的定位、夹紧以及工艺路线的安排,并确定了加工面的工艺尺寸和选择合适的机床和刀具,保证零件的加工质量。最后,根据被加工零件的加工要求,参考机床夹具设计手册及相关方运用夹具设计面的书籍,的基本原理和方法,拟定夹具设计的方案,设计出高效、省力、经济合理并且能保证加工质量的夹具。在整个课程设计过程中完成了零件图、毛坯图、夹具体装配图和夹具体零件图的绘制。
目 录
1 零件的分析 1
1.1 轴承架的作用 1
1.2 轴承架的技术要求 1
1.3 审查轴承架的工艺性 2
2轴承架毛坯的确定 2
2.1确定轴承架的生产类型 2
2.2确定毛坯的类型和制造方法 3
3拟定工艺路线 3
3.1定位基准的选择 3
3.2确定各表面的加工方法 4
3.3加工阶段的划分 4
3.4工艺线路方案 4
3.5确定各工序的加工余量 5
4 Ф30-Ф35孔切削用量的计算 7
4.1钻孔工步切削用量的计算 7
4.2 扩孔工步切削用量的计算 8
5 加工Ф30孔基本工时的计算 8
5.1基本时间的计算 8
5.2 辅助时间的确定 8
5.3其他时间的计算 8
5.4 单件时间定额 9
5.5编制工序卡片 9
6 Ф30孔专用夹具设计 9
6.1定位方案的设计 9
6.2定位误差分析与计算 10
6.3 导向元件的设计 10
6.4 夹紧装置的选择 11
6.5 夹具结构设计与简要操作说明 11
7 方案综合评价与结论 12
8 体会与展望 12
参考文献 14
温馨提示:
1、题目前面的备注【字母数字编号】为本站整理分类的编号,与课题内容无关,请选题时忽视;
2、若题目上备注三维,则表示文件里包含三维源文件,由于三维组成零件数量较多,为保证预览截图的简洁性,本站将三维文件夹进行了打包。三维及CAD预览截图,均为本站电脑打开软件进行截图的,保证能够打开,下载原件超高清,下载后解压即可;
3、本站所有资源如无特殊说明,都需要本地电脑安装Office2007。图纸软件为AutoCAD,PROE,UG,SolidWorks,CATIA等;
4、本站所有图文资料仅供用户学习参考,不作为任何商用或其他用途;
5、本站不保证下载资源的准确性、安全性和完整性, 不包修改,不支持退换,同时也不承担用户因使用这些下载资源对自己和他人造成任何形式的伤害或损失;
6、 下载文件中如有侵权或不适当内容,请与我们联系,我们立即纠正。